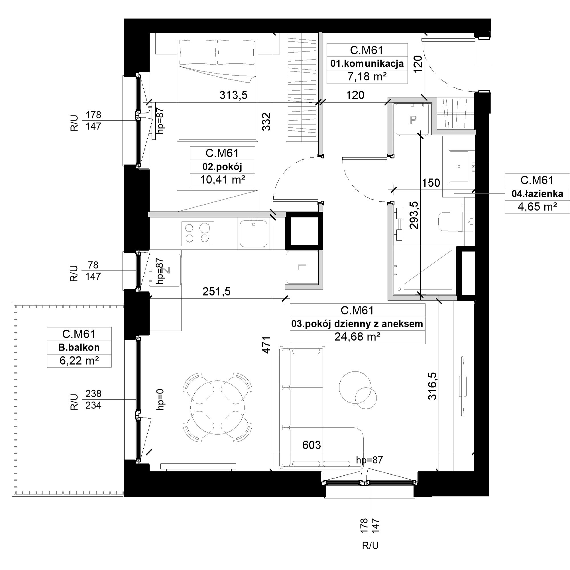
Nowe mieszkanie, 46,92 m², 2 pokoje, 2 piętro, oferta nr C/M61
Inwestycja No to Naramowice
Poznań, Naramowice, ul. Maków Polnych







Cena:
591 192,00 zł
Cena za m²:
12 600,00 zł
Liczba pokoi:
2 pokoje
Powierzchnia:
46,92 m²
Piętro:
2 piętro
Wys. mieszkania:
2,54 m
Garaż:
parking naziemny, parking podziemny
Powierzchnie dodatkowe:
komórka lokatorska
Powierzchnie zewnętrzne:
balkon (6,22 m²)
Termin oddania:
II kwartał 2026