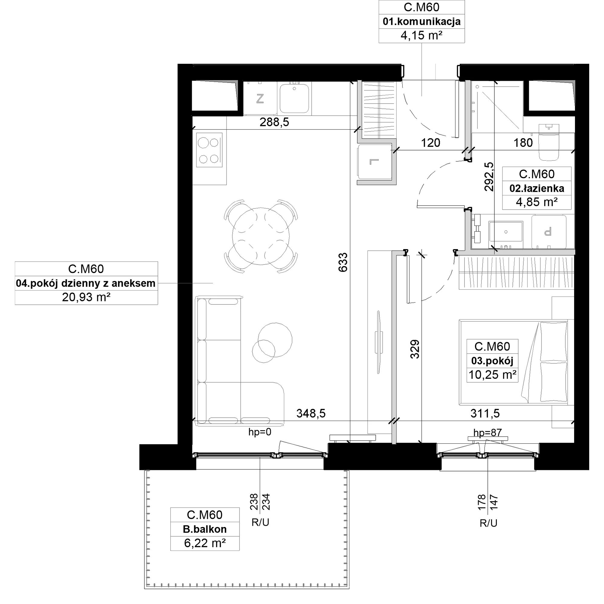
Nowe mieszkanie, 40,18 m², 2 pokoje, 2 piętro, oferta nr C/M60
Inwestycja No to Naramowice
Poznań, Naramowice, ul. Maków Polnych







Cena:
522 340,00 zł
Cena za m²:
13 000,00 zł
Liczba pokoi:
2 pokoje
Powierzchnia:
40,18 m²
Piętro:
2 piętro
Wys. mieszkania:
2,54 m
Garaż:
parking naziemny, parking podziemny
Powierzchnie dodatkowe:
komórka lokatorska
Powierzchnie zewnętrzne:
balkon (6,22 m²)
Termin oddania:
II kwartał 2026