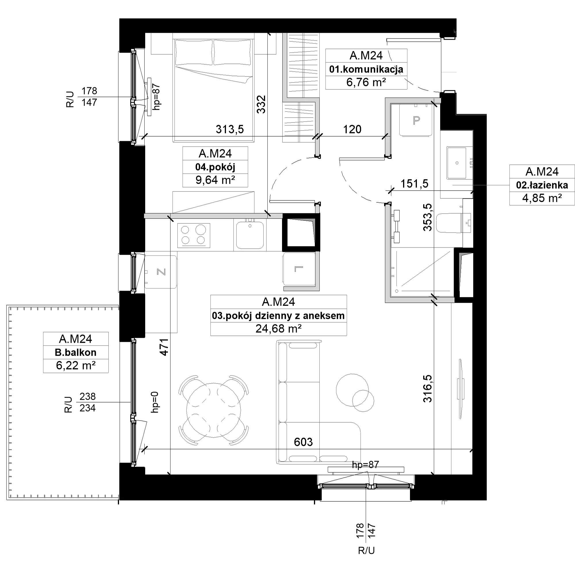
Nowe mieszkanie, 45,87 m², 2 pokoje, 1 piętro, oferta nr E.M24
547 275 zł
11 931 zł /m²
Monitoring cen
Inwestycja No to Naramowice
Poznań, Naramowice, ul. Maków Polnych






Liczba pokoi:
2 pokoje
Powierzchnia:
45,87 m²
Piętro:
1 piętro
Wys. mieszkania:
2,54 m
Garaż:
parking naziemny, parking podziemny
Powierzchnie dodatkowe:
komórka lokatorska
Powierzchnie zewnętrzne:
balkon (6,22 m²)
Termin oddania:
II kwartał 2026


































