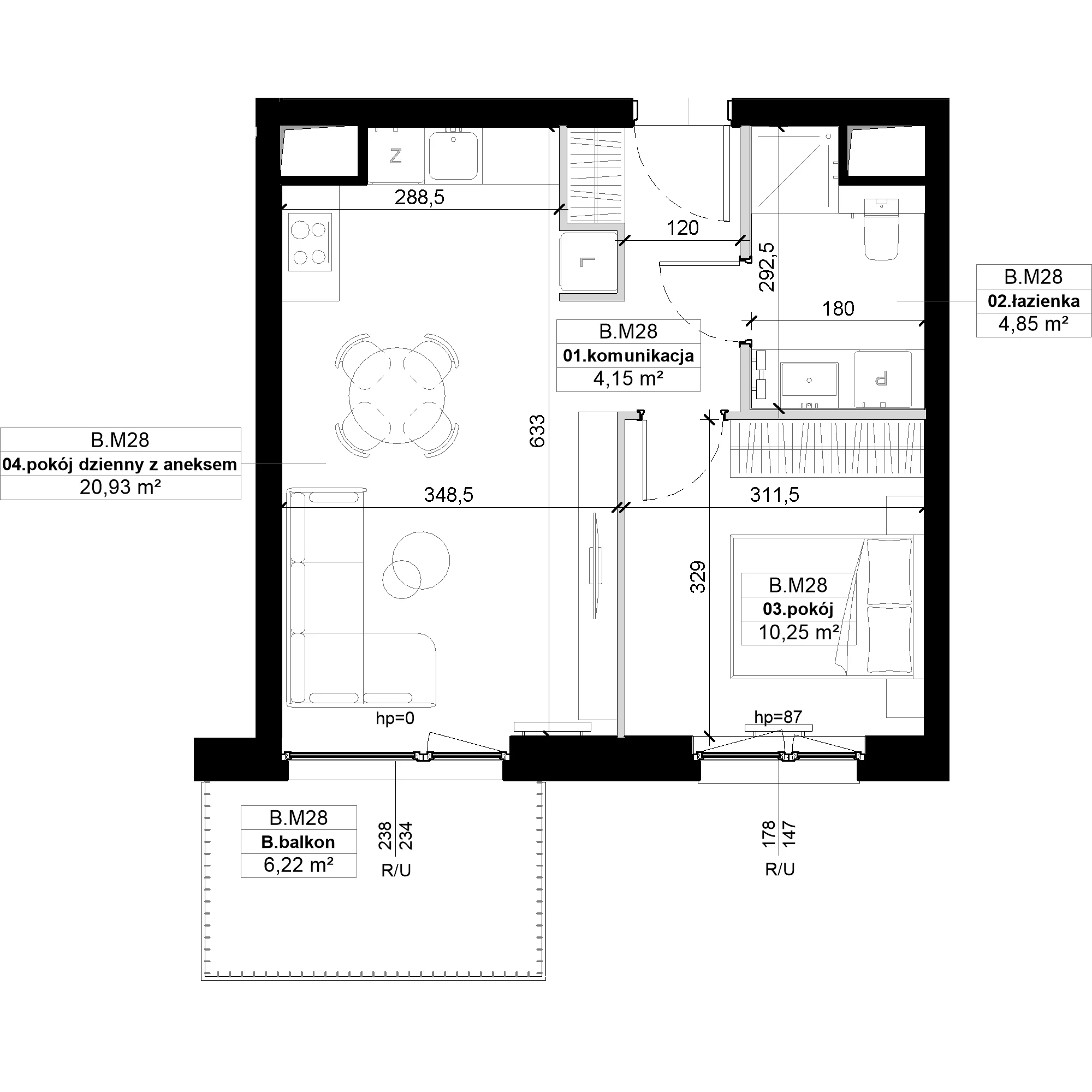
Nowe mieszkanie, 40,18 m², 2 pokoje, 1 piętro, oferta nr B/M28
Inwestycja No to Naramowice
Poznań, Naramowice, ul. Maków Polnych







Cena:
510 286,00 zł
Cena za m²:
12 700,00 zł
Liczba pokoi:
2 pokoje
Powierzchnia:
40,18 m²
Piętro:
1 piętro
Wys. mieszkania:
2,54 m
Garaż:
parking naziemny, parking podziemny
Powierzchnie dodatkowe:
komórka lokatorska
Powierzchnie zewnętrzne:
balkon (6,22 m²)
Termin oddania:
II kwartał 2026