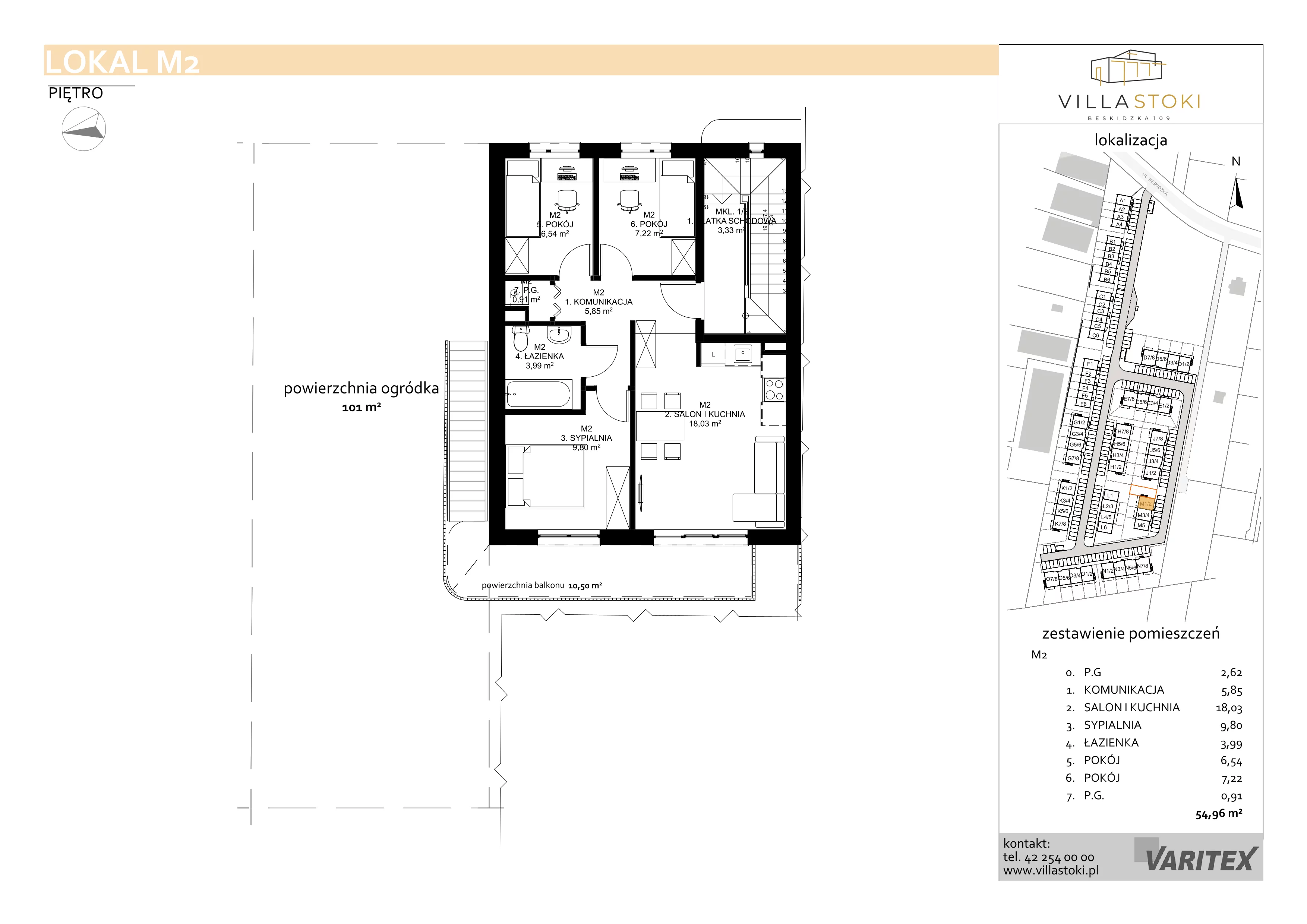
Nowe mieszkanie, 54,96 m², 4 pokoje, 1 piętro, oferta nr M2NOWOŚĆ
483 334,39 zł
8 794,29 zł/m²
Monitoring cen
Inwestycja Villa Stoki
Łódź, Widzew, ul. Beskidzka 109







Liczba pokoi:
4 pokoje
Powierzchnia:
54,96 m²
Piętro:
1 piętro
Liczba poziomów:
1
Strony świata:
zachód (W)
Garaż:
garaż, parking naziemny
Termin oddania:
III kwartał 2026