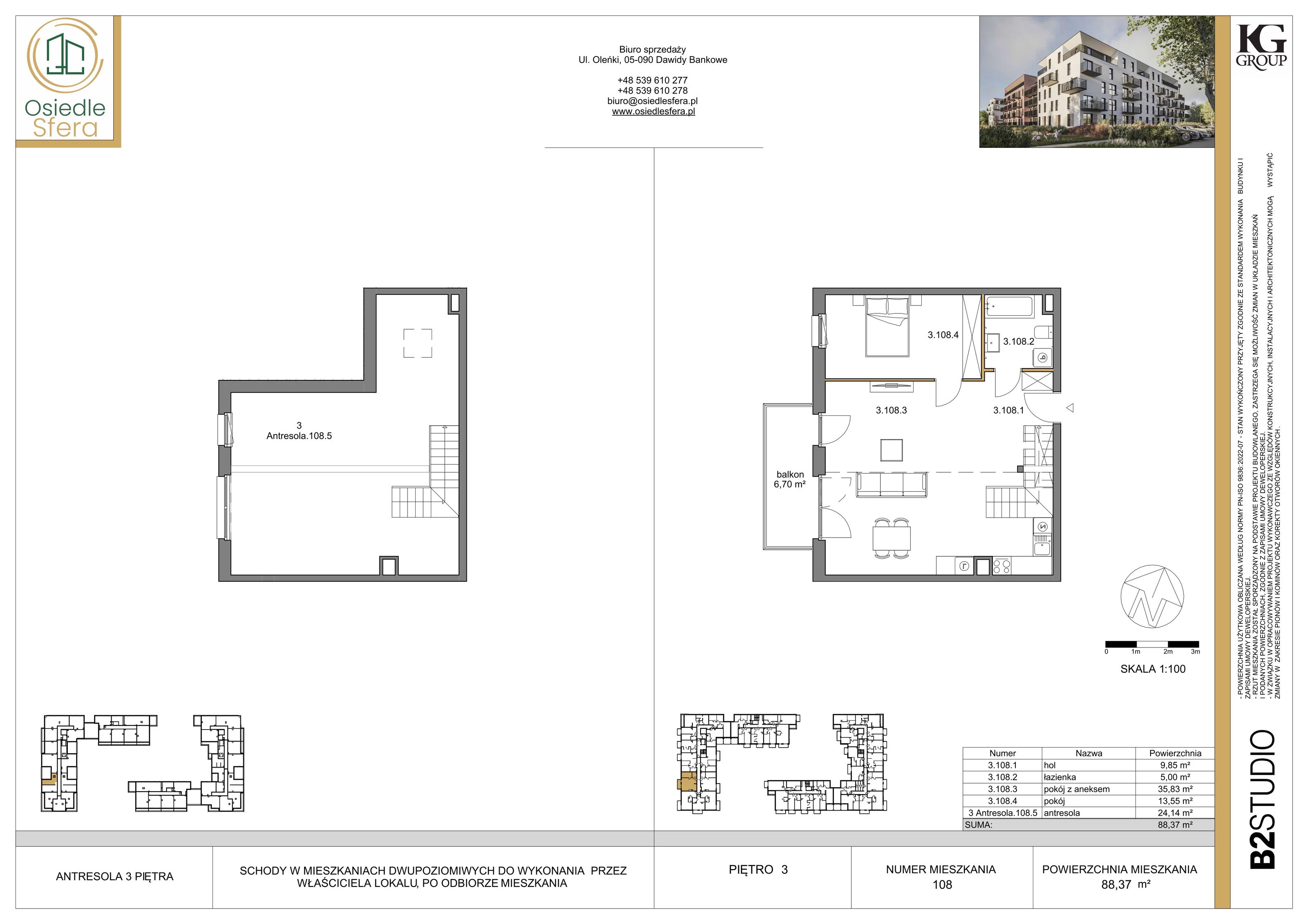
Nowe mieszkanie, 88,37 m², 3 pokoje, 3 piętro, oferta nr 108NOWOŚĆ
Inwestycja Osiedle Sfera - Etap II
Dawidy Bankowe, ul. Oleńki 14




Cena:
768 819,00 zł
Cena za m²:
8 700,00 zł
Liczba pokoi:
3 pokoje
Powierzchnia:
88,37 m²
Piętro:
3 piętro
Liczba poziomów:
2
Garaż:
parking naziemny, parking podziemny
Powierzchnie dodatkowe:
komórka lokatorska
Powierzchnie zewnętrzne:
balkon (6,70 m²), antresola (24,14 m²)
Termin oddania:
Etap II - II kwartał 2026