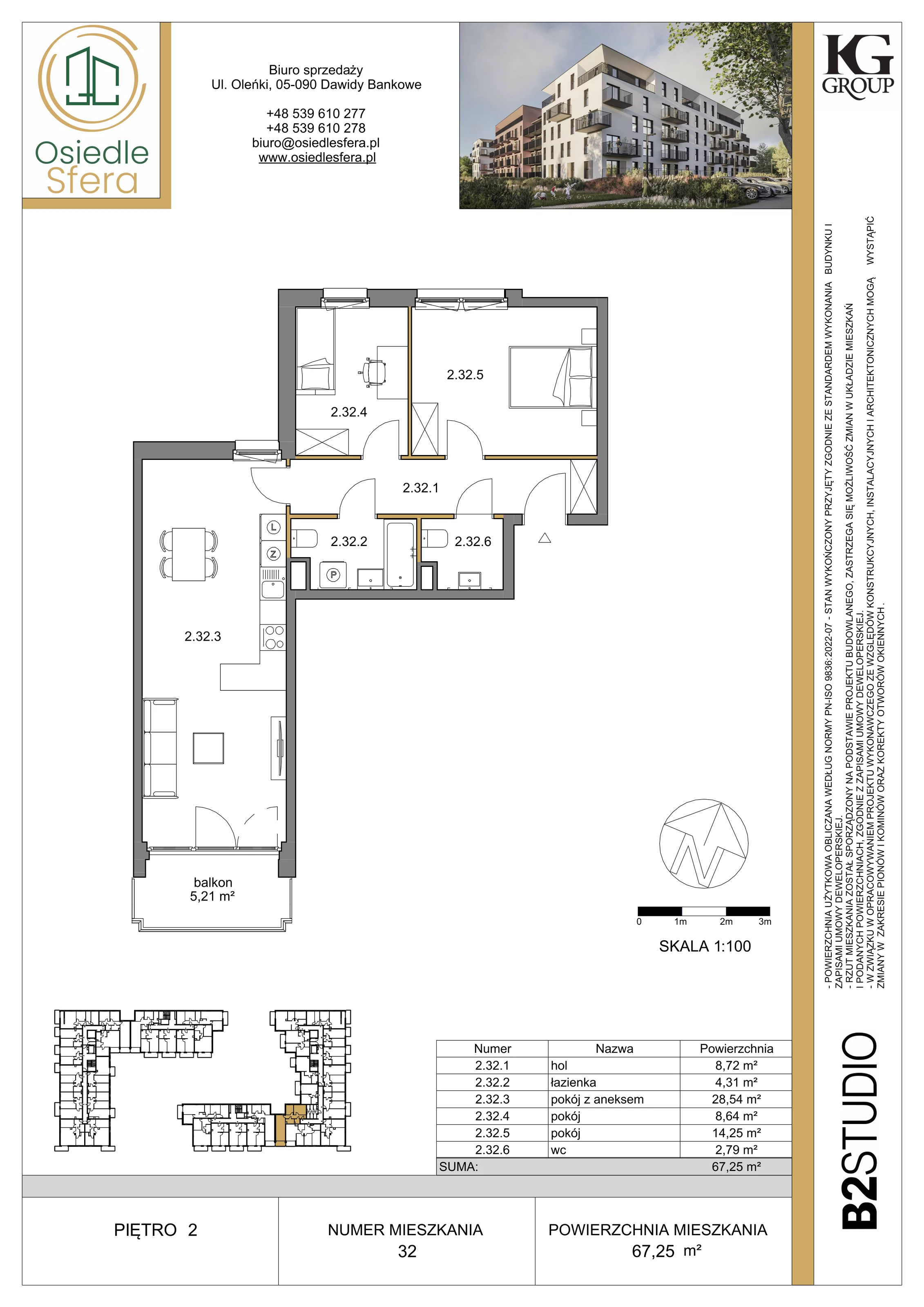
Nowe mieszkanie, 67,25 m², 3 pokoje, 2 piętro, oferta nr 32NOWOŚĆ
Inwestycja Osiedle Sfera - Etap II
Dawidy Bankowe, ul. Oleńki 14




Cena:
719 575,00 zł
Cena za m²:
10 700,00 zł
Liczba pokoi:
3 pokoje
Powierzchnia:
67,25 m²
Piętro:
2 piętro
Liczba poziomów:
1
Garaż:
parking naziemny, parking podziemny
Powierzchnie dodatkowe:
komórka lokatorska
Powierzchnie zewnętrzne:
balkon (5,21 m²)
Termin oddania:
Etap II - II kwartał 2026