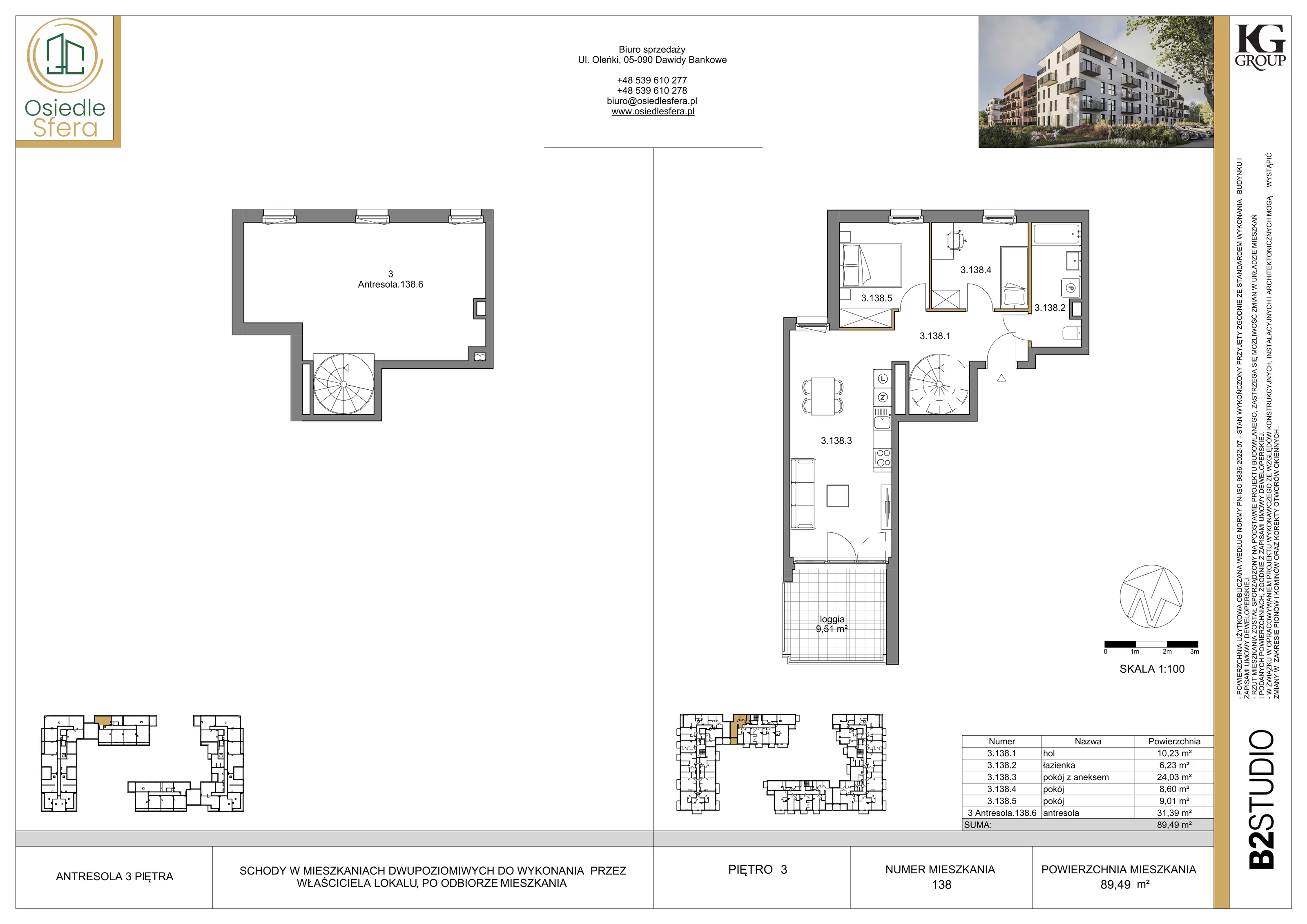
Nowe mieszkanie, 89,49 m², 3 pokoje, 3 piętro, oferta nr 138NOWOŚĆ
Inwestycja Osiedle Sfera - Etap II
Dawidy Bankowe, ul. Oleńki 14




Cena:
760 665,00 zł
Cena za m²:
8 500,00 zł
Liczba pokoi:
3 pokoje
Powierzchnia:
89,49 m²
Piętro:
3 piętro
Liczba poziomów:
2
Garaż:
parking naziemny, parking podziemny
Powierzchnie dodatkowe:
komórka lokatorska
Powierzchnie zewnętrzne:
antresola (31,39 m²), loggia (9,51 m²)
Termin oddania:
Etap II - II kwartał 2026