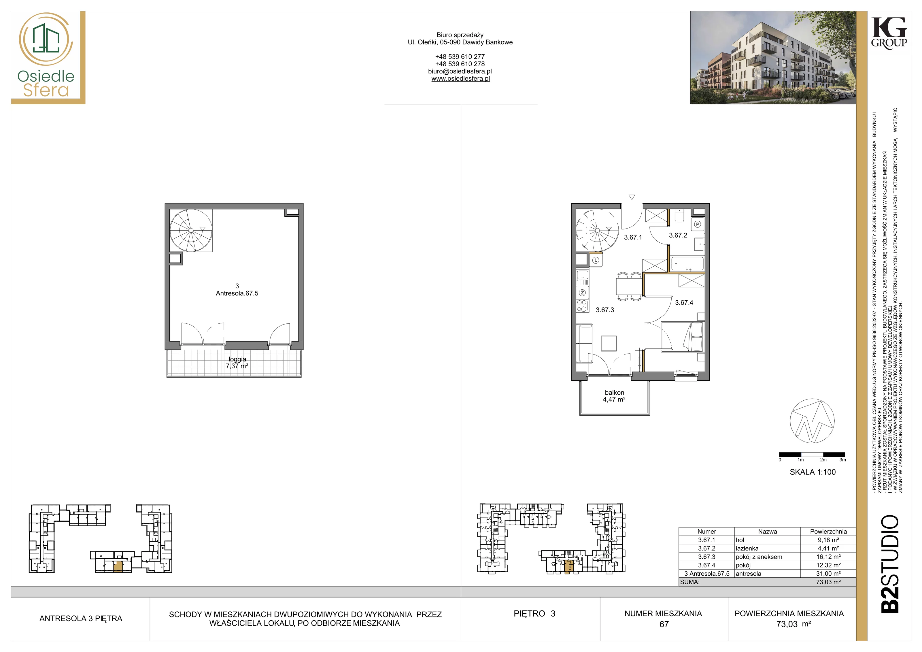
Nowe mieszkanie, 73,03 m², 3 pokoje, 3 piętro, oferta nr 67NOWOŚĆ
Inwestycja Osiedle Sfera - Etap II
Dawidy Bankowe, ul. Oleńki 14




Cena:
657 270,00 zł
Cena za m²:
9 000,00 zł
Liczba pokoi:
3 pokoje
Powierzchnia:
73,03 m²
Piętro:
3 piętro
Liczba poziomów:
2
Garaż:
parking naziemny, parking podziemny
Powierzchnie dodatkowe:
komórka lokatorska
Powierzchnie zewnętrzne:
balkon (4,47 m²), loggia (7,37 m²), antresola (31,00 m²)
Termin oddania:
Etap II - II kwartał 2026