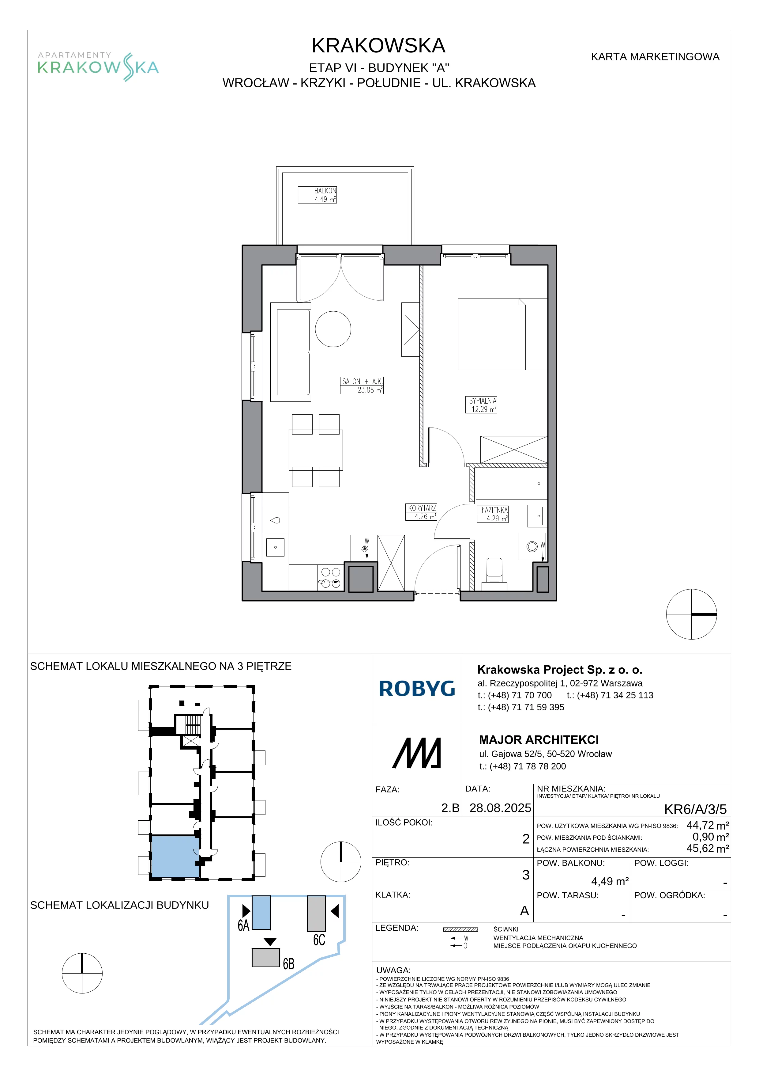
Mieszkanie na sprzedaż 2 pokojowe o powierzchni 44,52 m² zaprojektowane na 1 piętrze w budynku siedmiopiętrowym. Do mieszkania przynależeć będzie loggia, ogródek oraz balkon o powierzchni 4,49 m².
Inwestycja Apartamenty Krakowska 6 realizowana przez Grupa ROBYG pod adresem Krakowska na Przedmieściu Oławskim we Wrocławiu.
W bloku zaplanowano udogodnienia: inteligentne zarządzanie domem, klub fitness, panele fotowoltaiczne, drzwi antywłamaniowe. Na osiedlu: monitoring, ochrona, pomieszczenia na rowery, stacja ładowania samochodów elektrycznych.
W pobliżu inwestycji do dyspozycji przyszłych mieszkańców jest infrastruktura: przedszkola (Przedszkole i Żłobek ABC - Wrocław - 900 m, Przedszkole, Klub i Żłobek Bajkowa Przystań - 700 m), szkoły (FINGO Autorska Szkoła Podstawowa - 850 m, Liceum Ogólnokształcące Edukacja - 700 m, Szkoła Podstawowa Edukacja - 700 m) oraz tereny rekreacyjne (Your Parking App - Zarezerwuj Online Parking - Krakowskie Tarasy - 350 m, Park dla psów Psia Łąka - 1000 m, ROD Park Wschodni - 950 m, Park Tarnogajski - 700 m, Park na Wilczym Kącie - 200 m).