Na sprzedaż mieszkanie 2-pokojowe w samym Centrum miasta!
Na sprzedaż: 2-pokojowe mieszkanie w samym sercu Wrocławia. Mieszkanie idealne zarówno do zamieszkania, jak i jako inwestycja pod wynajem dzięki doskonałej lokalizacji i funkcjonalnemu układowi.
- Lokalizacja: Centrum, blisko Dworca Głównego i Rynku
- Powierzchnia: 50,20 m²
- Piętro: IV z IV w zadbanej kamienicy
- Wysokość pomieszczeń: 3 metry
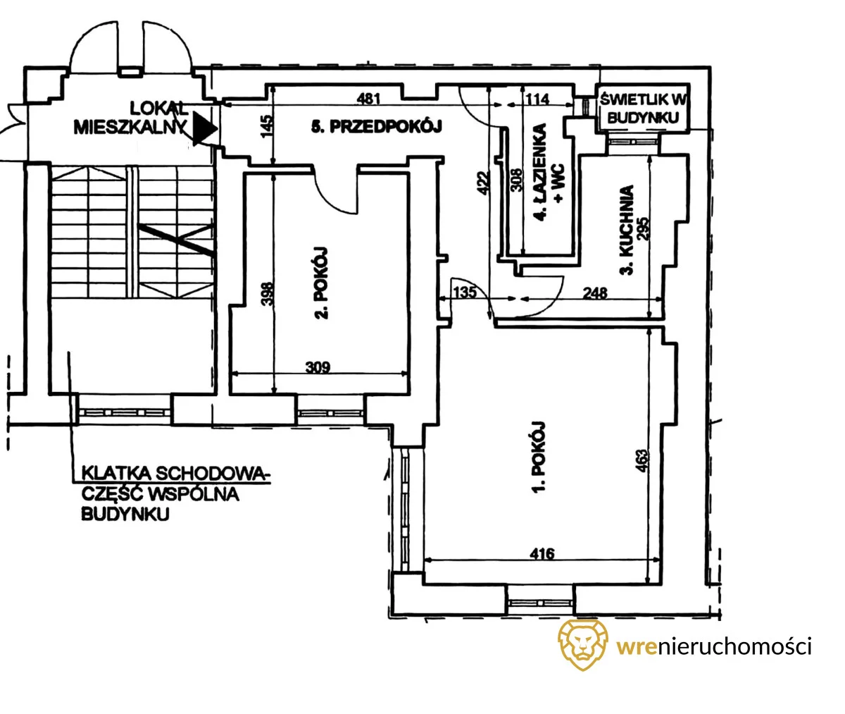
Układ pomieszczeń:
- Salon - 19,27 m²
- Pokój - 11,70 m²
- Kuchnia - 6,00 m²
- Łazienka z WC - 3,45 m²
- Przedpokój - 9,78 m²
Dodatkowo: do mieszkania przynależy piwnica - 4,59 m²
Atuty nieruchomości: Mieszkanie jest jasne i przestronne, z wysokimi sufitami sięgającymi 3 metrów, co dodatkowo potęguje poczucie przestrzeni. Wnętrze wyposażone jest w okna PCV, które zapewniają dobrą izolację termiczną i akustyczną. Atutem nieruchomości jest funkcjonalny układ - dwa niezależne pokoje oraz osobna, nowoczesna kuchnia z meblami wykonanymi na wymiar. W przedpokoju znajduje się duża, pojemna szafa (zabudowa pod wymiar aż do sufitu), która oferuje mnóstwo miejsca do przechowywania. Dodatkowym udogodnieniem jest możliwość bezpłatnego parkowania na podwórku kamienicy.
Stan budynku:
- wyremontowany dach
- odświeżona klatka schodowa
- planowany remont elewacji
Lokalizacja - centrum życia miejskiego i spokój zieleni:
Zaledwie:
- 1,1 km do Dworca Głównego
- 1,6 km do Rynku
- 10 minuty spacerem do Wzgórza Partyzantów i terenów rekreacyjnych nad Fosą Miejską
W pobliżu:
- Renoma, Wroclavia, Galeria Dominikańska, Pasaż Grunwaldzki
- Uniwersytet Wrocławski, Uniwersytet Przyrodniczy, Politechnika Wrocławska
- Park Staromiejski, Wrocławskie Centrum SPA
- Liczne sklepy, restauracje oraz pełna infrastruktura komunikacyjna
Koszty utrzymania:
Czynsz: 760 zł
Zapraszam do kontaktu i umówienia się na prezentację!
Mariusz Krysztoforski
tel.: 577 277 161
WRE Nieruchomości
ul. Piłsudskiego 49-51
50-032 Wrocław
NOTA PRAWNA:
Opis oferty zawarty na stronie internetowej sporządzany jest na podstawie oględzin nieruchomości oraz informacji uzyskanych od właściciela, może podlegać aktualizacji i nie stanowi oferty określonej w art. 66 i następnych K.C.