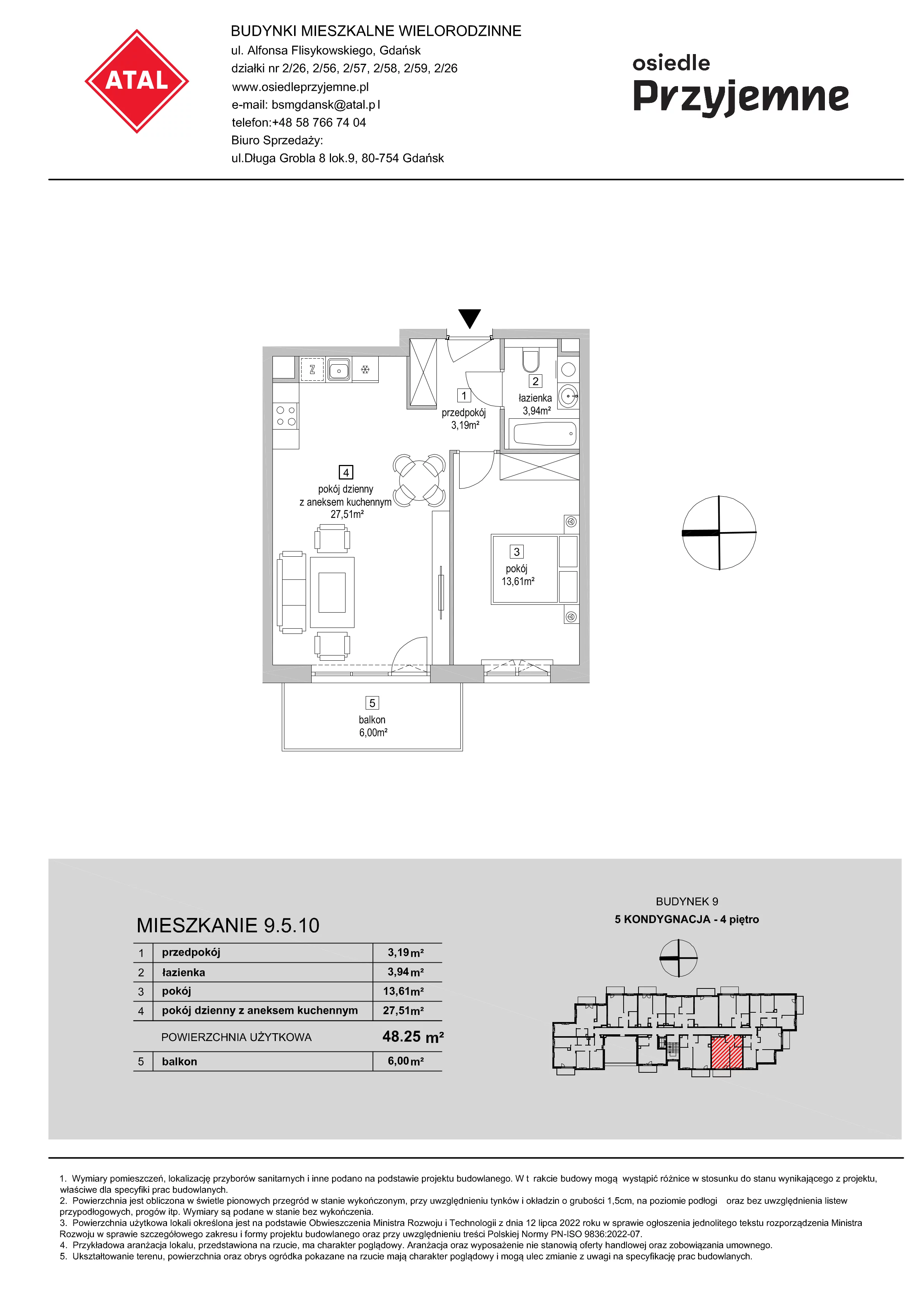
Nowe mieszkanie, 48,25 m², 2 pokoje, parter, oferta nr 9.1.10
529 525,00 zł
10 974,61 zł/m²
Monitoring cen
Inwestycja Osiedle Przyjemne - etap IV
Gdańsk, Jasień, ul. Flisykowskiego






Liczba pokoi:
2 pokoje
Powierzchnia:
48,25 m²
Garaż:
parking naziemny, parking podziemny
Powierzchnie dodatkowe:
komórka lokatorska
Powierzchnie zewnętrzne:
balkon (6,00 m²), ogródek (25,00 m²)
Termin oddania:
IV kwartał 2026