Nowe mieszkanie, 74,87 m², 4 pokoje, parter, oferta nr 9
801 002 zł
10 700 zł /m²
cena rynkowa
Rata 3 748 zł/mies. - sprawdź >
Monitoring cen
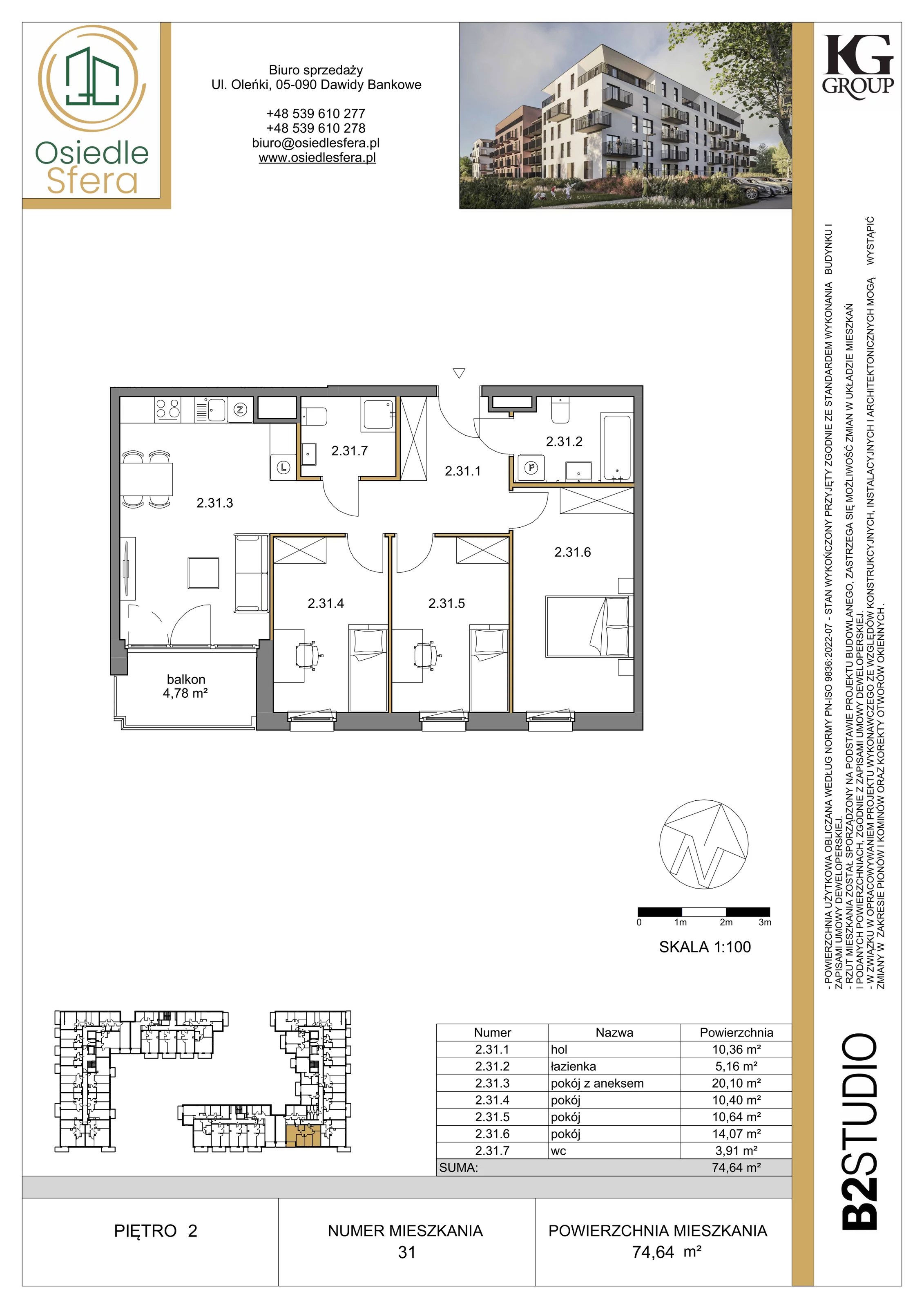
Inwestycja Osiedle Sfera - Etap II
Dawidy Bankowe, ul. Oleńki 14




Mapa
Liczba pokoi:
4 pokoje
Powierzchnia:
74,87 m²
Piętro:
parter
Liczba poziomów:
1
Garaż:
parking naziemny, parking podziemny
Powierzchnie dodatkowe:
komórka lokatorska
Powierzchnie zewnętrzne:
taras (4,78 m²)
Termin oddania:
Etap II - gotowe do odbioru
Zapytaj o ofertę





















