Nowa Niższa Cena!!!
Proponujemy na sprzedaż, nowoczesne
4-pokojowe mieszkanie o powierzchni 63,92 M2 z dużym tarasem dachowym przy ul. Łotewskiej w Słupsku
Mieszkanie sprzedawane z wyposażeniem
Oferujemy na sprzedaż nowoczesne, dwustronne, czteropokojowe mieszkanie o powierzchni całkowitej 63,92 m2 z dużym tarasem dachowym o powierzchni 34,99 m2 przy ul. Łotewskiej w Słupsku. Do mieszkania przynależy wyznaczone miejsce parkingowe.
Osiedle Nice Home:
To luksusowe osiedle z zielonym patio oraz urokliwą pergolą. Zróżnicowana zabudowa, bogata oferta mieszkań oraz bliskość lasu tworzą bardzo atrakcyjny charakter osiedla. Lokal mieszkalny znajduje się na pierwszym piętrze budynku wielorodzinnego, w którym znajduje się jedynie osiem lokali mieszkalnych - każdy z bezpośrednim wejściem z osiedla.
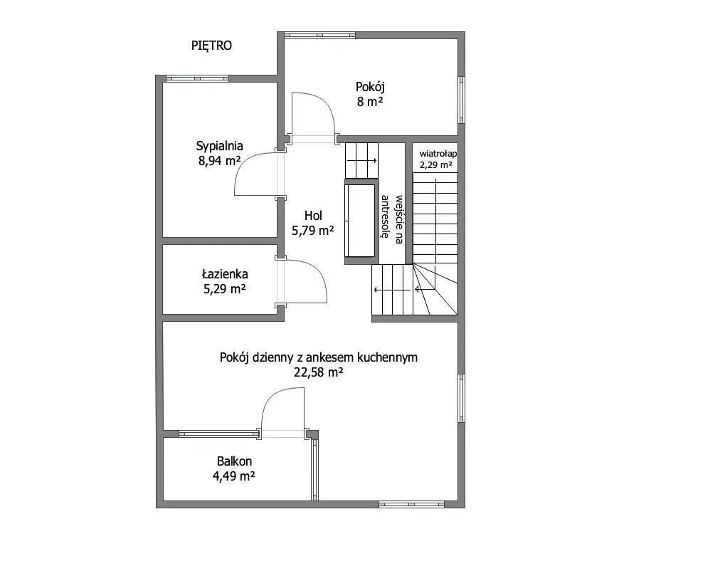
Układ pomieszczeń i powierzchnia 63,92 m2:
- salon z aneksem kuchennym - 22,58 m2,
- pokój - 8,94 m2,
- pokój - 8 m2,
- łazienka z wc - 5,29 m2,
- komunikacja - 4,05 m2,
- hol - 5,79 m2,
- wiatrołap - 2,29 m2,
- antresola - 6,98 m2.
Do mieszkania dostajemy się przez wiatrołap. To pierwsza część lokalu, prowadząca na pierwsze piętro przez schody. Serce mieszkania to przestronny salon połączony z aneksem kuchennym. Właściciele wykończyli nieruchomość w nowoczesnym i eleganckim stylu. Salon wyposażony został w rozkładaną, wygodną rogówkę, duży rozsuwany stół wraz z kompletem krzeseł oraz szafkę RTV z telewizorem. Z salonu bezpośrednie wyjście na balkon z widokiem na panoramę miasta. Kuchnia zabudowana wysokiej jakości meblami oraz wyposażona w nowoczesne urządzenia AGD takie jak płyta indukcyjna, zmywarka, piekarnik, mikrofalówka, okap kuchenny czy lodówko-zamrażarka. W sypialni znajduje się duże łóżko, szafa w zabudowie, szafka oraz telewizor, natomiast w kolejnym pokoju jest biurko, kanapa oraz duża szafa. Łazienka to zdecydowanie nietuzinkowe pomieszczenie. Przepiękne kafle ze wzorami idealnie komponują. Szklany parawan w stylu loft prowadzi do drugiej części łazienki. Podwieszana szafka z umywalką zapewni komfort użytkowania. W korytarzu znajdziemy szafę w zabudowie do przechowywania wszystkich niezbędnych rzeczy, a także schody prowadzące do sypialni na poddaszu. Jest to dodatkowa przestrzeń, gdzie znajduje się duże łóżko, telewizor a także garderoba. Mieszkanie zostało wykończone w nowoczesnym stylu, z użyciem wysokiej jakości materiałów i sprzętu. Całość świetnie się ze sobą komponuje, a dbałości o każdy detal i dodatki czyni tą nieruchomość wyjątkową.
Taras dachowy:
Wisienką na torcie jest imponujący taras dachowy o powierzchni 34,99 m2, który oferuje panoramiczny widok na okolicę. To idealne miejsce na poranną kawę, relaks po pracy czy spotkania z przyjaciółmi przy zachodzie słońca. Taras jest idealnie przystosowany - znajdzie się miejsce na grilla oraz zieleń, która zapewnia kameralny klimat.
Dodatkowe informacje:
- status własności - pełna własność,
- centralne ogrzewanie z pieca gazowego dwufunkcyjnego,
- ogrzewanie podłogowe,
- wszystkie okna PCV,
- balkon,
- taras dachowy o powierzchni 34,99 m2,
- prywatne, zewnętrzne miejsce postojowe przypisane do lokalu,
- dodatkowo miejsca parkingowe ogólnodostępne,
- osiedle zamknięte,
- wiata na rowery dla mieszkańców osiedla,
- czynsz do Wspólnoty Mieszkaniowej w wysokości ok.250 zł,
- nieruchomość sprzedawana z wyposażeniem.
Nie przegap tej okazji! To mieszkanie to idealna propozycja dla osób, które cenią sobie komfort, piękne widoki i życie w sercu wydarzeń. Nie przegap okazji, by zamieszkać w tej wyjątkowej przestrzeni - skontaktuj się z nami już dziś!
Cena: 719 000 PLN
Strona Kupująca pokrywa wynagrodzenie prowizyjne dla biura.
Więcej informacji uzyskasz kontaktując się z nami:
728 202 030 - Marta Patyna (opiekun oferty)
799 799 397 - Dominika Szramiak
503 901 101 - Adrianna Iwanicka
799 799 313 - Marta Rutkowska
669 647 067 - Karolina Jakuczun
728 111 007 - Przemek Pryzwan
Serdecznie zapraszam Państwa na prezentację nieruchomości, z przyjemnością odpowiem na wszelkie pytania oraz udzielę dodatkowych informacji.
Zamierzasz kupić nieruchomość i skorzystać z finansowania banku? Pomożemy dokonać Ci dobrego wyboru najlepszej oferty spośród wielu banków. Nasz doradca dostosuje ofertę kredytu hipotecznego do Twoich potrzeb i oczekiwań oraz będzie do Twojej dyspozycji na każdym etapie procesu kredytowego.
Niniejsza oferta nie stanowi oferty w rozumieniu Kodeksu Cywilnego, a dane w niej zawarte mają jedynie charakter informacyjny i mogą ulec zmianie.
Oferta wysłana z systemu Galactica Virgo