Prezentujemy na sprzedaż w pełni wyposażony lokal mieszkalny w Ustce przy ul. Grunwaldzkiej o powierzchni 72,27M2 z balkonem. IV piętro, sieć miejska.
Spółdzielczo własnościowe prawo do lokalu!
Proponujemy do sprzedaży atrakcyjny, komfortowy, dobrze doświetlony czteropokojowy lokal mieszkalny o powierzchni 72,27m2. Mieszkanie znajduje się na IV piętrze czterokondygnacyjnego nowoczesnego budynku. Klatka, zabezpieczona domofonem, szeroka oraz zadbana. Do mieszkania przynależy piwnica. Lokal mieszkalny to idealna propozycja dla osób szukających kameralnej zabudowy oraz estetycznych, niebanalnych rozwiązań architektonicznych, zapewniających najwyższy komfort życia. Przyszli mieszkańcy będą mogli cieszyć się przestronnymi i funkcjonalnymi wnętrzami oraz pełną soczystej zieleni i nowoczesnych udogodnień przestrzenią osiedla.
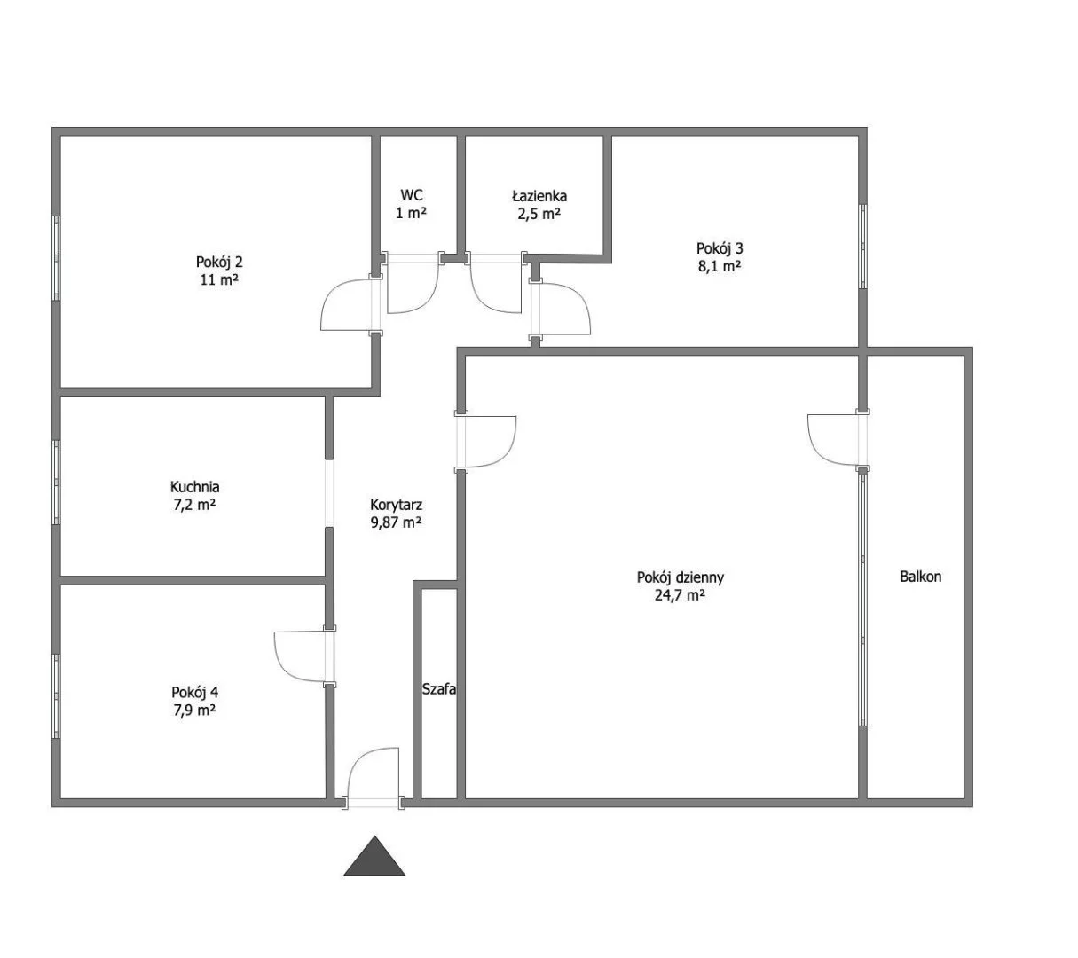
Mieszkanie to powierzchnia 72,27m2, na którą składa się: korytarz, łazienka, WC, kuchnia, pokój dzienny z wyjściem na balkon oraz trzy pokoje sypialniane.
Mieszkanie to idealna przestrzeń dla osób poszukujących sprawdzonych i komfortowych rozwiązań. Przestronny pokój dzienny stanowi centrum mieszkania. Duże okna balkonowe sprawiają, że w pomieszczeniu jest słonecznie. Część wypoczynkowa z rogówką, stołem z krzesłami i komodą na telewizor to najlepsze miejsce na popołudniowy relaks i spotkania z przyjaciółmi. Kuchnia zabudowana nowoczesnymi meblami, wyposażona w sprzęt AGD. Z pokoju dziennego prowadzi wyjście na balkon. W mieszkaniu została wydzielona strefa nocna, na którą składają się trzy pokoje pełniące rolę sypialni. Duża łazienka została zaprojektowana w każdym detalu. W całości wyłożona glazurą i terakotą, wyposażona w kabinę prysznicową. Korytarz rozkładowy względem pozostałych pomieszczeń.
Lokal mieszkalny przy ul. Grunwaldzkiej umiejscowiony jest w otoczeniu przyrody, którą docenią w szczególności rodziny, osoby aktywne zawodowo, jak również dojrzałe pary. Mieszkanie oraz osiedle zapewniają pełną kameralność, prywatność, intymność oraz ciszę. Jest to doskonałe miejsce na realizowanie swoich pasji. DOSKONAŁA LOKALIZACJA pozwala cieszyć się życiem z dala od wielkomiejskiego zgiełku, oferując jednocześnie bogatą infrastrukturę handlowo-usługową. W okolicy znajdują się szkoły, las, plaża, parki czy place zabaw dla najmłodszych. Atutem nieruchomości jest wspaniała lokalizacja. Charakter miejscowości czyni, iż jest to oferta skierowana do osób ceniących ciszę, spokój i bliskość natury. Niedaleka odległość od plaży Morza Bałtyckiego sprawia, iż nieruchomość idealnie nadaje się do celów zarobkowych. Dzielnica, której tradycją jest całoroczny wynajem nieruchomości. KUP, MIESZKAJ LUB ZARABIAJ!
Dodatkowe informacje:
- mieszkanie sprzedawane z wyposażeniem,
- forma własności - Spółdzielcze własnościowe,
- czynsz na rzecz Spółdzielni Mieszkaniowej - 630zł (ogrzewanie, ciepła i zimna woda, wywóz nieczystości, sprzątanie klatek, eksploatacja, fundusz remontowy),
- ogrzewanie oraz ciepła woda z sieci miejskiej,
- wszystkie okna PCV,
- mieszkanie dwustronne,
- do mieszkania przynależy piwnica o pow. 10m2,
- ogólnodostępne miejsca parkingowe dla mieszkańców wokół budynku,
- rok budowy 1986 r.
CENA: 690 000 PLN
Strona Kupująca pokrywa wynagrodzenie prowizyjne dla biura.
Więcej informacji uzyskasz kontaktując się z nami:
728 20 20 30 - Marta Patyna (opiekun oferty)
669 647 067 - Karolina Jakuczun
799 799 313 - Marta Rutkowska, licencja 23697
503 901 101 - Adrianna Iwanicka, licencja 23687
728 111 007 - Przemek Pryzwan
799 799 397 - Dominika Szramiak
www.gryfnieruchomosci.pl
Serdecznie zapraszam Państwa na prezentację nieruchomości, z przyjemnością odpowiem na wszelkie pytania oraz udzielę dodatkowych informacji. Zamierzasz kupić nieruchomość i skorzystać z finansowania banku? Pomożemy dokonać Ci dobrego wyboru najlepszej oferty spośród wielu banków. Nasz doradca dostosuje ofertę kredytu hipotecznego do Twoich potrzeb i oczekiwań oraz będzie do Twojej dyspozycji na każdym etapie procesu kredytowego. Niniejsza oferta nie stanowi oferty w rozumieniu Kodeksu Cywilnego, a dane w niej zawarte mają jedynie charakter informacyjny i mogą ulec zmianie.
Oferta wysłana z systemu Galactica Virgo