Wynajem hali w centrum Słupska - ul. Poznańska
Mamy przyjemność zaprezentować Państwu wyjątkową ofertę wynajmu hali o powierzchni około 250 m² , położonej w sercu Słupska , przy ul. Poznańskiej. To idealna propozycja dla przedsiębiorców poszukujących funkcjonalnej i dobrze skomunikowanej przestrzeni do prowadzenia działalności.
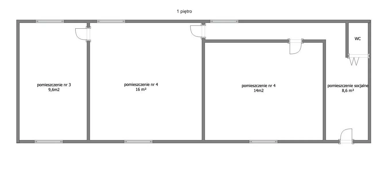
Opis obiektu:
Powierzchnia całkowita: ok. 250 m²
Układ funkcjonalny: hala składa się z 5 pomieszczeń - przestrzeni głównej oraz kilku mniejszych, które mogą pełnić rolę biur, magazynów podręcznych, zaplecza socjalnego lub warsztatu specjalistycznego.
Stan techniczny: obiekt w dobrym stanie, gotowy do użytkowania, z możliwością dostosowania pod indywidualne potrzeby najemcy.
Dojazd i dostęp: dogodny dojazd zarówno dla samochodów osobowych, jak i dostawczych; przed halą znajdują się miejsca parkingowe dla klientów i pracowników.
Atuty nieruchomości:
Świetna lokalizacja - centrum miasta, w pobliżu głównych arterii komunikacyjnych.
Uniwersalne zastosowanie - hala idealna pod magazyn, warsztat, działalność usługowo-produkcyjną, logistyczną, a także hurtownię .
Dostępność od zaraz - nie wymaga skomplikowanych adaptacji.
Elastyczny układ - 5 pomieszczeń umożliwia dostosowanie przestrzeni do różnych potrzeb biznesowych.
Parking na miejscu - komfort dla pracowników i klientów.
Warunki najmu
Czynsz: 8 000 PLN + media
Kaucja zwrotna: 8 000 PLN
Wynagrodzenie pośrednika: 8 000 PLN
Dla kogo?
Hala świetnie sprawdzi się dla:
firm handlowych i dystrybucyjnych (hurtownie, magazyny)
przedsiębiorstw produkcyjnych
warsztatów samochodowych i specjalistycznych
firm budowlanych i usługowych potrzebujących przestrzeni do pracy i przechowywania sprzętu
osób poszukujących dużej, centralnie położonej przestrzeni użytkowej
Oferta wysłana z systemu Galactica Virgo