Opiekun oferty:
Konrad Rakowiecki
tel. 602 101 602
Na sprzedaż lokal o powierzchni 247,44 m2 położony na I piętrze w biurowcu przy ul. Tęczowej.
Podana cena jest ceną netto i należy doliczyć do niej podatek VAT 23%.
Otoczenie nieruchomości:
Budynek znajduje się blisko ruchliwej, dobrze skomunikowanej ulicy. W niedalekiej odległości znajdują się przystanki komunikacji miejskiej, dzięki czemu dojazd do biura jest wygodny zarówno dla pracowników, jak i klientów. Dodatkowym atutem jest szybkie połączenie z Dworcem Głównym PKP i PKS podróż zajmuje niecałe 10 minut samochodem lub 15 minut komunikacją miejską.
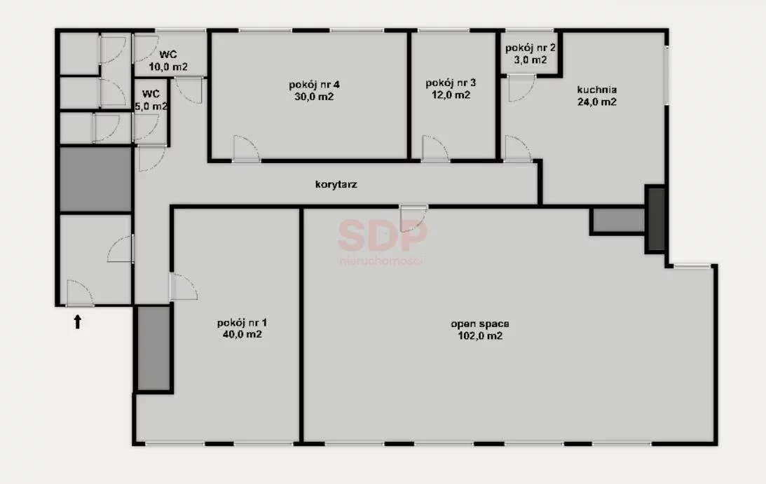
Lokal oferuje funkcjonalny układ pomieszczeń, który można elastycznie dostosować do charakteru działalności idealnie sprawdzi się jako biuro, kancelaria lub siedziba firmy.
Układ pomieszczeń:
- open space 102,0 m2
- pokój nr 1 - 40,0 m2
- pokój nr 2 - 3,0 m2
- pokój nr 3 - 12,0 m2
- pokój nr 4 - 30,0 m2
- kuchnia - 24,0 m2
- WC 10,0 m2 i 5,0 m2
- korytarz
Wnętrze lokalu jest jasne i przyjazne, dzięki dużym oknom i przeszkleniom, które zapewniają dostęp naturalnego światła przez cały dzień. Za oknami rozciąga się kojący widok na zieleń, co tworzy przyjemne warunki do pracy i sprzyja koncentracji.
Budynek jest dostępny 24 godziny na dobę, 7 dni w tygodniu, co daje pełną swobodę w organizacji pracy i pozwala dopasować rytm funkcjonowania firmy do indywidualnych potrzeb. Cały obiekt jest monitorowany i chroniony, co gwarantuje poczucie bezpieczeństwa zarówno pracownikom, jak i klientom. W budynku znajduje się recepcja, która wita gości i dba o komfort codziennego funkcjonowania firm w obiekcie.
Dodatkowym atutem jest miejsce parkingowe oraz możliwość umieszczenia reklamy na elewacji budynku, co zapewnia doskonałą widoczność i wzmacnia wizerunek firmy wśród przechodniów i kierowców.
Najważniejsze informacje:
- wysokość pomieszczeń 2,7 m
- miejsce parkingowe w cenie lokalu
- toaleta i pomieszczenie socjalne w lokalu
- dostęp 24/7 dni w tygodniu
- winda w budynku
- wentylacja i klimatyzacja
- możliwość montażu reklam
- budynek monitorowany i chroniony
- podjazd dla osób niepełnosprawnych
Rekomendacja Eksperta SDP Nieruchomości: Oferta stanowi doskonałą propozycję dla przedsiębiorców prowadzących działalność biurową oraz dla inwestorów, dzięki wyjątkowo korzystnej lokalizacji.
Niedostateczne środki? To nie problem:
Pomagamy w uzyskaniu finansowania na tę i inne nieruchomości. Zadzwoń i zapytaj o szczegóły.