Na sprzedaż 3-pokojowe mieszkanie położone na granicy Krakowa oraz Wieliczki.
LOKALIZACJA
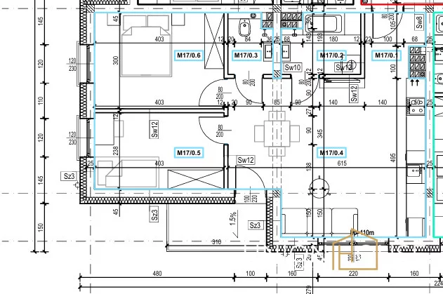
Ostatnie mieszkanie w stanie deweloperskim sprzedaż o powierzchni 59,11m², usytuowane w Wieliczce przy ul. Wygoda.
Doskonała lokalizacja – nieruchomość znajduje się na końcu cichej, osiedlowej ulicy, w pobliżu zieleni, a jednocześnie blisko centrum Wieliczki. W okolicy znajdują się sklepy, restauracje, przedszkola, szkoła oraz galeria handlowa. Blisko znajduje się przystanku PKP skąd dojedziemy w 18 minut do centrum Krakowa.
MIESZKANIE
W skład nieruchomości wchodzą: przestronny salon z aneksem kuchennym, dwie sypialnie, komunikacja, łazienka z WC oraz balkon.
Mieszkanie jest w stanie deweloperskim zgodnie z widokiem na zdjęciach
Wykończenie obejmuje gładzie na ścianach.
Każde mieszkanie może być wykończone "pod klucz" wg. preferencji klienta.
Mieszkańcy mogą korzystać z rowerowni oraz wózkowni.
Do mieszkania przynależy komórka lokatorska (ok. 3 m2) oraz opcjonalne miejsca postojowe (dodatkowo płatne).
Kupujący zwolniony z podatku PCC.
CENA
669 000 PLN
W naszej ofercie posiadamy także inne mieszkania w tym budynku w metrażach od 48 m² do 98 m². Oferujemy mieszkania dwupokojowe, trzypokojowe oraz większe, dostępne w stanie deweloperskim lub wykończone "pod klucz".
Pozostałe dostępne mieszkania:
piętro 1
Mieszkanie - 58,26 m2
Mieszkanie -59,11 m2
piętro 2
Mieszkanie – 64,49 m2
piętro 3
Mieszkanie - 84,56 m2
W celu uzyskania szczegółowych informacji proszę o kontakt telefoniczny.
Oferta wysłana z programu dla biur nieruchomości ASARI CRM (asaricrm.com)