Sprzedaż mieszkań w stanie deweloperskim – Wieliczka
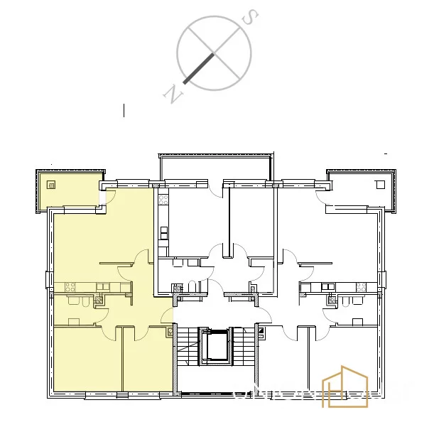
Zapraszamy do zakupu mieszkania o powierzchni 65,33 m2 w nowoczesnym budynku w okolicach ul. Wygoda w Wieliczce w stanie deweloperskim, idealne dla osób szukających komfortowego i funkcjonalnego miejsca do życia.
Inwestycja będzie do odbioru w marcu 2026 roku.
Lokalizacja:- Spokojna i cicha okolica, idealna do życia.
- Bliskość centrum Wieliczki, z pełną infrastrukturą (sklepy, szkoły, przedszkola, tereny rekreacyjne).
- Wygodny dostęp do komunikacji miejskiej i dróg wyjazdowych z miasta.
- Malownicze tereny wokół – blisko do Parku, a także do kopalni soli, która jest jednym z najważniejszych punktów w okolicy.
Oferowane mieszkania:- Mieszkania o różnych metrażach, idealne zarówno dla singli, jak i rodzin.
- Doskonały rozkład pomieszczeń zapewniający komfort użytkowania.
- Wysoka jakość użytych materiałów budowlanych i wykończeniowych.
- Duże okna zapewniające doskonałe nasłonecznienie.
Dodatkowe udogodnienia:- 6 indywidualnych garaży w bryle budynku, o powierzchni 18 m² każdy – komfortowe miejsce do parkowania bez konieczności szukania miejsca.
- 21 miejsc postojowych zewnętrznych – dla gości i dodatkowych użytkowników.
- Dla każdego mieszkania przewidziano komórkę lokatorską o powierzchni powyżej 2 m² – idealne rozwiązanie do przechowywania rzeczy.
Wymiary pomieszczeń:
Przedpokój: 9.4 m2
Pokój + aneks kuchenny: 27.56 m2
Pokój: 10.16 m2
Pokój: 14.28 m2
Łazienka: 3.93 m2
Balkon: 6.5 m2
CENA705 564 PLNCena brutto m2 komórki lokatorskiej: 3 500 zł
Cena brutto naziemnego miejsca postojowego: 25 000- 55 000
W celu uzyskania szczegółowych informacji proszę o kontakt telefoniczny.
Kontakt do agenta:
Alina Dolejsz