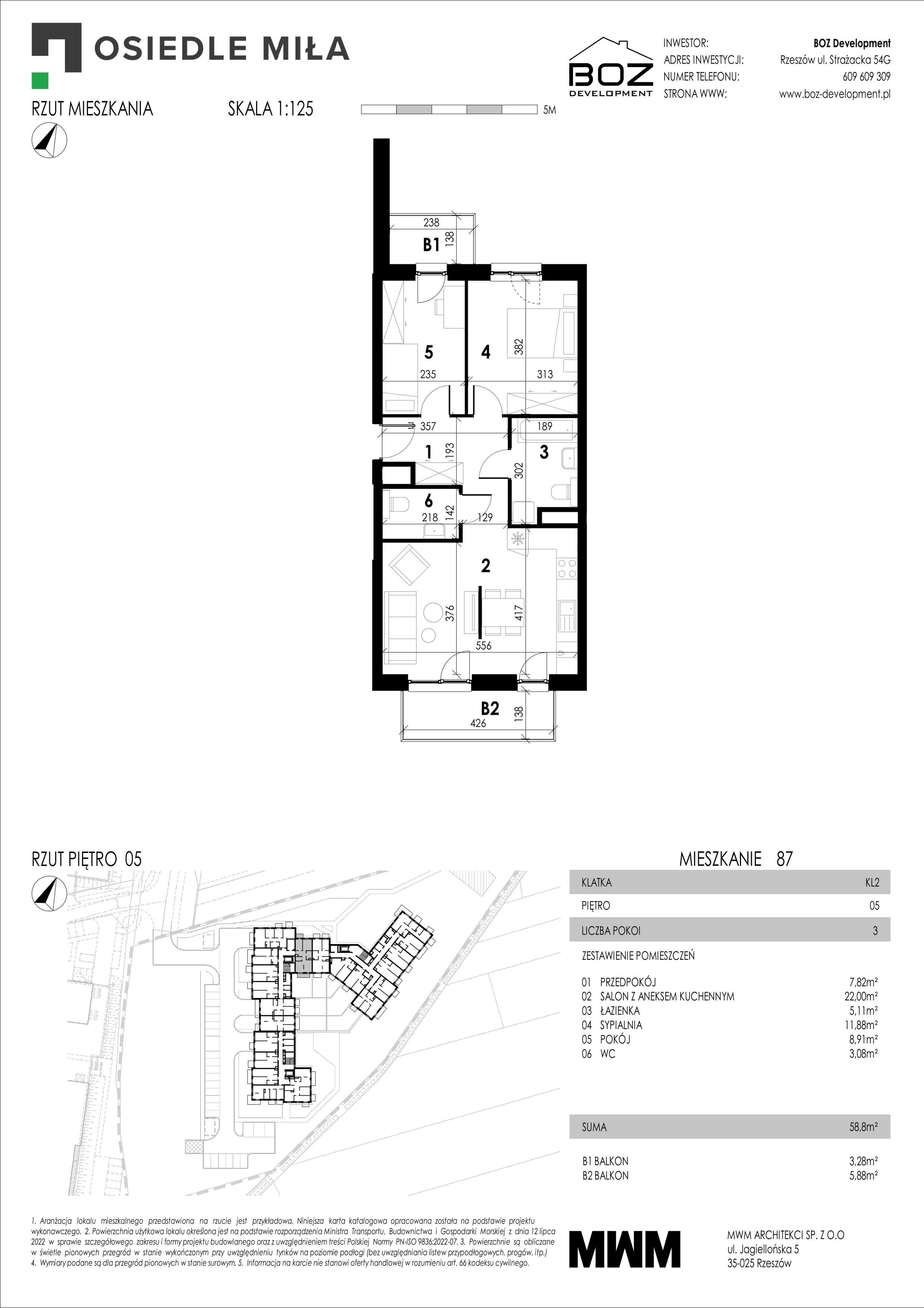
Nowe mieszkanie, 58,80 m², 3 pokoje, 5 piętro, oferta nr 87NOWOŚĆ
Zapytaj o ofertę
573 300,00 zł
9 750,00 zł/m²
Rata 2 923 zł/mies. - sprawdź >
Monitoring cen
Inwestycja Strażacka 54G
Rzeszów, Drabinianka, ul. Strażacka 54




Mapa
Liczba pokoi:
3 pokoje
Powierzchnia:
58,80 m²
Piętro:
5 piętro
Liczba poziomów:
1
Powierzchnie dodatkowe:
komórka lokatorska
Termin oddania:
I kwartał 2026