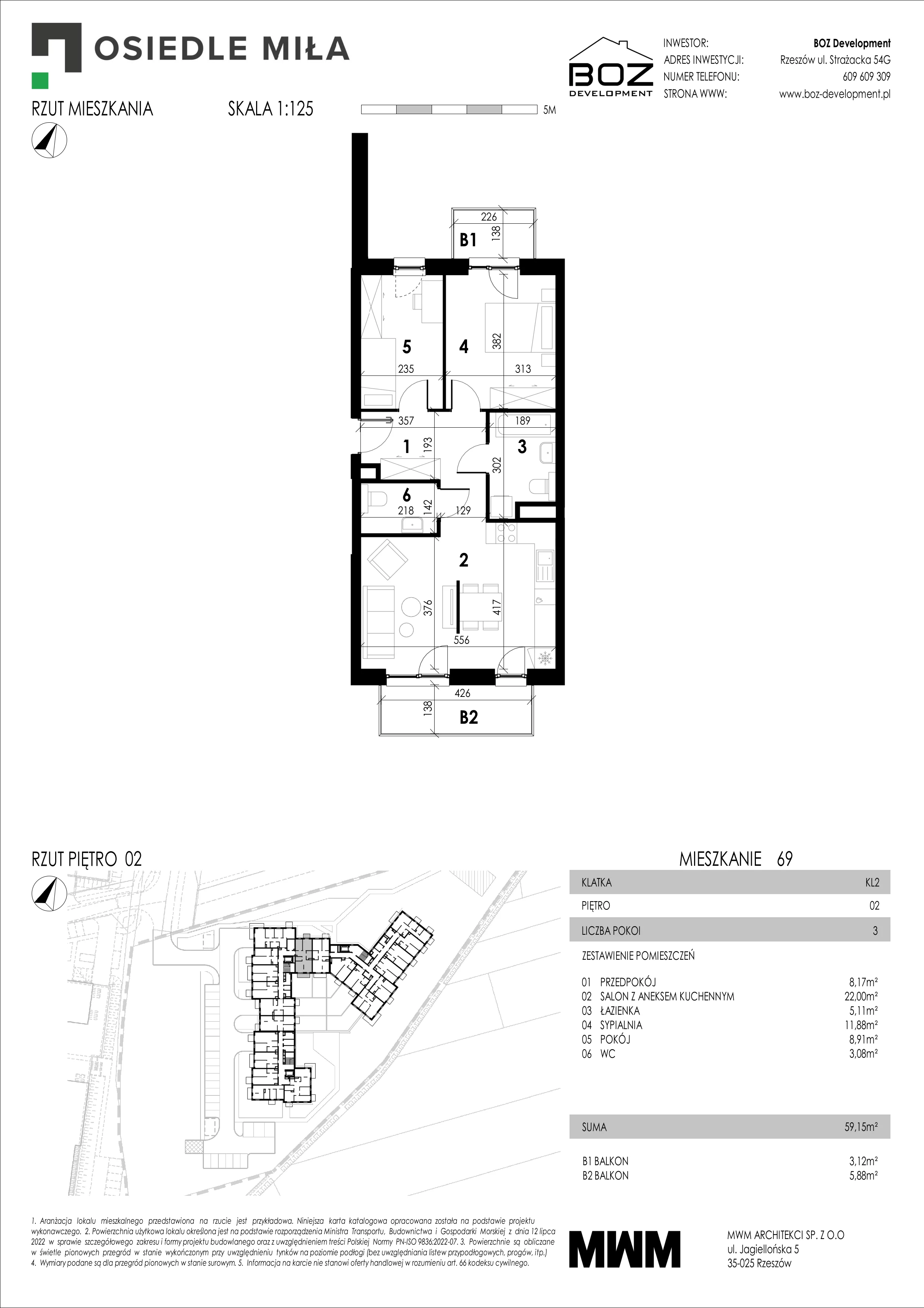
Mieszkanie 3 pokojowe o metrażu 59,15 m² zlokalizowane na 2 piętrze w budynku 6-piętrowym.
Inwestycja mieszkaniowa Strażacka 54G budowana przez firmę BOZ DEVELOPMENT pod adresem Strażacka 54 na Drabiniańce w Rzeszowie.
W budynku zaplanowano takie udogodnienia jak: winda oraz komórka lokatorska. Na terenie osiedla: plac zabaw, teren rekreacyjny, miejsca parkingowe.
W niedalekiej odległości od inwestycji dostępna jest dla przyszłych mieszkańców pełna infrastruktura: szkoły (Niepubliczna Szkoła Zdrowia i Designu w Rzeszowie - 500 m), przedszkola (Przedszkole - 850 m, Przedszkole Logopedyczne Gadułka oddział I - 400 m, Przedszkole Logopedyczne Gadułka oddział II - 600 m, Przedszkole Niepubliczne "Wyspa Skarbów" - 550 m, Przedszkole Publiczne Sióstr Serafitek - 850 m, Akademia Dziecka. Przedszkole niepubliczne - 600 m) oraz obiekty rekreacyjne.