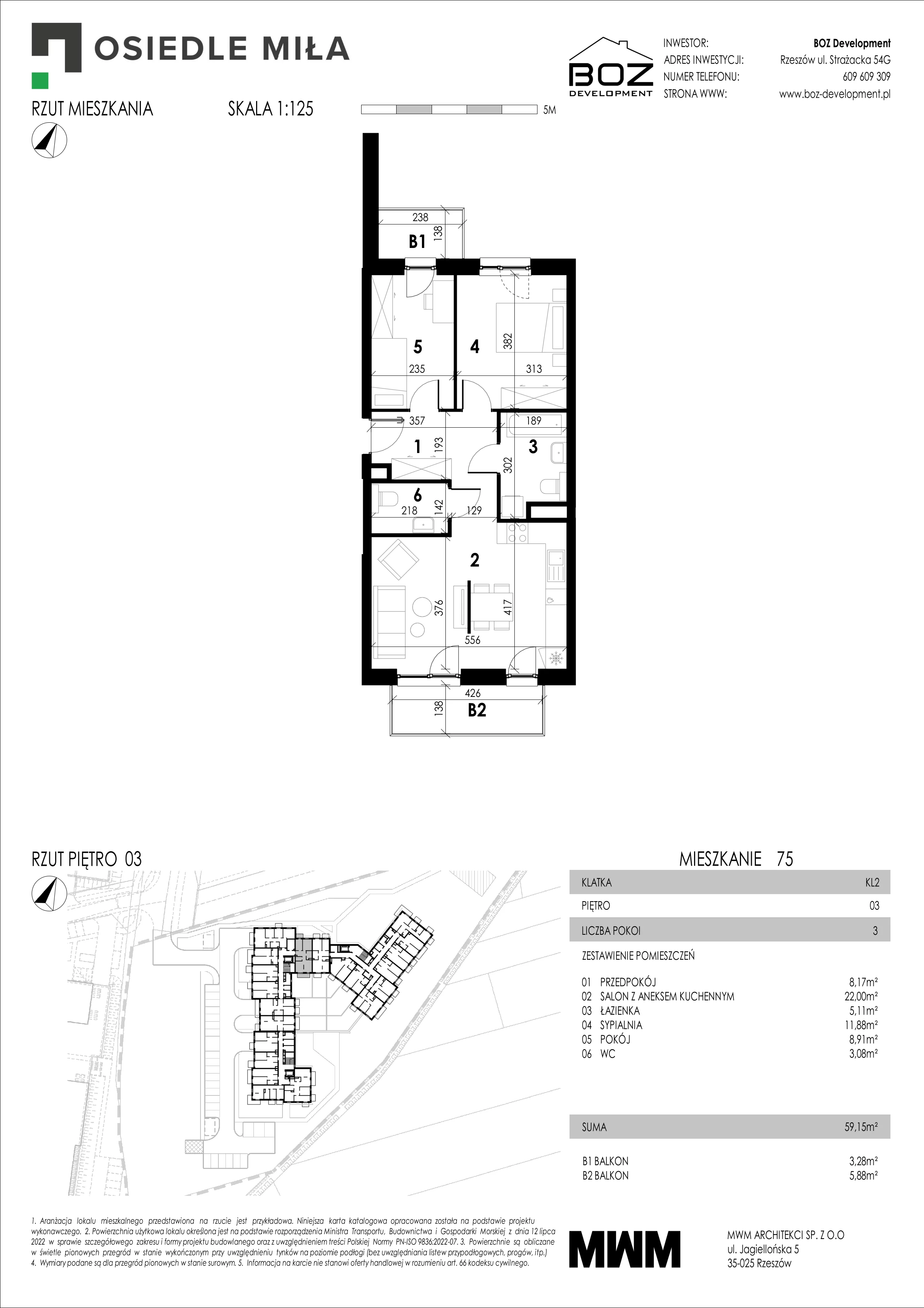
Mieszkanie na sprzedaż 3 pokojowe o powierzchni 59,15 m² zaprojektowane na 3 piętrze w budynku sześciopiętrowym.
Inwestycja Strażacka 54G realizowana przez BOZ DEVELOPMENT przy ulicy Strażacka 54 na Drabiniańce w Rzeszowie.
W bloku zaplanowano udogodnienia: winda oraz komórka lokatorska. Na osiedlu: miejsca parkingowe, plac zabaw, teren rekreacyjny.
W niedalekiej odległości od inwestycji do dyspozycji mieszkańców jest infrastruktura: przedszkola (Akademia Dziecka. Przedszkole niepubliczne - 600 m, Przedszkole - 850 m, Przedszkole Logopedyczne Gadułka oddział I - 400 m, Przedszkole Logopedyczne Gadułka oddział II - 600 m, Przedszkole Publiczne Sióstr Serafitek - 850 m, Przedszkole Niepubliczne "Wyspa Skarbów" - 550 m), szkoły (Niepubliczna Szkoła Zdrowia i Designu w Rzeszowie - 500 m) oraz obiekty rekreacyjne.