LOKALIZACJA
Ostatnie mieszkanie na sprzedaż o powierzchni 48m², usytuowane w Wieliczce przy ul. Wygoda
Doskonała lokalizacja – nieruchomość znajduje się na końcu cichej, osiedlowej ulicy, w pobliżu zieleni, a jednocześnie blisko centrum Wieliczki. W okolicy znajdują się sklepy, restauracje, przedszkola, szkoła oraz galeria handlowa. Blisko znajduje się przystanku PKP skąd dojedziemy w 18 minut do centrum Krakowa.
MIESZKANIE
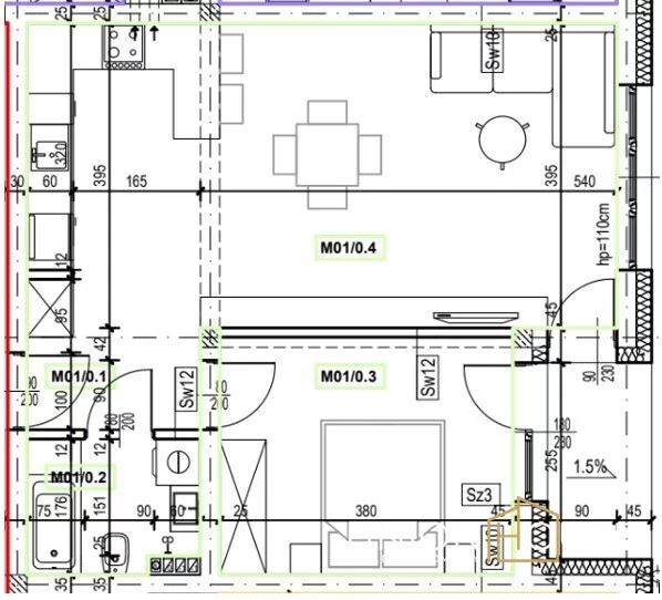
W skład nieruchomości wchodzą: przestronny salon z aneksem kuchennym, sypialnia, komunikacja, łazienka z WC oraz ogródek 53 m2.
Mieszkanie jest w stanie deweloperskim zgodnie z widokiem na zdjęciach.
Wykończenie obejmuje gładzie na ścianach.
Każde mieszkanie może być wykończone "pod klucz" wg. preferencji klienta.
Mieszkańcy mogą korzystać z rowerowni oraz wózkowni.
Do mieszkania przynależy komórka lokatorska (ok. 3 m2) oraz opcjonalne miejsca postojowe (dodatkowo płatne).
CENA
562 000 PLN
Kupujący zwolniony z podatku PCC.
W naszej ofercie posiadamy także inne mieszkania w tym budynku w metrażach od 48 m² do 98 m². Oferujemy mieszkania dwupokojowe, trzypokojowe oraz większe, dostępne w stanie deweloperskim lub wykończone "pod klucz".
POZOSTAŁE DOSTĘPNE MIESZKANIA
parter
Mieszkanie -63.21 m2 z ogródkiem 222m2 – 759 000 PLN
1 Piętro
Mieszkanie - 64.49 m2 - 695 000 PLN
Piętro 2
Mieszkanie - 59.11 m2 - 669 000 PLN
Mieszkanie – 58.96 m2 - 669 000 PLN
W celu uzyskania szczegółowych informacji proszę o kontakt telefoniczny.
Oferta wysłana z programu dla biur nieruchomości ASARI CRM (asaricrm.com)