Opiekun oferty:
Daniel Matoszyn
602 101 602
2-pokojowe mieszkanie z balkonem w centrum Wrocławia | Idealne na biuro lub mieszkanie inwestycyjne | Okolice Placu Legionów
Otoczenie nieruchomości:
Inwestycja znajduje się w ścisłym centrum Wrocławia, w bezpośrednim sąsiedztwie ul.Piłsudskiego i placu Legionów. W promieniu kilkunastu minut pieszo znajdują się kluczowe punkty miasta, takie jak Dworzec Główny PKP, Capitol, Rynek, Teatr Polski, Opera Wrocławska czy Narodowe Forum Muzyki. Doskonała lokalizacja zapewnia dostęp do uczelni wyższych, kultury, rozrywki i usług. Od strony balkonu jest zielone patio dostępne dla mieszkańców.
Układ pomieszczeń:
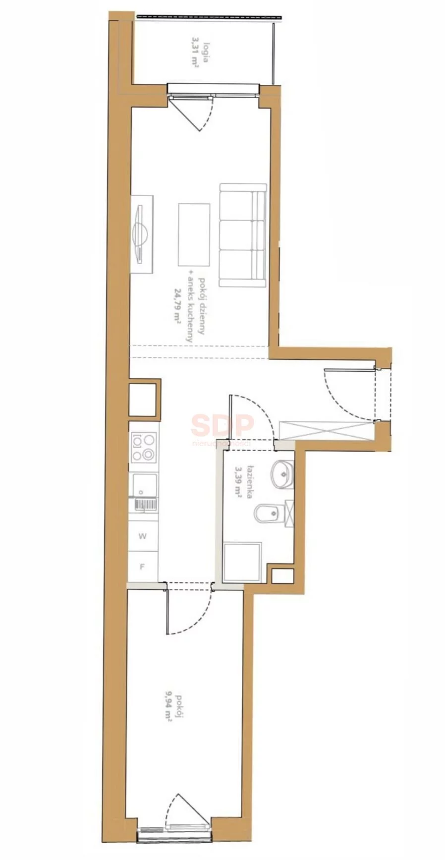
Mieszkanie o powierzchni 39 m2 znajduje się na 1. piętrze i składa się z:
- Salon z aneksem kuchennym 24,79 m2
- Sypialnia 9,94 m2
- Łazienka 3,31 m2
- Loggia (balkon)
- Ekspozycja okien: północny zachód / południowy wschód.
- Lokal jest dwustronny i bardzo dobrze doświetlony.
Najważniejsze informacje:
- Przeznaczenie: małe biuro lub mieszkanie
- Powierzchnia: 39 m2
- Piętro: 1
- Liczba pokoi: 2
- Rok budowy: 2025
- Stan: deweloperski, gotowe do odbioru
- Typ własności: pełna własność
- Typ kuchni: aneks
- Ogrzewanie: miejskie
- Winda: tak
- Balkon: tak
- Okna: PCV
- Standard budynku: luksusowy
- Możliwość zakupu miejsca parkingowego na platformie w budynku (półautomatyczny system parkowania)
- Drzwi antywłamaniowe o podwyższonych parametrach akustycznych
- Wideodomofon
- Ogrzewanie podłogowe w łazience
- Wyprowadzenie pod klimatyzację
- Nawiewniki antysmogowe
- Monitoring wizyjny i szybki internet
- Oświetlenie LED w częściach wspólnych
- Zielony dach - redukcja podatku od nieruchomości o 50%
- W ofercie załączono wizualizacje możliwej aranżacji nieruchomości
Zakup nieruchomości na zasadach cesji.
Rekomendacja eksperta SDP Nieruchomości:
To mieszkanie doskonałe sprawdzi się jako małe biuro rachunkowe, kancelaria itp. Będzie też odpowiednie dla singla, pary lub jako inwestycja pod wynajem. Połączenie prestiżowej lokalizacji, nowoczesnych technologii i wysokiego standardu budynku gwarantuje komfort i bezpieczeństwo na co dzień.
Finansowanie:
Pomagamy w uzyskaniu finansowania na zakup tej i innych nieruchomości. Skontaktuj się z nami po szczegóły.
Zapraszam na prezentację!
Daniel Matoszyn
602 101 602