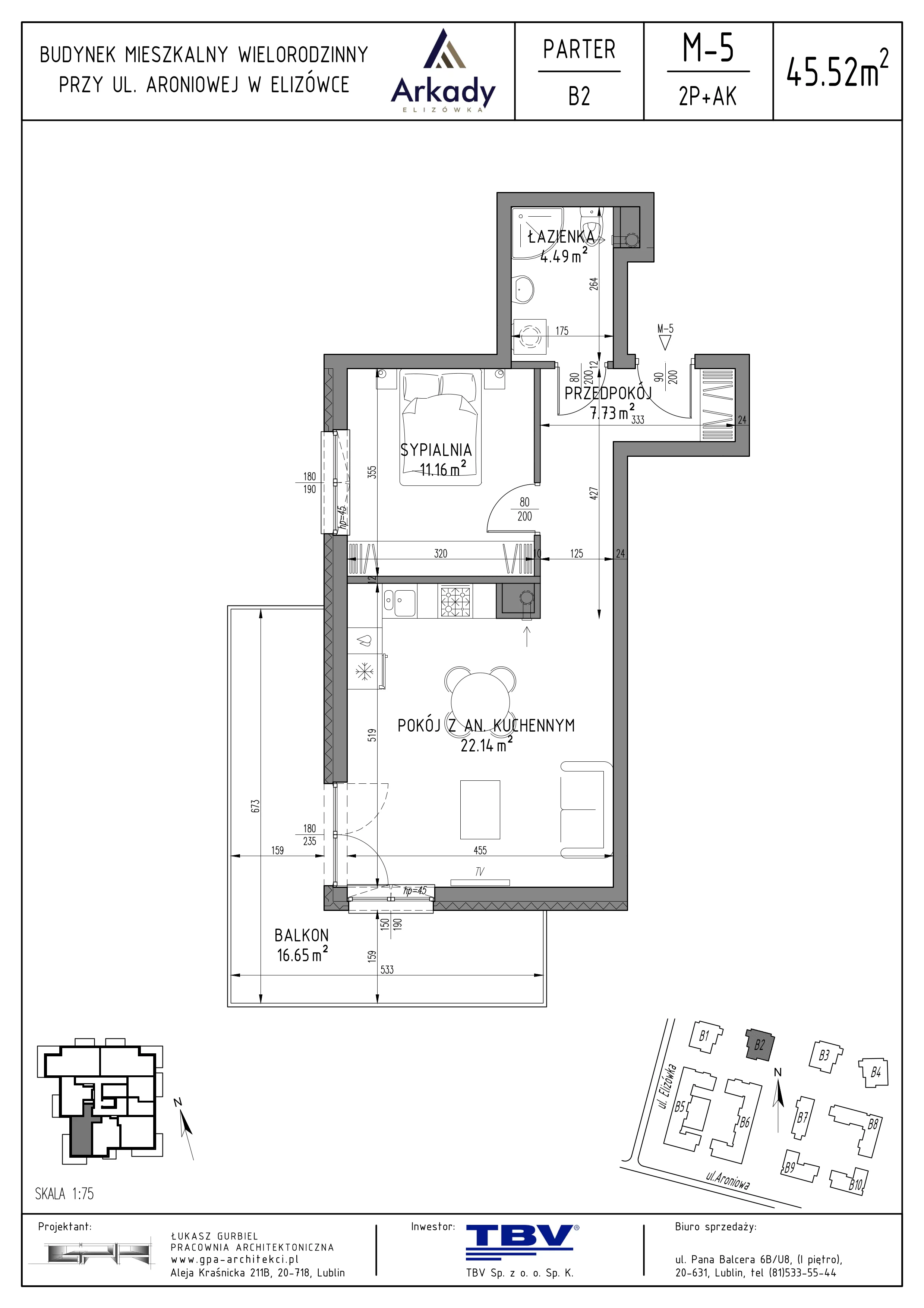
Nowe mieszkanie, 45,52 m², 2 pokoje, parter, oferta nr B2-LM05NOWOŚĆ
Inwestycja Osiedle Arkady
441 544,00 zł
Rata 2 251 zł/mies. - sprawdź >
Elizówka, ul. Elizówka 46




Mapa
Cena:
441 544,00 zł
Cena za m²:
9 700,00 zł
Liczba pokoi:
2 pokoje
Powierzchnia:
45,52 m²
Liczba poziomów:
1
Strony świata:
południe (S), zachód (W)
Garaż:
parking naziemny, parking podziemny
Powierzchnie dodatkowe:
komórka lokatorska
Powierzchnie zewnętrzne:
balkon (16,65 m²)
Termin oddania:
IV kwartał 2026