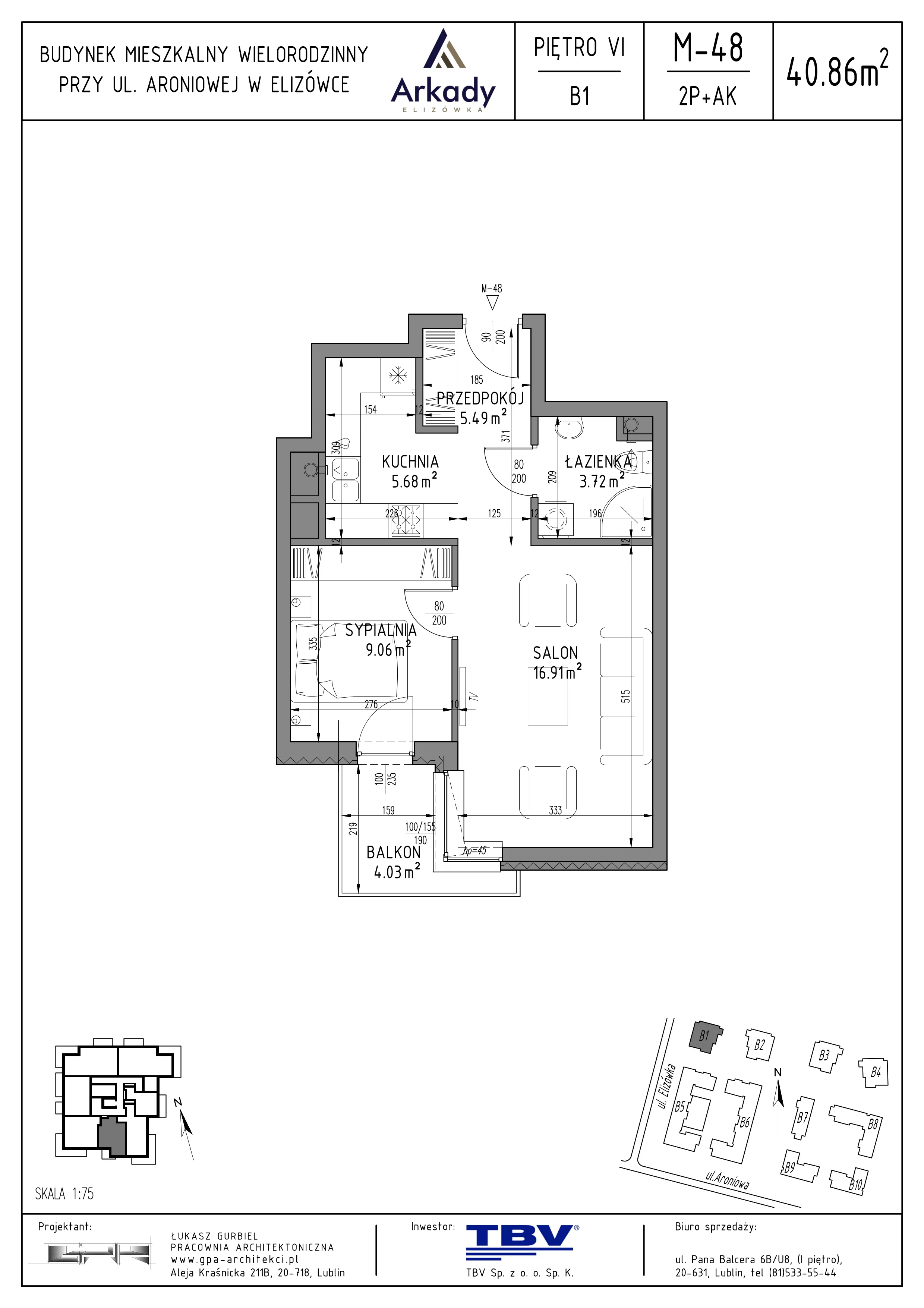
Nowe mieszkanie, 40,86 m², 2 pokoje, 6 piętro, oferta nr B1-LM48NOWOŚĆ
Inwestycja Osiedle Arkady
404 514,00 zł
Rata 2 062 zł/mies. - sprawdź >
Elizówka, ul. Elizówka 46




Mapa
Cena:
404 514,00 zł
Cena za m²:
9 900,00 zł
Liczba pokoi:
2 pokoje
Powierzchnia:
40,86 m²
Piętro:
6 piętro
Liczba poziomów:
1
Strony świata:
południe (S), zachód (W)
Garaż:
parking naziemny, parking podziemny
Powierzchnie dodatkowe:
komórka lokatorska
Powierzchnie zewnętrzne:
balkon (4,03 m²)
Termin oddania:
IV kwartał 2026