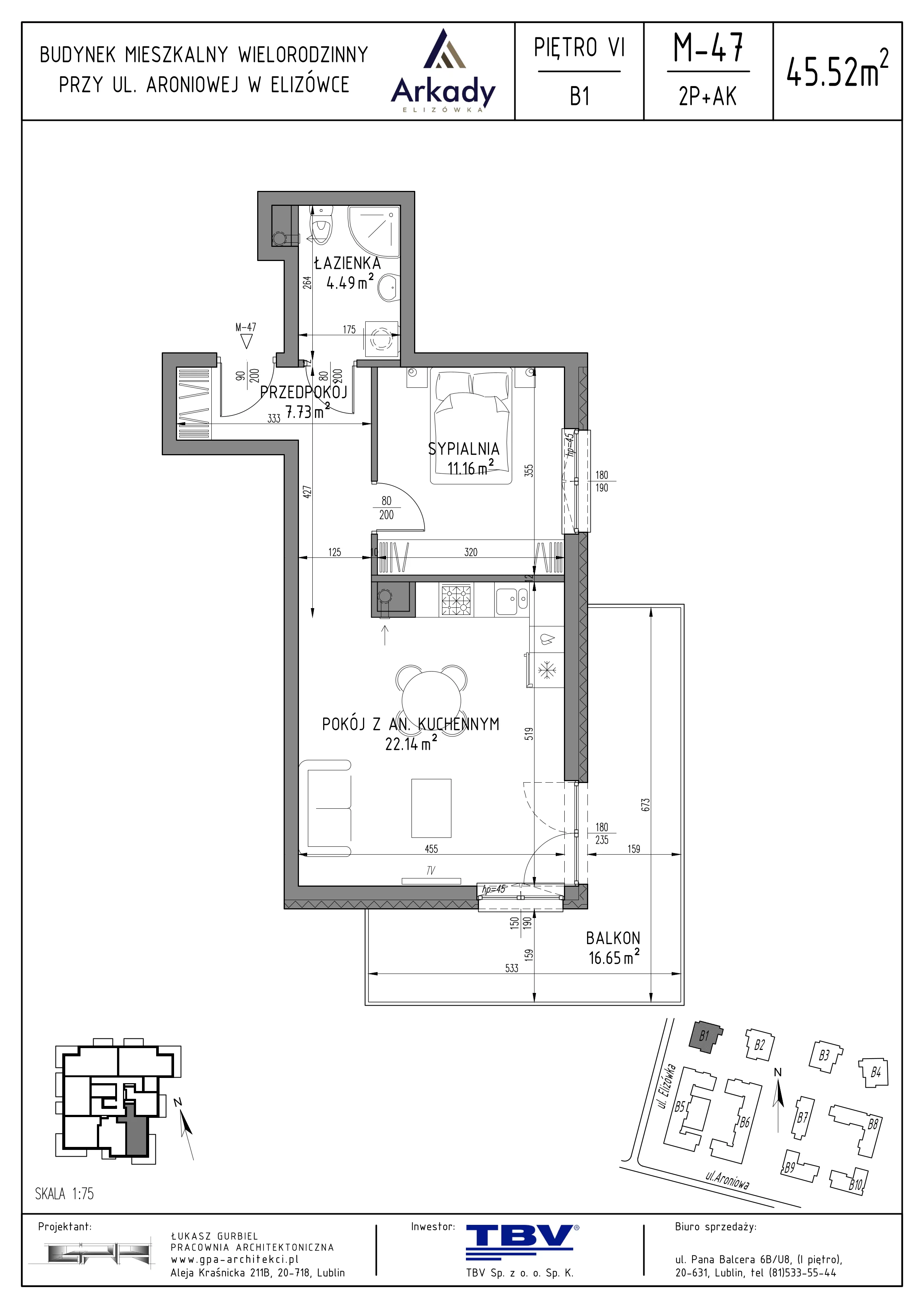
Nowe mieszkanie, 45,52 m², 2 pokoje, 6 piętro, oferta nr B1-LM47NOWOŚĆ
Inwestycja Osiedle Arkady
Elizówka, ul. Elizówka 46




Cena:
450 648,00 zł
Cena za m²:
9 900,00 zł
Liczba pokoi:
2 pokoje
Powierzchnia:
45,52 m²
Piętro:
6 piętro
Liczba poziomów:
1
Strony świata:
południe (S), wschód (E)
Garaż:
parking naziemny, parking podziemny
Powierzchnie dodatkowe:
komórka lokatorska
Powierzchnie zewnętrzne:
balkon (16,65 m²)
Termin oddania:
IV kwartał 2026