NIERUCHOMOŚĆ
Połowa bliźniaka o powierzchni użytkowej 140m2 w miejscowości Zapole pod Grodziskiem Maz.
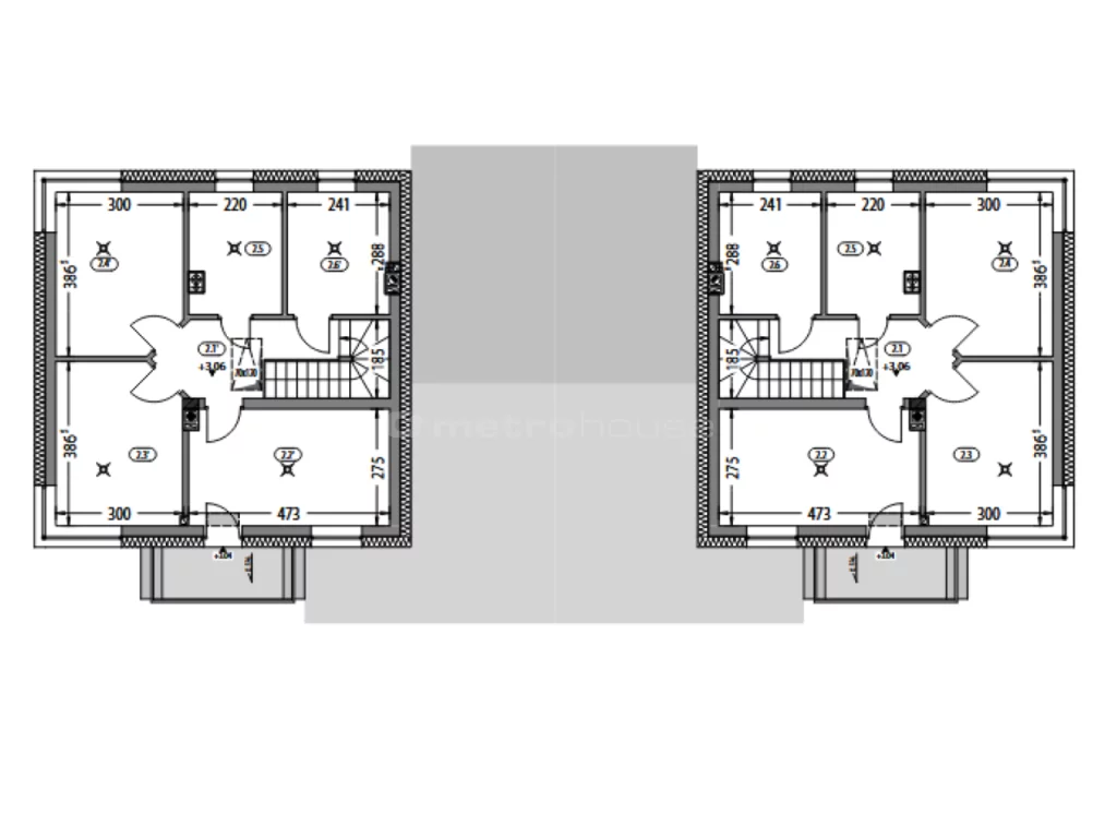
Na powierzchni ponad 35m² znajduje się przestronny salon z jadalnią oraz otwartą kuchnią. Dodatkowo na parterze znajduje się pokój który może być sypialnią lub gabinetem czy tez pokojem gościnnym, oraz łazienka.
Pierwsze piętro oferuje trzy komfortowe sypialnie (12,5/ 44/ 11m2), gwarantujące prywatność i spokojny sen. Na tym samym poziomie znajdują się również łazienka oraz funkcjonalna garderoba, co znacząco podnosi standard i komfort użytkowania domu.
ZALETY
Atutem nieruchomości jest garaż w bryle budynku, łączący połówki bliźniaka.
Oferowana nieruchomość to nie tylko doskonała infrastruktura i przemyślany układ pomieszczeń, ale również wysoka jakość wykończenia, co sprawia, że jest to inwestycja godna uwagi. Beton komórkowy H+H, ocieplenie styropianem 20cm.
OKOLICA
Oferowany dom znajduje się na przedmieściach, w spokojnej i zielonej okolicy, co gwarantuje mieszkańcom ciszę i spokój, zachowując jednocześnie łatwy dostęp do udogodnień miejskich. To idealna propozycja dla osób ceniących zarówno komfort, jak i bliskość natury. Do przystanku autobusowego ok 600m. Do centrum Grodziska tylko 5km, do wjazdu na trasę S8 4,5km
POŁOŻENIE
Gmina Grodzisk Mazowiecki jest znana z rozwiniętej infrastruktury, atrakcyjnych terenów zielonych oraz dogodnej komunikacji z Warszawą, co sprawia, że jest popularnym miejscem do życia dla osób pracujących w stolicy.
Czy wiesz, że możemy przygotować dla Ciebie prezentację on-line nieruchomości? Skontaktuj się z naszym Agentem i zapytaj o szczegóły.
Pomimo, iż Doradcy Metrohouse przykładają szczególną staranność do rzetelnego prezentowania informacji o nieruchomości, nie zawsze jest możliwa weryfikacja wszystkich danych przekazanych od osób trzecich. Niniejsza prezentacja oferty nie jest ofertą w rozumieniu Kodeksu Cywilnego i ma charakter wyłącznie informacyjny.