
Novisa Development
od 9 615 zł /m²
Łódź, Górna, ul. Pabianicka
3 pok.
49,60 – 49,82 m²
529 000 – 669 000 zł
8 543 – 9 021 zł /m²






Liczba pokoi:
3 - 4 pok.
Powierzchnia:
61,92 – 74,16 m²
Termin oddania:
I ETAP - IV kwartał 2026

Dzięki naszym funkcjonalnościom:
Osiedle zlokalizowane blisko przystanku komunikacji miejskiej - 200 m
W okolicy osiedla park - 1000 m
Plac zabaw na terenie osiedla
Teren rekreacyjny na osiedlu
Prywatne ogródki na parterze
Garaż
parking naziemny
Dostępna liczba ofert
9
Obecnie w sprzedaży pozostają 2 typy domów w inwestycji Boska Ksawerowska 2 na łódzkiej Górnej.
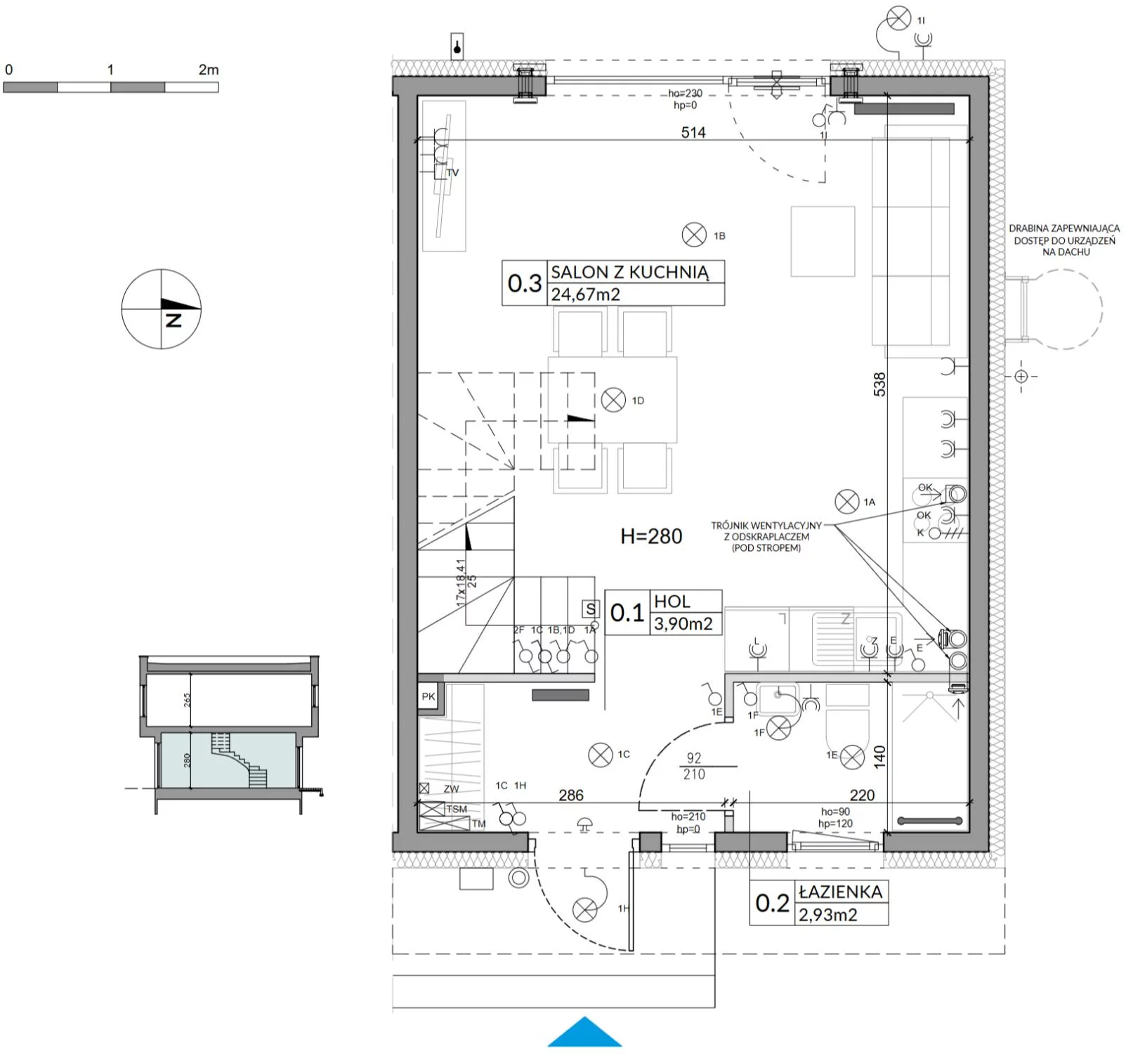
1. domy 61,95 m²: Strefa dzienna z ogrodem obejmuje salon z aneksem kuchennym i jadalnią, WC, garderobę na odzież wierzchnią, korytarz wejściowy oraz ogródek, a Strefa nocna rodzinna składa się z sypialni dla dziecka, sypialni małżeńskiej, łazienki oraz wewnętrznego korytarza prywatnego. Ten układ jest idealny dla pary lub rodziny 2+1, która chce mieszkać kompaktowo, ale bez rezygnowania z wygody na co dzień. Dużą przewagą jest osobne WC w strefie dziennej — przy wizytach gości domownicy zachowują pełną prywatność łazienki na piętrze, a poranki stają się sprawniejsze, bo dom „nie blokuje się” na jednym pomieszczeniu. Równie praktyczna jest garderoba na odzież wierzchnią: kurtki, buty, plecaki czy wózek dziecięcy mają swoje miejsce przy wejściu, dzięki czemu salon pozostaje uporządkowany i łatwiej utrzymać estetykę w części dziennej.
Aktualnie w sprzedaży: 4 takie domy. Sprawdź »
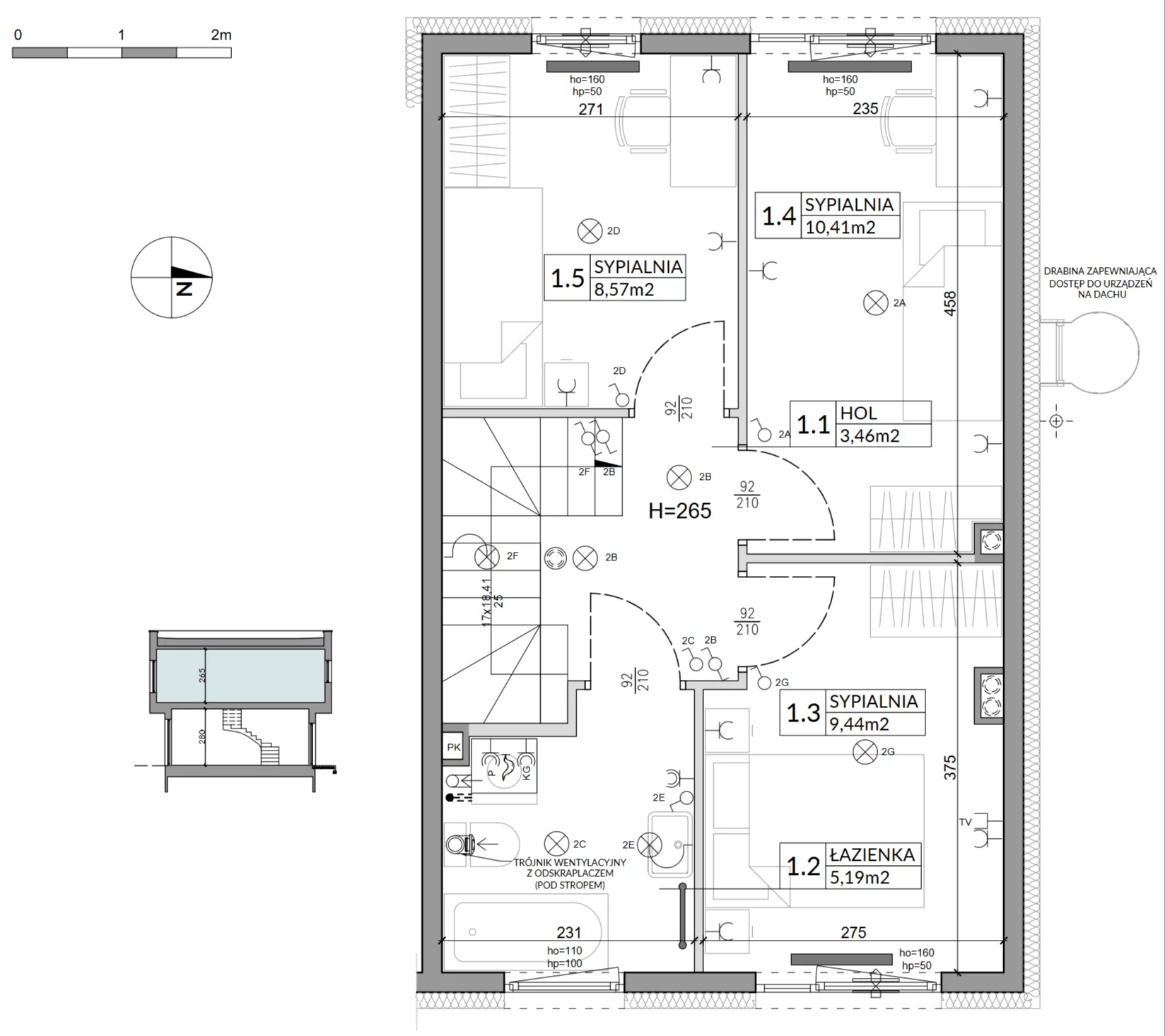
2. domy 74,16 m²: Strefa dzienna z ogrodem zawiera salon z aneksem kuchennym i jadalnią, łazienkę z oknem, korytarz wejściowy oraz ogródek, natomiast Strefa nocna dla większej rodziny to sypialnia małżeńska, dwie sypialnie dla dzieci, druga łazienka z oknem oraz wewnętrzny korytarz prywatny. To propozycja stworzona dla rodzin 2+2 (lub dla tych, którzy planują powiększenie rodziny), a także dla osób, które potrzebują elastyczności: dodatkowa sypialnia może pełnić funkcję pokoju rodzeństwa, gabinetu do pracy albo przestrzeni gościnnej. Zaletą są aż dwie sypialnie dla dzieci — łatwiej pogodzić różne rytmy dnia, zapewnić każdemu własny kąt i uniknąć kompromisów przy urządzaniu. Ogromnym atutem jest też liczba łazienek: dwie niezależne strefy sanitarne znacząco ułatwiają poranki, skracają kolejki przed wyjściem i poprawiają komfort, gdy domownicy mają różne godziny pracy, szkoły czy zajęć dodatkowych.
Aktualnie w sprzedaży: 5 takich domów. Sprawdź »
Podsumowując, w Boska Ksawerowska 2 dostępne są obecnie dwa przemyślane domy: bardziej kompaktowy 61,95 m² z praktycznym WC i garderobą przy wejściu oraz większy 74,16 m² z układem dla rodziny z dwojgiem dzieci i komfortem dwóch łazienek.
Chcesz sprawdzić, czy spełniasz warunki programu i jak Rodzinny Kredyt Mieszkaniowy wygląda w praktyce przy konkretnym lokalu? Zostaw kontakt.
Boska Ksawerowska 2 to kameralne osiedle stworzone z myślą o tych, którzy cenią spokój, przestrzeń i bliskość natury, nie rezygnując przy tym z wygód życia w mieście. To propozycja dla osób, które wybierają świadomie: szukają domu z charakterem, miejsca, gdzie można złapać oddech i odnaleźć balans. Wśród drzew, w otoczeniu prywatnych ogrodów, powstaje kameralne osiedle 60 domów w zabudowie bliźniaczej – dla tych, którzy cenią kameralność i prywatność.
Domy stworzone z myślą o Twojej codzienności:
Blisko natury. Blisko wszystkiego, co ważne:
Skorzystaj z Rodzinnego Kredytu Mieszkaniowego i kup dom w inwestycji Boska Ksawerowska 2 z minimalnym wkładem własnym – już ok. 20-30 tys. zł. Jeśli posiadasz zdolność kredytową, brakujący wkład może zostać objęty gwarancją BKG.
To rozwiązanie szczególnie korzystne dla rodzin i osób planujących przyszłość – w ramach programu, po narodzinach kolejnego dziecka, możliwa jest spłata części kredytu przez państwo (tzw. spłata rodzinna), która może sięgnąć nawet 60 000 zł.
To oznacza realny start we własny, przestronny dom z ogrodem, bez konieczności angażowania dużych oszczędności na początku.
Chcesz sprawdzić, jak to wygląda w praktyce przy konkretnym domu? Zostaw kontakt – oddzwonimy i przeprowadzimy Cię przez cały proces.
Idealna lokalizacja z myślą o rodzinie
W bezpośrednim sąsiedztwie Boskiej Ksawerowskiej 2 znajduje się rozbudowana infrastruktura edukacyjna – żłobki, przedszkola oraz szkoły podstawowe, co czyni osiedle szczególnie atrakcyjnym dla rodzin z dziećmi. Dodatkowym atutem lokalizacji jest dogodny dostęp do komunikacji miejskiej, co zapewnia szybki dojazd do centrum Łodzi oraz innych dzielnic miasta.
Kompletna infrastruktura na wyciągnięcie ręki
Mieszkańcy inwestycji mają do dyspozycji pełne zaplecze usługowe. W najbliższym otoczeniu znajdują się:
apteka i przychodnia, zapewniające komfort w zakresie opieki zdrowotnej,
poczta oraz bankomat, ułatwiające codzienne sprawy,
centrum handlowe oraz market, gwarantujące szeroki wybór produktów i usług.
Bliskość tych punktów pozwala zaoszczędzić czas i sprawia, że codzienne obowiązki stają się znacznie prostsze.
Kontakt z przyrodą i przestrzeń do wypoczynku
Boska Ksawerowska 2 to nie tylko wygoda, ale i kontakt z naturą. W pobliżu inwestycji znajduje się malowniczy staw, który stanowi doskonałe miejsce na spacery czy chwilę wytchnienia po pracy. Zadbana zieleń osiedlowa oraz planowane strefy rekreacyjne sprzyjają aktywnemu wypoczynkowi na świeżym powietrzu.
W okolicy
Nieruchomości na sprzedaż
Nieruchomości do wynajęcia
Rynek pierwotny