KOBYŁKA - SPRZEDAM DOM WOLNOSTOJĄCY z budynkiem, komercyjnym.
W Kobyłce koło Warszawy (powiat wołomiński) jest do sprzedania wolnostojący dom mieszkalny o powierzchni 224,01 m2 ( z 8 sypialniami z balkonami, jadalnią , salonem z tarasem oraz z kuchnią ) na działce o powierzchni 1 547 m2.
Budynek mieszkalny ma dwie kondygnacje: parter i piętro.
Na parterze znajdują się:
1) hall wejściowy o powierzchni: 15,50 m2
2) kuchnia z oknem o powierzchni: 8,40 m2
3) jadalnia o powierzchni: 16,12 m2
4) salon o powierzchni: 29,93 m2
5) sypialnia 1 o powierzchni: 6,26 m2
6) sypialnia 2 o powierzchni: 17,90 m2
7) toaleta z oknem o powierzchni: 2,90 m2
8) wiatrołap o powierzchni: 4,80 m2
.....................................................................................................................
ŁĄCZNA POWIERZCHNIA PARTERU: 110,64 m2
Na pierwszym piętrze znajdują się:
1) hall z klatką schodową o powierzchni: 11,30 m2
2) garderoba o powierzchni: 6,10 m2
3) sypialnia 1 o powierzchni: 11,10 m2
4) sypialnia 2 o powierzchni: 16,70 m2
5) sypialnia 3 o powierzchni; 14,80 m2
6) sypialnia 4 o powierzchni: 15,33 m2
7) sypialnia 5 o powierzchni: 11,10 m2
8) sypialnia 6 o powierzchni: 15,38 m2
9) łazienka 1 o powierzchni: 3,40 m2
10) łazienka 2 o powierzchni: 4,80 m2
11) toaleta o powierzchni: 2,90 m2
...........................................................................................................................
ŁĄCZNA POWIERZCHNIA PIĘTRA: 113,37 m2
Nad pierwszym piętrem znajduje się wysokie poddasze częściowo zagospodarowane.
Jest to powierzchnia nie ujęta w wyżej zamieszczonym opisie.
Za budynkiem mieszkalnym znajduje się murowany garaż na dwa samochody.
Na tej samej działce kilka lat temu wybudowano
piętrowy budynek komercyjny o powierzchni: 327,90 m2Na parterze budynku komercyjnego znajdują się:
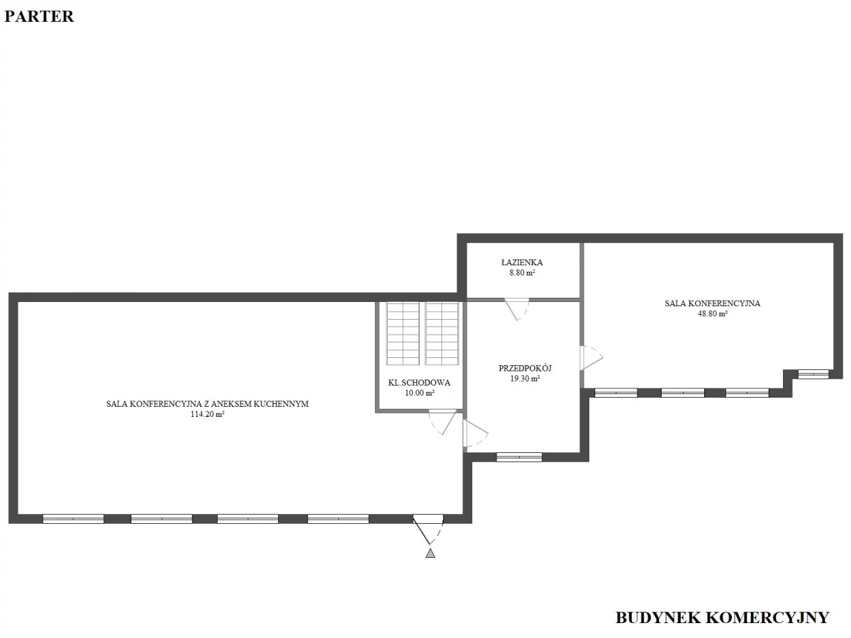
1) sala konferencyjna 1 o powierzchni: 114,20 m2
2) sala konferencyjna 2 o powierzchni: 48,80 m2
3) hall wejściowy o powierzchni: 19,30 m2
4) łazienka o powierzchni: 8,80 m2
Na piętrze budynku komercyjnego znajdują się:
1) sala konferencyjna z aneksem kuchennym o powierzchni: 117,00 m2
2) klatka schodowa o powierzchni: 9,80 m2
Na terenie działki jest kilkanaście miejsc parkingowych.
Nieruchomość znakomicie nadaje się na:
1) hostel
2) hotel pracowniczy
3) obiekt pod produkcją
4) zamieszkanie i prowadzenie działalności komercyjnej lub realizację innych przedsięwzięć.
Cena całej nieruchomości: 4 800 000 zł.
Zapraszam na prezentację.
KOBYŁKA - DETACHED HOUSE FOR SALE with a commercial building.
In Kobyłka, near Warsaw (Wołomin County), a detached residential house with an area of 224.01 m² (with 8 bedrooms with balconies, a dining room, a living room with a terrace, and a kitchen) is for sale on a 1,547 m² plot.
The residential building has two floors: ground floor and first floor.
The ground floor includes:
1) entrance hall, area: 15.50 m²
2) kitchen with a window, area: 8.40 m²
3) dining room, area: 16.12 m²
4) living room, area: 29.93 m²
5) bedroom 1, area: 6.26 m²
6) bedroom 2, area: 17.90 m²
7) toilet with a window, area: 2.90 m²
8) vestibule, area: 4.80 m²
.........................................................................................................
TOTAL GROUND FLOOR AREA: 110.64 m²
The first floor includes:
1) hall with a staircase, area: 11.30 m²
2) wardrobe, area: 6.10 m²
3) bedroom 1, area: 11.10 m²
4) bedroom 2 16.70 m²
5) Bedroom 3 14.80 m²
6) Bedroom 4 15.33 m²
7) Bedroom 5 11.10 m²
8) Bedroom 6 15.38 m²
9) Bathroom 1 3.40 m²
10) Bathroom 2 4.80 m²
11) Toilet 2.90 m²
.........................................................................................................................
TOTAL FLOOR AREA: 113.37 m²
Above the first floor is a high, partially furnished attic.
This area is not included in the description above.
Behind the residential building is a brick garage for two cars.
A few years ago, a two-story commercial building with an area of 327.90 m² was built on the same plot.
The ground floor of the commercial building includes:
1) conference room 1 with an area of 114.20 m²
2) conference room 2 with an area of 48.80 m²
3) entrance hall with an area of 19.30 m²
4) bathroom with an area of 8.80 m²
The first floor of the commercial building includes:
1) conference room with a kitchenette with an area of 117.00 m²
2) staircase with an area of 9.80 m²
The plot offers several parking spaces.
The property is ideal for:
1) a hostel
2) a staff hostel
3) a production facility
4) residential and commercial use or other projects.
Price for the entire property: PLN 4,800,000.
I invite you to a viewing.
КОБИЛЬКА - ПРОДАЄТЬСЯ ОКРЕМО БУДИНОК з комерційною будівлею.
У Кобилці, поблизу Варшави (Воломинський повіт), продається окремий житловий будинок площею 224,01 м² (з 8 спальнями з балконами, їдальнею, вітальнею з терасою та кухнею) на ділянці площею 1547 м².
Житловий будинок має два поверхи: перший та другий поверх.
Перший поверх включає:
1) передпокій, площа: 15,50 м²
2) кухня з вікном, площа: 8,40 м²
3) їдальня, площа: 16,12 м²
4) вітальня, площа: 29,93 м²
5) спальня 1, площа: 6,26 м²
6) спальня 2, площа: 17,90 м²
7) туалет з вікном, площа: 2,90 м²
8) тамбур, площа: 4,80 м²
................................................................................................................
ЗАГАЛЬНА ПЛОЩА ПЕРШОГО ПОВЕРХУ: 110,64 м²
Другий поверх включає:
1) хол зі сходами, площа: 11,30 м²
2) гардероб, площа: 6,10 м²
3) спальня 1, площа: 11,10 м²
4) спальня 2 16,70 м²
5) Спальня 3 14,80 м²
6) Спальня 4 15,33 м²
7) Спальня 5 11,10 м²
8) Спальня 6 15,38 м²
9) Ванна кімната 1 3,40 м²
10) Ванна кімната 2 4,80 м²
11) Туалет 2,90 м²
.........................................................................................................................
ЗАГАЛЬНА ПЛОЩА: 113,37 м²
Над першим поверхом знаходиться високий, частково мебльований горище.
Ця площа не входить до опису вище.
За житловим будинком знаходиться цегляний гараж на два автомобілі.
Кілька років тому на цій же ділянці було збудовано двоповерхову комерційну будівлю площею 327,90 м².
Перший поверх комерційної будівлі включає:
1) конференц-зал 1 площею 114,20 м²
2) конференц-зал 2 площею 48,80 м²
3) вхідний хол площею 19,30 м²
4) санвузол площею 8,80 м²
Перший поверх комерційної будівлі включає:
1) конференц-зал з міні-кухнею площею 117,00 м²
2) сходи площею 9,80 м²
На ділянці є кілька паркувальних місць.
Нерухомість ідеально підходить для:
1) хостелу
2) гуртожитку для персоналу
3) виробничого приміщення
4) житлового та комерційного використання або інших проектів.
Ціна за всю нерухомість: 4 800 000 злотих.
Запрошую на перегляд.
Zapraszamy do zapoznania się z ofertą domu na sprzedaż.Jeśli jednak szukasz czegoś innego, sprawdź, czy nie mamy w ofercie takiego domu na sprzedaż. Współpracujemy z wieloma biurami nieruchomości i agencjami, dzięki czemu nasi doradcy mogą zaproponować naprawdę wiele propozycji ofert nieruchomości na sprzedaż, także ma dostęp do domów, które jeszcze nie są wystawione na rynku. Skontaktuj się z doradcą wskazanym przy ofercie i zapytaj o szczegóły!
A może chcesz sprzedać podobną nieruchomość i szukasz warunków do porównania? Skontaktuj się z naszym doradcą wskazanym przy ofercie, który pomoże w przygotowaniu najlepszej strategii sprzedaży Twojego domu.
----
Chcesz kupić, sprzedać lub wynająć nieruchomość? W ramach świadczonej usługi proponujemy aktywny marketing, dzięki czemu nieruchomości szybciej się sprzedają lub wynajmują. Dla domów i mieszkań przygotowujemy profesjonalną oprawę wizualną w tym home staging, sesje fotograficzne, wykonujemy rzuty i plany. Oferty publikujemy na większości portali internetowych, w systemach MLS, na nieruchomościach umieszczamy banery, przygotowujemy i dystrybuujemy informacje drukowane, organizujemy akcje typu "Dzień Otwarty".
Jako profesjonaliści możemy wspierać naszych Klientów w całym procesie sprzedaży / zakupu / wynajmu nieruchomości - także pomagając w negocjacjach czy doradzając szczegółowe zapisy w umowach, dbając o zabezpieczenie ich interesów.
Jeśli potrzebujesz skorzystać z kredytu hipotecznego na zakup nieruchomości - również pomożemy go uzyskać w jednym z kilkudziesięciu banków i instytucji finansowych.
Potrzebujesz agenta lub chcesz uzyskać więcej informacji? Skontaktuj się z doradcą wskazanym przy ofercie!KOBYŁKA - INVESTMENT PROPERTY FOR SALE
A property with great investment potential is available for sale in Kobyłka, near Warsaw (Wołomin County). The area of the well-designed plot is: 1547 m²
The plot includes:
TWO-STOREY RESIDENTIAL BUILDING with an area of: 224.01 m² (ground floor and first floor), built in 1996
On the ground floor are:
1) boiler room 8.80 m²
2) bedroom 1 6.27 m²
2) bedroom 2 17.90 m²
3) hall 15.50 m²
4) living room 29.93 m²
5) dining room 16.12 m²
6) kitchen 8.40 m²
7) toilet 2.90 m²
8) vestibule 4.80 m²
..................................................................................................................................
TOTAL GROUND FLOOR AREA: 110.64 m²
On the first floor are:
1) hall 11.30 m2
2) walk-in closet 6.10 m2
3) bedroom 1 11.10 m2
4) bedroom 2 16.70 m2
5) bedroom 3 14.80 m2
6) bathroom 4.80 m2
7) toilet 2.90 m2
8) bedroom 4 15.33 m2
9) bathroom 3.40 m2
10) bedroom 5 11.10 m2
11) bedroom 6 15.84 m2
.........................................................................................................................
TOTAL FLOOR AREA: 113.37 m2
Above the first floor is a high, partially furnished attic.
This area is not included in the description above.
There is a two-car garage behind the residential building.
A few years ago, a two-story commercial building was built on the same plot, with an area of 327.90 m².
The ground floor includes:
1) conference room 1 (114.20 m²)
2) conference room 2 (48.80 m²)
3) entrance hall (19.30 m²)
4) bathroom (8.80 m²)
The first floor includes:
1) conference room with kitchenette (117.00 m²)
2) staircase (9.80 m²)
The plot includes several parking spaces.
This property is ideal for:
1) a hostel
2) a staff hostel
3) residential and commercial use, or other projects.
I invite you to a viewing.