Jeśli marzysz o nowoczesnym domu w otoczeniu natury, który jednocześnie oferuje pełen komfort życia i szybki dostęp do stolicy – ta oferta jest dla Ciebie!
Na sprzedaż nowoczesny, dwukondygnacyjny dom typu bliźniak w stanie deweloperskim, z możliwością dostosowania wnętrza do własnych potrzeb w miejscowości Głosków pod Piasecznem przy ul. Pustułki. Lokalizacja, która zapewnia bliskość natury oraz doskonałe połączenie z Warszawą.
Nieruchomość położona jest na działce o powierzchni 900 m² w otulinie Chojnowskiego Parku Krajobrazowego.
Główne atuty nieruchomości:
Stan deweloperski – gotowy na Twoją wizję!
Dom w stanie deweloperskim daje Ci pełną swobodę aranżacji. Dzięki temu, że wszystkie niezbędne instalacje elektryczne, hydrauliczne, tynki i elewacja zostaną już wykonane, rozpocząć można prace wykończeniowe i dostosować wnętrze do własnych preferencji. Przy tej nieruchomości kupujący ma również wpływ na adaptację oraz ewentualne zmiany konstrukcyjne, co pozwala stworzyć idealny dom, spełniający wszelkie oczekiwania.
Kompleksowe media i ogrzewanie podłogowe
Dom będzie podłączony do wszystkich niezbędnych mediów – wody, prądu, gazu i kanalizacji, co oznacza, że od razu po zakupie można przystąpić do dalszych prac wykończeniowych. Dodatkowo, w wybranych strefach zaprojektowano ogrzewanie podłogowe, które zapewni komfort cieplny w chłodniejsze dni.
Przemyślany rozkład pomieszczeń dla komfortu Twojej rodziny
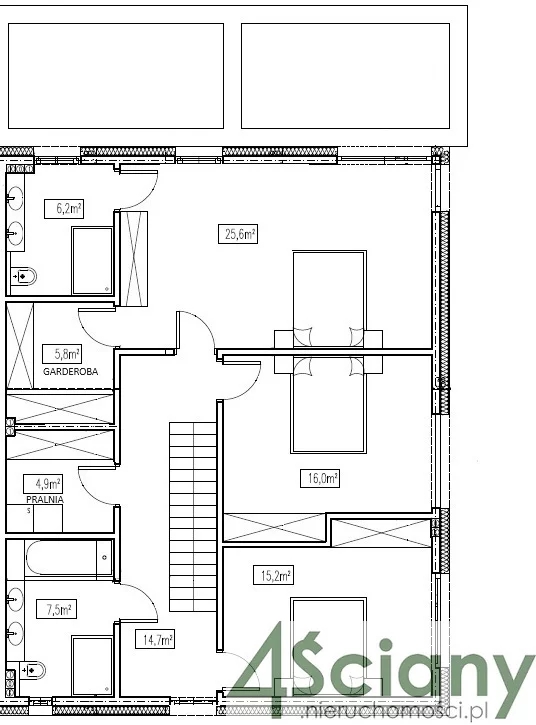
Na parterze znajduje się przestronna, otwarta strefa dzienna z dużym salonem i aneksem kuchennym, który sprzyja wspólnemu spędzaniu czasu z rodziną oraz wygodna toaleta. Piętro to strefa sypialniana z trzema niezależnymi pokojami – idealnymi na sypialnie, pokoje dziecięce czy gabinet. Dodatkowo znajdziesz tam sypialnię master z prywatną łazienką i garderobą. Na piętrze znajduje się także druga, ogólnodostępna łazienka z prysznicem oraz wanną – idealna dla całej rodziny.
Doskonała lokalizacja – blisko natury i z szybkim dojazdem do miasta
Nieruchomość położona jest w cichej okolicy, co gwarantuje spokój, kontakt z naturą i możliwość relaksu po dniu pracy. Jednocześnie dojazd do Warszawy zajmuje zaledwie 30 minut jazdy samochodem, dzięki czemu możesz cieszyć się bliskością dużego miasta bez rezygnacji z życia w otoczeniu zieleni. Działka znajduje się przy asfaltowej drodze, a w planach jest jej oświetlenie, co dodatkowo podniesie komfort codziennego życia.
Idealna okolica dla rodzin
W niedalekiej odległości od nieruchomości znajdziesz wszelkie udogodnienia potrzebne do codziennego życia: sklepy spożywcze, przedszkole, szkołę, a także punkty usługowe. Wszystko to sprawia, że dom w Głoskowie jest idealnym miejscem dla rodzin, które chcą mieszkać w spokojnej okolicy, ale mieć wszystko, co potrzebne, w zasięgu ręki.
Bliskość Chojnowskiego Parku Krajobrazowego
Dom otoczony jest zielenią i pięknymi krajobrazami, idealnymi na spacery, wycieczki rowerowe czy odpoczynek na świeżym powietrzu. Chojnowski Park Krajobrazowy, który znajduje się w pobliżu, to dodatkowy atut dla osób ceniących aktywny wypoczynek na łonie natury.
Dlaczego warto? To wyjątkowa oferta dla tych, którzy szukają miejsca do zamieszkania, które łączy w sobie wygodę, nowoczesność i bliskość natury. Gotowy stan deweloperski, podłączenie wszystkich mediów, możliwość adaptacji oraz szybki dojazd do Warszawy sprawiają, że ta nieruchomość jest idealna zarówno dla rodzin, jak i osób, które cenią sobie ciszę i spokój, nie rezygnując z miejskich wygód.
Zamieszczona oferta nie stanowi oferty w rozumieniu Kodeksu Cywilnego. licencja 4355;
Zapytaj naszego Agenta o pomoc w otrzymaniu kredytu !!!
Oferta wysłana z programu dla biur nieruchomości ASARI CRM (asaricrm.com)