
0% PROWIZJI!! Inwestycja od dewelopera, bez PCC 2%. Posiadamy również inne mieszkania w tej inwestycji Zapraszamy Państwa do zapoznania się z naszą ofertą Mieszkanie GOTOWE owacyjne osiedle usytuowane na pograniczu dzielnic Białołęka i Targówek, które oferuje swoim mieszkańcom wiele udogodnień w zak...
więcej »612 000 zł
Warszawa, Białołęka, Marywilska
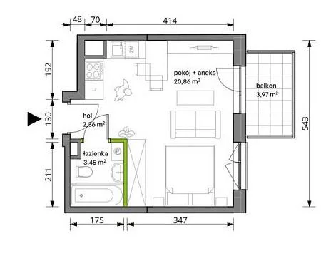
2 pok.
41,00 m²






























