Obecnie w sprzedaży. 10 typów.
1) Mieszkania jednopokojowe, 31,42–31,68 m². Pomieszczenia: salon z aneksem kuchennym i jadalnią, łazienka, korytarz wejściowy, balkon. Idealne dla singla lub jako pierwsze mieszkanie na start; sprawdzą się też w zakupie na wynajem. Przemyślany układ ułatwia aranżację, korytarz wejściowy pomaga utrzymać porządek, a balkon daje dodatkową przestrzeń do relaksu na świeżym powietrzu. Niewielka powierzchnia to niższe koszty utrzymania i szybkie sprzątanie.
Aktualnie w sprzedaży: 3 takie mieszkania. Sprawdź »
2) Mieszkania jednopokojowe, 32,59 m². Pomieszczenia: salon z aneksem kuchennym i jadalnią, aneks sypialny, łazienka, przedsionek. Doskonałe dla singla pracującego hybrydowo lub pary rozpoczynającej wspólne mieszkanie. Zaletą jest osobny aneks sypialny, bo pozwala wydzielić strefę nocną bez rezygnacji z otwartej przestrzeni dziennej; zapewnia więcej prywatności, łatwiejsze utrzymanie porządku oraz lepsze warunki do snu, gdy w salonie trwa praca lub spotkanie ze znajomymi. Przedsionek daje miejsce na obuwie i okrycia.
Aktualnie w sprzedaży: 1 takie mieszkanie. Sprawdź »
3) Mieszkania jednopokojowe, 32,87–33,69 m². Pomieszczenia: salon z aneksem kuchennym i jadalnią, aneks sypialny, łazienka, przedsionek, balkon. Idealne dla singla lub pary ceniącej kompaktowe, ale funkcjonalne mieszkanie. Osobny aneks sypialny to atut, bo umożliwia stworzenie spokojnej, intymnej strefy do odpoczynku i wprowadza naturalny podział funkcji w przestrzeni; łatwiej też odseparować łóżko wizualnie za pomocą regału czy zasłony. Balkon poszerza strefę dzienną o wygodne miejsce na kawę i rośliny.
Aktualnie w sprzedaży: 3 takie mieszkania. Sprawdź »
4) Mieszkania jednopokojowe, 34,18 m². Pomieszczenia: salon z aneksem kuchennym i jadalnią, aneks sypialny, łazienka, korytarz wejściowy, balkon. Dobre dla singla, który chce wyraźnie rozdzielić wypoczynek i pracę, oraz jako inwestycja pod wynajem premium. Atutem jest osobny aneks sypialny, bo pozwala utrzymać estetykę części dziennej, jednocześnie chroniąc strefę odpoczynku; to wygodniejsze poranki i wieczory oraz większy komfort podczas przyjmowania gości. Korytarz ułatwia organizację wejścia, a balkon daje przyjemną przestrzeń wypoczynkową na zewnątrz.
Aktualnie w sprzedaży: 1 takie mieszkanie. Sprawdź »
5) Mieszkania dwupokojowe, 38,99–44,71 m². Pomieszczenia: salon z aneksem kuchennym i jadalnią, sypialnia małżeńska, łazienka, korytarz wejściowy, balkon. Świetny wybór dla pary, młodej rodziny z niemowlęciem lub singla szukającego dodatkowego pokoju do pracy. Niezależna sypialnia małżeńska zapewnia prywatność, a ustawny salon sprzyja spotkaniom i relaksowi. Korytarz pomaga przechować odzież wierzchnią, balkon dopełnia komfort wypoczynku na świeżym powietrzu.
Aktualnie w sprzedaży: 14 takich mieszkań. Sprawdź »
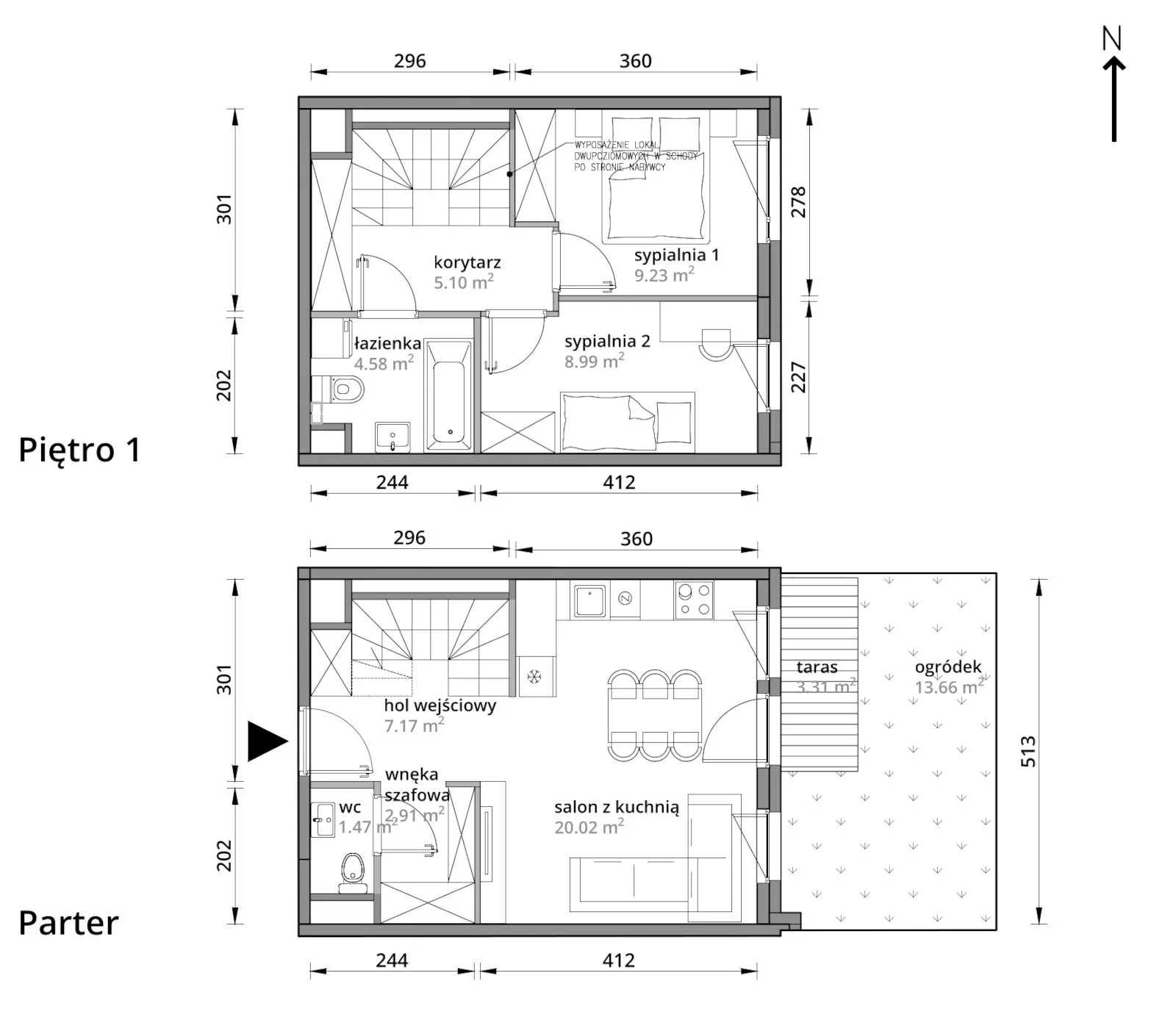
6) Mieszkania dwupokojowe, 39,74–44,66 m². Pomieszczenia: salon z aneksem kuchennym i jadalnią, sypialnia małżeńska, łazienka, korytarz wejściowy, ogródek, taras. Idealne dla osób lubiących kontakt z zielenią, właścicieli zwierząt i rodzin z małym dzieckiem. Ogródek oraz taras tworzą prywatną strefę na zewnątrz do posiłków, zabawy i odpoczynku. Wyraźny podział na strefę dzienną i sypialnię ułatwia codzienność, a korytarz wejściowy pozwala zachować ład przy drzwiach.
Aktualnie w sprzedaży: 6 takich mieszkań. Sprawdź »
7) Mieszkania dwupoziomowe, trzypokojowe, 59,58 m². Pomieszczenia: Strefa dzienna – salon z aneksem kuchennym i jadalnią, garderoba na odzież wierzchnią, WC, przedsionek; Strefa nocna – sypialnia małżeńska, sypialnia dla dziecka, łazienka, korytarz wewnętrzny. To propozycja dla rodziny 2+1 lub pary potrzebującej oddzielnego gabinetu. Zaletą jest osobne WC, które ułatwia poranne przygotowania i przyjmowanie gości bez zajmowania głównej łazienki; garderoba na odzież wierzchnią pozwala schować płaszcze, buty i wózek, utrzymując porządek w części dziennej. Podział na poziomy sprzyja prywatności i spokojowi w sypialniach.
Aktualnie w sprzedaży: 1 takie mieszkanie. Sprawdź »
8) Mieszkania czteropokojowe, 91,15–92,58 m². Pomieszczenia: salon z jadalnią, sypialnia małżeńska, sypialnia dla dziecka, sypialnia dla dziecka, aneks kuchenny, łazienka, WC, korytarz wejściowy, balkon. Stworzone dla rodziny z dwójką dzieci lub dla osób potrzebujących dwóch niezależnych gabinetów. Zaletą jest ilość sypialni dla dzieci – każde dziecko ma własną przestrzeń, co ogranicza konflikty i ułatwia naukę. Osobna kuchnia to korzyść, bo funkcjonalnie wydzielona strefa kuchenna (projektowana jak osobna) lepiej organizuje gotowanie i przechowywanie, a salon z jadalnią pozostaje reprezentacyjny. Osobne WC usprawnia poranki i sprawdza się, gdy przychodzą goście.
Aktualnie w sprzedaży: 2 takie mieszkania. Sprawdź »
9) Mieszkania czteropokojowe, 92,42 m². Pomieszczenia: salon z jadalnią, sypialnia małżeńska, sypialnia dla dziecka, sypialnia dla dziecka, aneks kuchenny, łazienka, prywatna łazienka, WC, korytarz wejściowy, balkon. Wymarzone dla rodziny, która ceni komfort i wygodę codziennej logistyki. Zaletą jest ilość sypialni dla dzieci, dzięki czemu każdy ma swój pokój. Osobne WC odciąża główne sanitariaty. Korzyścią jest także ilość łazienek (w tym prywatna łazienka), co minimalizuje kolejki w godzinach szczytu. Osobna kuchnia to plus, bo wyraźnie wydzielona strefa przygotowania posiłków pozwala utrzymać porządek w salonie. Dodatkowo prywatna łazienka przy sypialni małżeńskiej zapewnia intymność i wygodę wieczornych rytuałów.
Aktualnie w sprzedaży: 1 takie mieszkanie. Sprawdź »
10) Mieszkania czteropokojowe, 94,47 m². Pomieszczenia: salon z jadalnią, sypialnia małżeńska, sypialnia dla dziecka, sypialnia dla dziecka, aneks kuchenny, łazienka, prywatna łazienka, WC, korytarz wejściowy, ogródek, ogródek, taras. Przestrzeń dla rodziny, która chce mieszkać jak w domu z własną zielenią. Zaletą jest ilość sypialni dla dzieci – dwa niezależne pokoje wspierają naukę i odpoczynek. Osobne WC ułatwia organizację dnia. Atutem jest ilość łazienek (w tym prywatna łazienka), co zwiększa komfort poranny i wieczorny; prywatna łazienka daje maksimum wygody dorosłym. Ogromną wartością są dwa ogródki plus dodatkowo taras, które razem tworzą wielofunkcyjną strefę zewnętrzną do rekreacji, zabawy i spotkań. Osobna kuchnia to korzyść, bo wyraźnie wydzielona zabudowa kuchenna porządkuje gotowanie i przechowywanie.
Aktualnie w sprzedaży: 1 takie mieszkanie. Sprawdź »
Podsumowanie: Oferta obejmuje kompaktowe kawalerki, wygodne mieszkania dwupokojowe, rodzinne układy dwupoziomowe oraz przestronne cztery pokoje, w tym opcje z balkonami, ogródkami i tarasami. Każdy znajdzie metraż i funkcje dopasowane do etapu życia – od pierwszego własnego M, przez mieszkanie dla pary, po komfortową przestrzeń dla rodziny.