Na sprzedaż: Ośrodek Spokojnej Starości z prywatną plażą w malowniczych Gibach
Zapraszamy do zapoznania się z wyjątkową ofertą sprzedaży nieruchomości w stanie surowym otwartym, zlokalizowanej w malowniczej miejscowości Giby, w województwie podlaskim. Ta nieruchomość to doskonała inwestycja z potencjałem, idealna pod działalność związaną z opieką senioralną, agroturystyką czy usługami hotelarskimi.
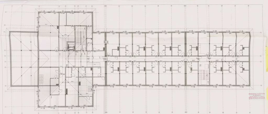
Opis nieruchomości:
Powierzchnia użytkowa budynku głównego: 2491 m²
Powierzchnia budynku garażowego: 114 m²
Łączna powierzchnia działek: 11 087 m²
Stan budynku: surowy otwarty (murowany, zadaszony, technologia mieszana)
Układ budynku i przeznaczenie:
Dwukondygnacyjny budynek wolnostojący z częściowym podpiwniczeniem zaprojektowano z myślą o komforcie mieszkańców. Projekt zakłada:
37 pokoi z łazienkami, które mogą pomieścić do 70 pensjonariuszy,
kuchnię i stołówkę,
gabinety lekarskie i pomieszczenia gospodarcze,
windę dla mieszkańców,
przestrzeń z potencjałem do adaptacji na dodatkowe funkcje, np. SPA, sale rekreacyjne lub rehabilitacyjne.
Teren i udogodnienia:
Dostęp do prywatnej plaży o powierzchni 10 arów (zaledwie 150 m od nieruchomości) oraz bliskość plaży publicznej (100 m),
Budynek garażowy i możliwość stworzenia licznych miejsc parkingowych,
Duża działka z potencjałem na altany, miejsca spacerowe czy ogrody terapeutyczne,
Dojazd drogą asfaltową, media: prąd, woda na działce, kanalizacja w drodze.
Lokalizacja:
Ośrodek znajduje się w sercu malowniczych terenów, w otoczeniu lasów, jezior i rzek. Giby to spokojna wieś o charakterze letniskowym, leżąca pomiędzy jeziorami Gieret i Pomorze, przez którą przepływają rzeki Czarna Hańcza i Marycha. To idealne miejsce zarówno na wypoczynek, jak i działalność zapewniającą ciszę, spokój i relaks.
Potencjał inwestycyjny:
Nieruchomość daje możliwość zmiany przeznaczenia i adaptacji na hotel, pensjonat, kompleks SPA czy centrum agroturystyczne. Obecnie teren oznaczony jest jako MNU/MRU (zabudowa mieszkaniowa i usługowa). Do końca listopada istnieje możliwość składania wniosków związanych z uwzględnieniem nowych propozycji w Miejscowym Planie Zagospodarowania Przestrzennego.
Cena i szczegóły oferty:
Nieruchomość z ogromnym potencjałem biznesowym w wyjątkowej lokalizacji.
Nie przegap tej okazji – skontaktuj się z nami już dziś!
Czy wiesz, że możemy przygotować dla Ciebie prezentację on-line nieruchomości? Skontaktuj się z naszym Agentem i zapytaj o szczegóły.
Pomimo, iż Doradcy Metrohouse przykładają szczególną staranność do rzetelnego prezentowania informacji o nieruchomości, nie zawsze jest możliwa weryfikacja wszystkich danych przekazanych od osób trzecich. Niniejsza prezentacja oferty nie jest ofertą w rozumieniu Kodeksu Cywilnego i ma charakter wyłącznie informacyjny.