Prezentowana oferta to kameralne osiedle nowoczesnych mieszkań, położonych w doskonałej lokalizacji w Wieliczce
Nowoczesna architektura, kameralność oraz komfort to tylko jedne z nielicznych atutów wyróżniających tę inwestycje. Budynki wykonane z wysokiej jakości materiałów budowlanych z dbałością o najmniejsze detale.
Całość inwestycji obejmuje :
16 mieszkań na parterze z ogródkami ok 60m2
16 mieszkań na piętrze z balkonami
Pełen stan deweloperski: wszystkie instalacje, tynki, wylewki, elewacja zewnętrzna , utwardzenia terenu, ogródki, ogrodzenie.
Położenie na granicy dwóch miast powoduje, iż jest to idealne miejsce dla osób pragnących ciszy i spokoju przy jednoczesnej bliskości centrum miasta. Jakość życia poprawi dopracowany w najmniejszych szczegółach projekt architektoniczny.
Doskonała komunikacja - bliskość Krakowa, obwodnicy miasta, drogi ekspresowej przechodzącej przez Wieliczkę. W pobliżu dużo terenów zielonych.
Zakończenie inwestycji: lipiec 2026
Zapraszam do kontaktu
Barbara Nazarewicz
tel: +48 515 634 552
mail:
Zapytaj o ofertę
::DODATKOWE INFORMACJE
Kategoria oferty: Mieszkania dla rodzin z dziećmi
Rodzaj budynku: szeregowiec
Widok: na osiedle
Gaz: jest
Woda: ciepła - piecyk gazowy
Ogrzewanie: C.O. GAZOWE
Winda: NIE
Rozkład: dwustronne
Opłaty wg liczników: woda, prąd, gaz
Rodzaj mieszkania: jednopoziomowe
Garaż: brak
Stan lokalu: deweloperski
Okna: PCV
Instalacje: nowe
Rok budowy: 2025
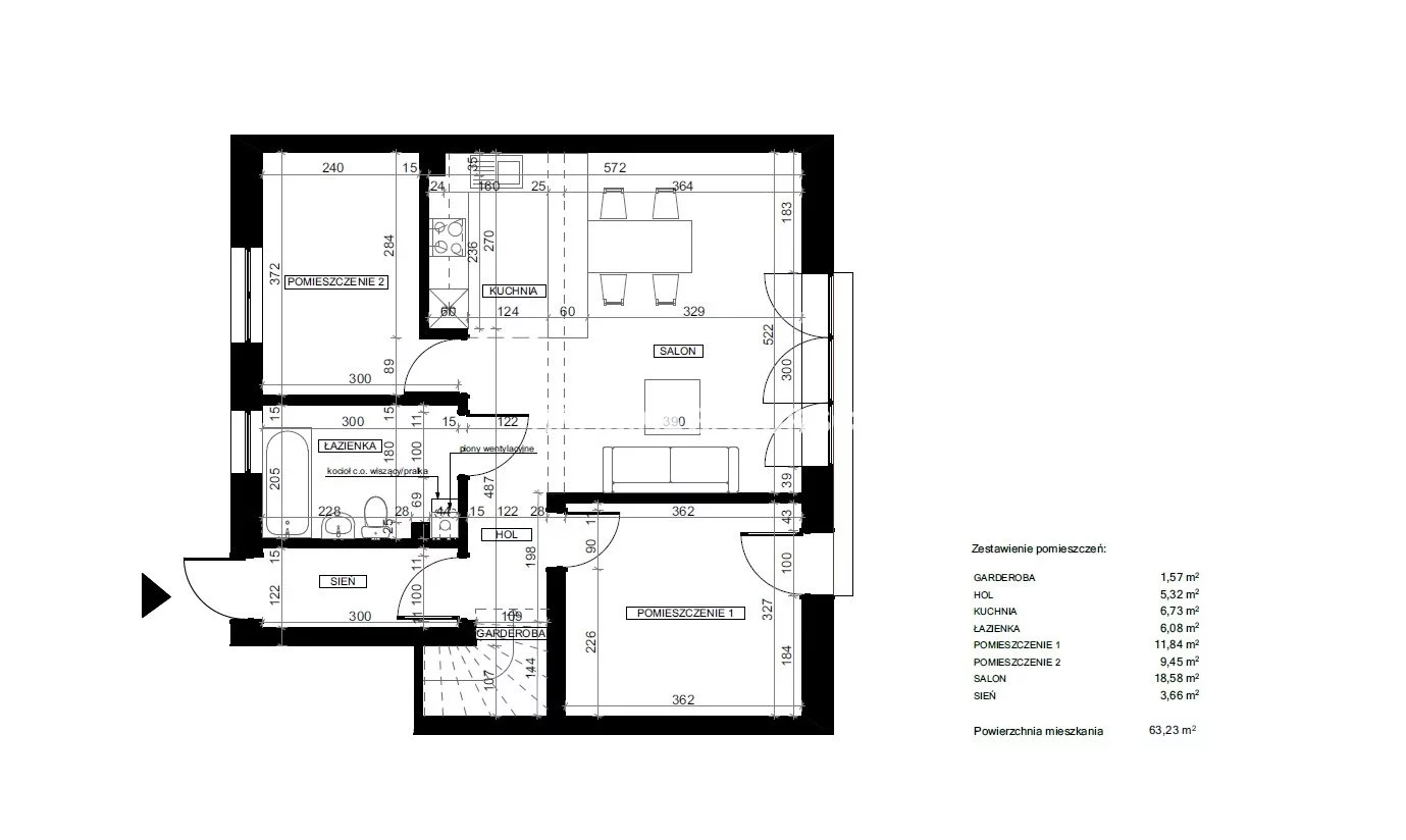
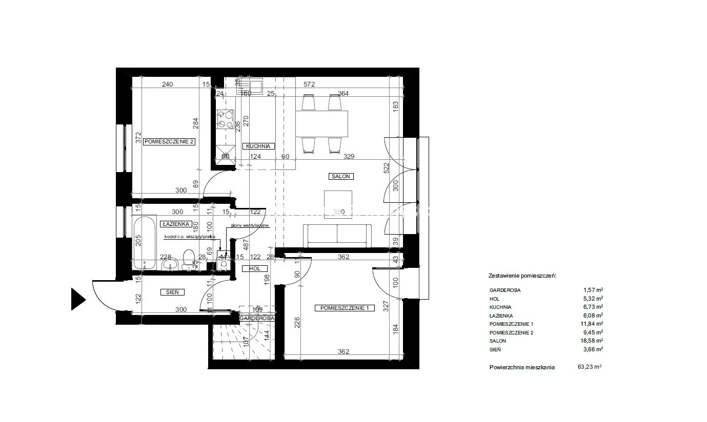
Liczba pokoi: 3
Liczba sypialni: 2
::LINK DO STRONY
https://sadurscy.pl/offer/BS2-MS-311479
::KONTAKT DO AGENTA
Barbara Nazarewicz
+48 515-634-552
Zapytaj o ofertę
::DANE BIURA
Oddział BS2, Rynek Pierwotny
Przewóz 47
30-081 Kraków
12 630-90-45
--------------------------
::GRATIS | Nasza prowizja zawiera: koszt przedwstępnej notarialnej umowy sprzedaży nieruchomości z rynku wtórnego.
::GWARANCJA | Gwarancja zwrotu zadatku. Więcej informacji na sadurscy.pl/zwrot-zadatku/
Oferta wysłana z systemu Galactica Virgo