Lokal znajduje się na trzecim piętrze budynku BEZ WINDY z 2010 roku. Całość zarządzana jest przez aktywną i zaangażowaną wspólnotę mieszkaniową, co przekłada się na bardzo dobry stan techniczny budynku oraz utrzymanie porządku w częściach wspólnych. Cicha i spokojna okolica !!!
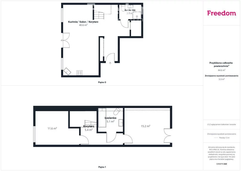
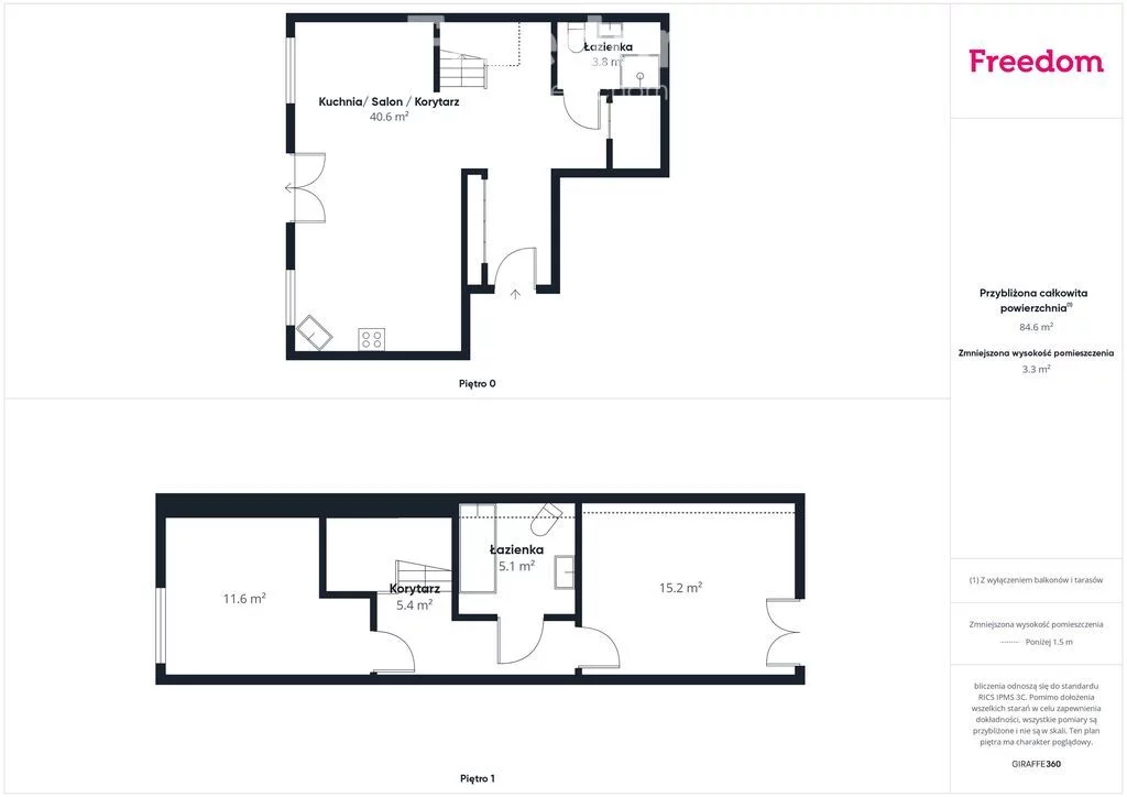
Powierzchnia mieszkania wynosi 81,16 m², dodatkowo do dyspozycji jest piwnica o powierzchni 1,80 m². Układ pomieszczeń obejmuje salon z aneksem kuchennym, dwie sypialnie, łazienkę oraz przedpokój.
Mieszkanie posiada miedzianą instalację elektryczną oraz okna wychodzące na dwie strony świata – północ i południe – co zapewnia dobre doświetlenie wnętrza przez cały dzień. Na podłogach położono panele oraz terakotę, a całość wykończona została w sposób funkcjonalny i estetyczny. Piękna, drewniana i starannie zaprojektowana kuchnia.
Ogrzewanie oraz ciepła woda pochodzą z miejskiej sieci, co zapewnia wygodę oraz przewidywalność kosztów. W mieszkaniu zamontowany jest domofon, a klatka schodowa jest zadbana i czysta.
Ogromnym atutem jest lokalizacja – spokojna, z bezproblemowym sąsiedztwem, a jednocześnie zaledwie kilka kroków od urokliwych uliczek Starego Miasta, restauracji, kawiarni i nabrzeża rzeki Elbląg.
To idealna propozycja zarówno dla rodzin, jak i par czy inwestorów poszukujących nieruchomości pod wynajem w atrakcyjnej części miasta.
Nie możesz pojawić się osobiście? Skorzystaj z wirtualnego spaceru i zwiedź dom bez wychodzenia z domu!
Nie zwlekaj i umów się już dziś na prezentację.
↓ Więcej podobnych i przedpremierowych ofert zawsze na moich Social Mediach !!! ↓
↓ Polub i poznaj je, oraz mnie bliżej ↓
Facebook: @Dominik Pawlak Nieruchomości
Instagram: @dominik.pawlak.nieruchomosci
Dominik Pawlak
Zapraszam również do rozmowy przy pysznej kawie w naszym biurze w Elblągu przy al. Grunwaldzkiej 31/2.
Przy zakupie należy uwzględnić koszty notarialne oraz wynagrodzenie biura nieruchomości w wysokości 2% brutto.
Chcesz kupić wymarzoną nieruchomość, ale nie masz oszczędności na wkład?
Mamy dla Ciebie rozwiązanie!
Nasi eksperci finansowi pomogą Tobie w uzyskaniu kredytu hipotecznego na zakup nieruchomości BEZ WYMAGANEGO WKŁADU WŁASNEGO!
Nie czekaj, zgłoś się do nas – wymarzona nieruchomość jest w Twoim zasięgu
"Właścicielem ogłoszenia wraz z jego elementami jest Freedom Nieruchomości Sp. z o.o. lub podmioty współpracujące. Wszelkie prawa zastrzeżone. Kopiowanie, rozpowszechnianie oraz korzystanie z niniejszych materiałów w jakikolwiek inny sposób wykraczający poza dozwolony użytek określony przepisami ustawy z 4 lutego 1994 r. o prawie autorskim i prawach pokrewnych (Dz. U. 1994, nr 24 poz. 83 z późn. zm.) bez pisemnej zgody Freedom Nieruchomości Sp. z o.o. lub podmiotów współpracujących jest zabronione i może stanowić podstawę odpowiedzialności cywilnej oraz karnej.
Ponadto niniejsze materiały stanowią tajemnicę przedsiębiorstwa Freedom Nieruchomości Sp. z o.o. lub podmiotów współpracujących w rozumieniu ustawy z dnia 16 kwietnia 1993 r. o zwalczaniu nieuczciwej konkurencji (Dz. U. z 2003 r., Nr 153, poz. 1503 z późn. zm.). Niniejsze ogłoszenie nie stanowi oferty w rozumieniu Kodeksu Cywilnego, lecz ma charakter informacyjny."
Oferta wysłana z programu dla biur nieruchomości ASARI CRM (asaricrm.com)