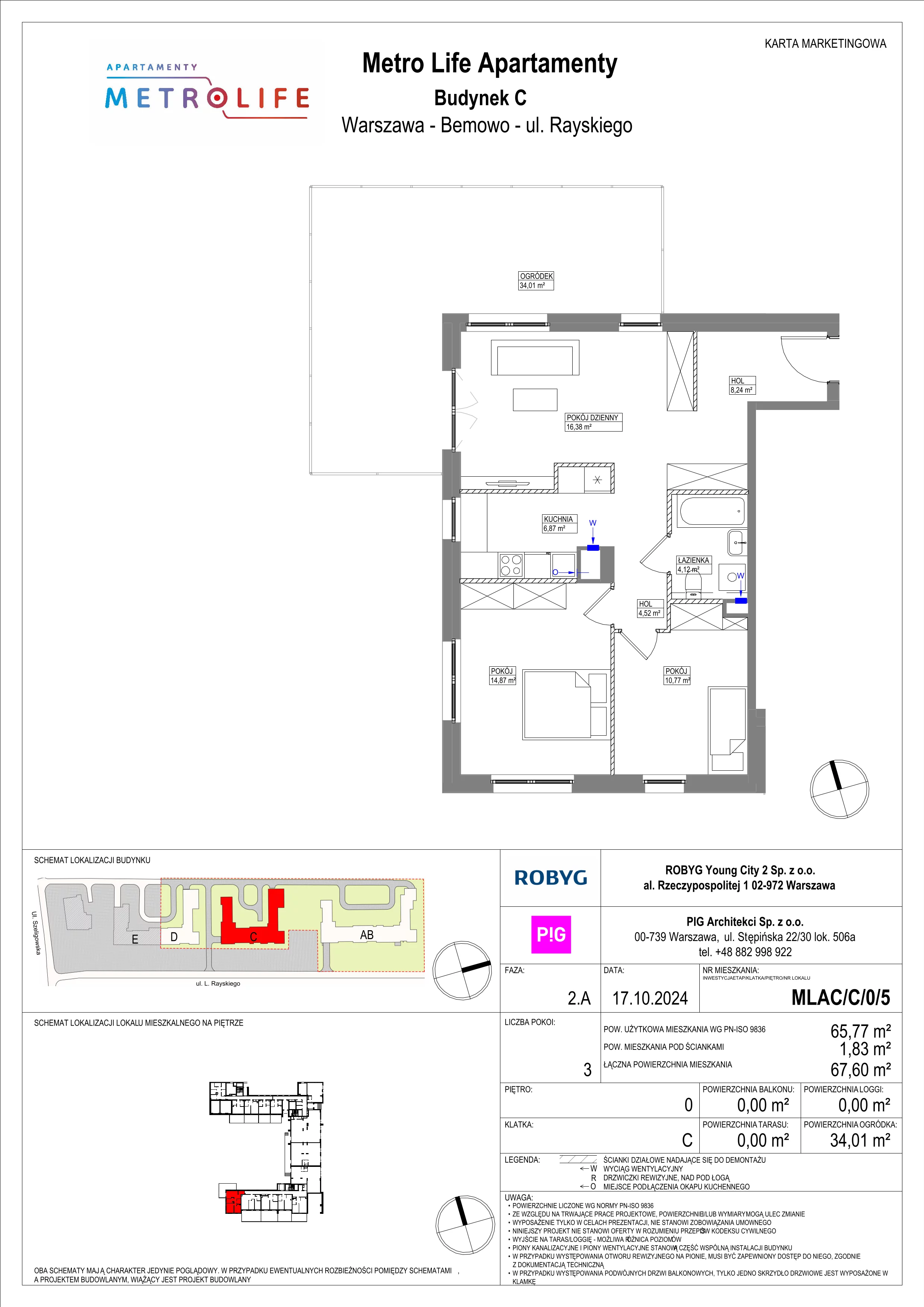
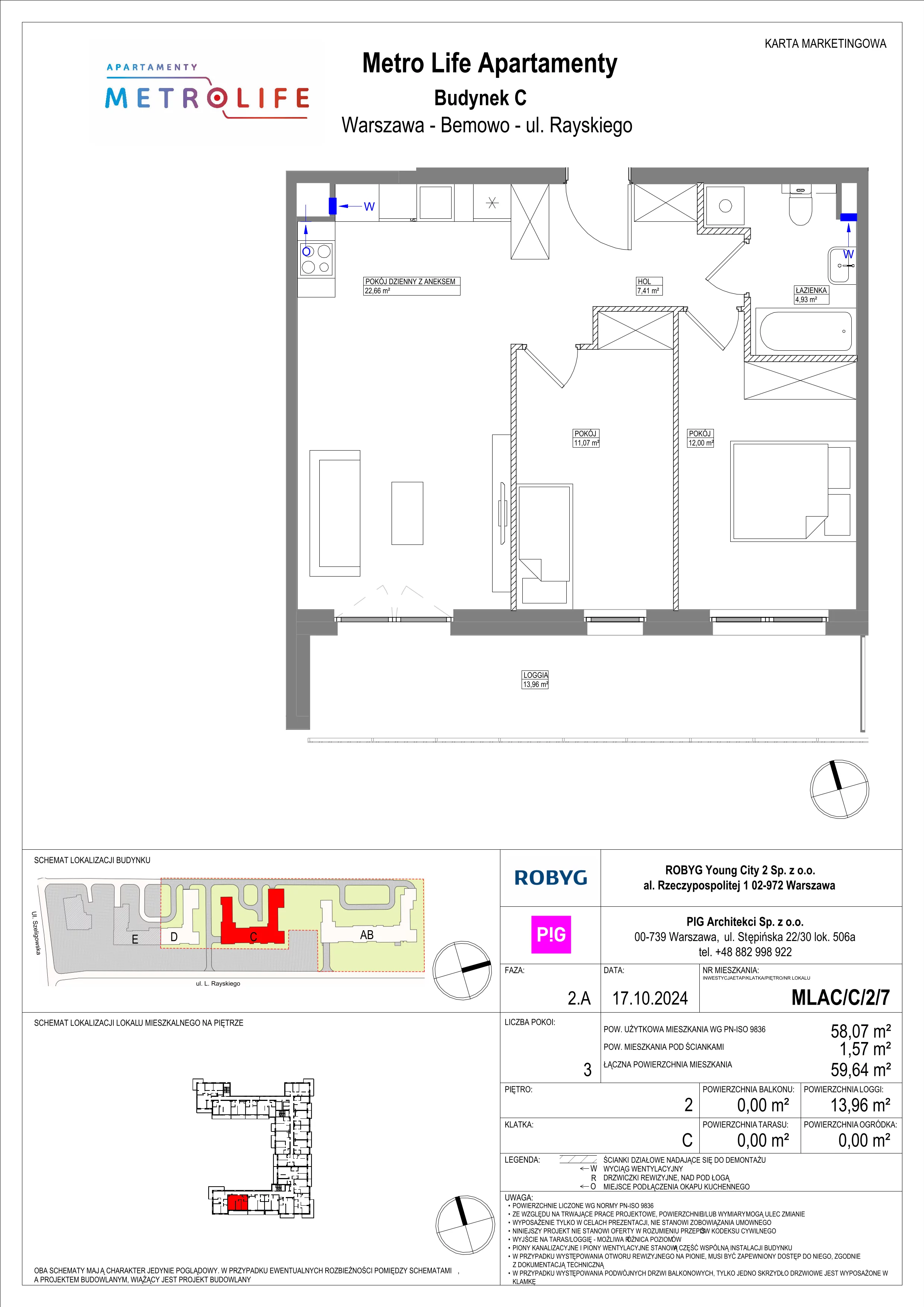
Funkcjonalne trzypokojowe mieszkanie z ogródkiem. To trzypokojowe mieszkanie na parterze o powierzchni 50,91 m² obejmuje: korytarz wejściowy, salon z aneksem kuchennym, sypialnię małżeńską, sypialnię dla dziecka, łazienkę i ogród.
Kluczowe zalety układu pomieszczeń:
-
Efektywnie wykorzystana powierzchnia - W niewielkiej powierzchni mieszkania udało się pomieścić trzy pokoje, co znacząco wpływa na koszty zakupu i utrzymania. Mniejsze mieszkanie pozwala na oszczędność, a jednocześnie zapewnia prywatność każdemu z domowników.
-
Salon z aneksem kuchennym 17,16 m² - Łączenie funkcji wypoczynku i przygotowywania posiłków w jednym pomieszczeniu to praktyczne rozwiązanie. Dzięki temu mieszkańcy mogą cieszyć się przestrzenią do wspólnego spędzania czasu bez potrzeby przemieszczania między oddzielnymi pokojami. To także oszczędza miejsce.
-
Duża sypialnia małżeńska 12,19 m² - Dzięki odpowiedniej powierzchni zapewnia komfort zarówno podczas odpoczynku, jak i codziennego użytkowania. Taka przestrzeń pozwala na ustawienie wygodnego łóżka oraz niezbędnych mebli, co jest kluczowe dla komfortu pary.
-
Wyjście z salonu na ogródek 32,68 m² - Dostęp do ogródka bezpośrednio z salonu to niezwykle korzystne rozwiązanie, które umożliwia cieszenie się zewnętrzną przestrzenią w każdej chwili. To dodatkowe miejsce na relaks na świeżym powietrzu.
-
Bliskie sąsiedztwo łazienki przy sypialni małżeńskiej - Bliskość łazienki do sypialni małżeńskiej zwiększa wygodę codziennego użytkowania. Utrzymywanie łazienki w pobliżu głównej sypialni zwiększa komfort, zwłaszcza przy porannych przygotowaniach.
-
Bliskie sąsiedztwo sypialni małżeńskiej i sypialni dla dziecka - Położenie sypialni dla dziecka blisko sypialni małżeńskiej zapewnia poczucie bezpieczeństwa oraz ułatwia opiekę nad dzieckiem. Dzięki temu rodzice mogą szybko zareagować, jeśli dziecko potrzebuje pomocy.
-
Szerokie przejście pomiędzy salonem a korytarzem - Otwarta i szeroka przestrzeń między salonem z aneksem a korytarzem umożliwia swobodne przemieszczanie się i zwiększa dostępność obu pomieszczeń, a także poprawia ich komunikację.
Szczegółowy opis mieszkania. Rozpoczynając od korytarza wejściowego, który ma powierzchnię 7,61 m², mamy bezpośredni dostęp do wszystkich głównych pomieszczeń mieszkania. Korytarz wyposażony jest w pojemną szafę, co ułatwia organizację. Następnie przechodzimy do salonu z aneksem kuchennym o powierzchni 17,16 m². Pomimo swoich kompaktowych rozmiarów, to pomieszczenie efektywnie łączy funkcje dwóch oddzielnych stref: relaksacyjnej oraz kulinarnej. W części salonowej znajduje się stolik kawowy i sofa dwuosobowa, które zapewniają miejsce do odpoczynku. Część kuchenna jest w pełni wyposażona, co pozwala na komfortowe przygotowywanie posiłków. Z salonu możemy wyjść bezpośrednio na przestronny ogród o powierzchni 32,68 m², idealnie nadający się do relaksu.
Kontynuując, sypialnia małżeńska o przestrzeni 12,19 m², oferuje komfortowy sen dzięki dużemu dwuosobowemu łóżku i praktycznej szafie. Bliskość sypialni do łazienki (o powierzchni 4,55 m²) dodaje komfortu codziennej rutynie. Łazienka wyposażona jest w wannę, toaletę, umywalkę oraz pralkę, co zapewnia pełną funkcjonalność. Tuż obok sypialni rodziców znajduje się sypialnia dla dziecka o powierzchni 9,40 m², która może być również używana jako biuro lub pokój gościnny. W pokoju tym zmieści się łóżko jednoosobowe i szafa, co tworzy przytulne i praktyczne miejsce.
To trzypokojowe mieszkanie jest doskonałe dla pary z jednym dzieckiem, zapewniając wszystkie niezbędne przestrzenie życiowe w efektywnym układzie. Może także być idealne dla osób pracujących zdalnie, które potrzebują dodatkowego pokoju na biuro, dzięki elastycznemu wykorzystaniu niewielkiej sypialni.