Atrakcyjne mieszkanie 3 pok. WA-WA Marymont
OK. 58 m2 za 848 tyś. zł
PRZEPROWADZONO GRUNTOWNY REMONT
Oferujemy do sprzedaży wygodne mieszkanie M4 po remoncie przy Lesie Bielańskim i parku Kępa Potocka. W pobliżu; szkoły, przedszkola, sklepy i usługi. Dobrze skomunikowane, przystanek 50m, bliskość Wisłostrady i ścieżki rowerowe. Miejsce postojowe na parkingu przez blokiem. Opłat dodatkowych brak.
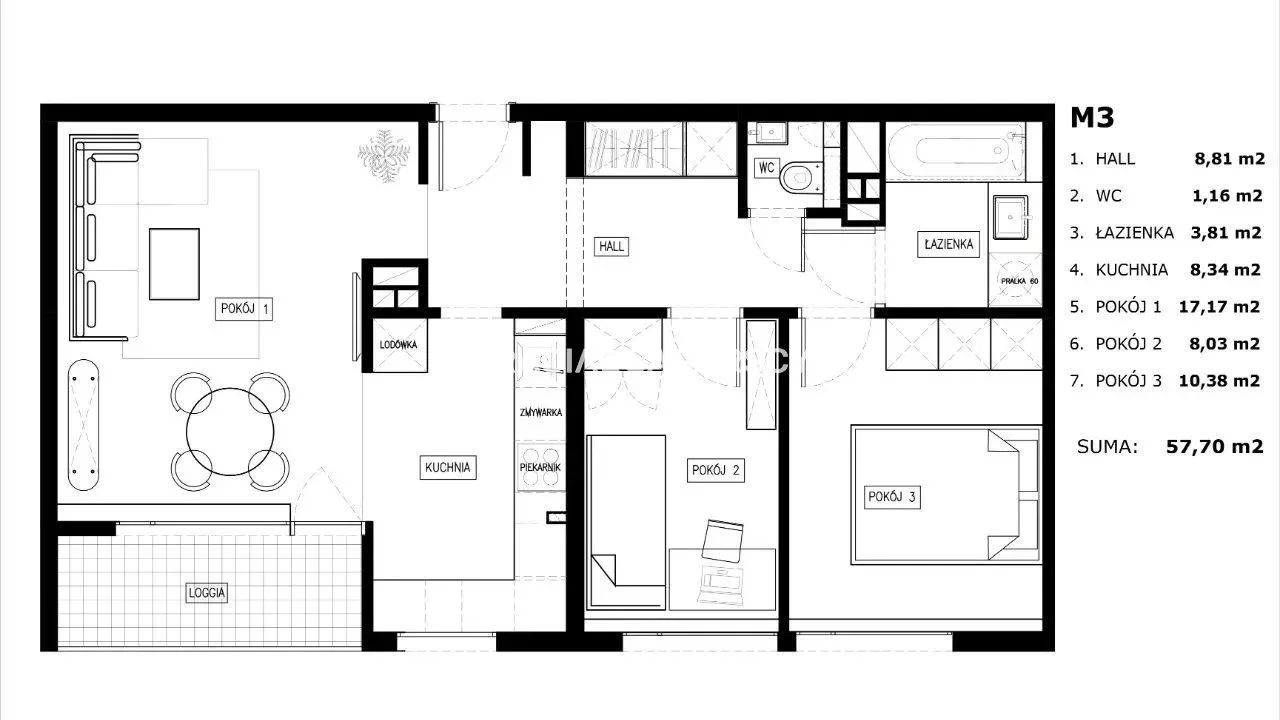
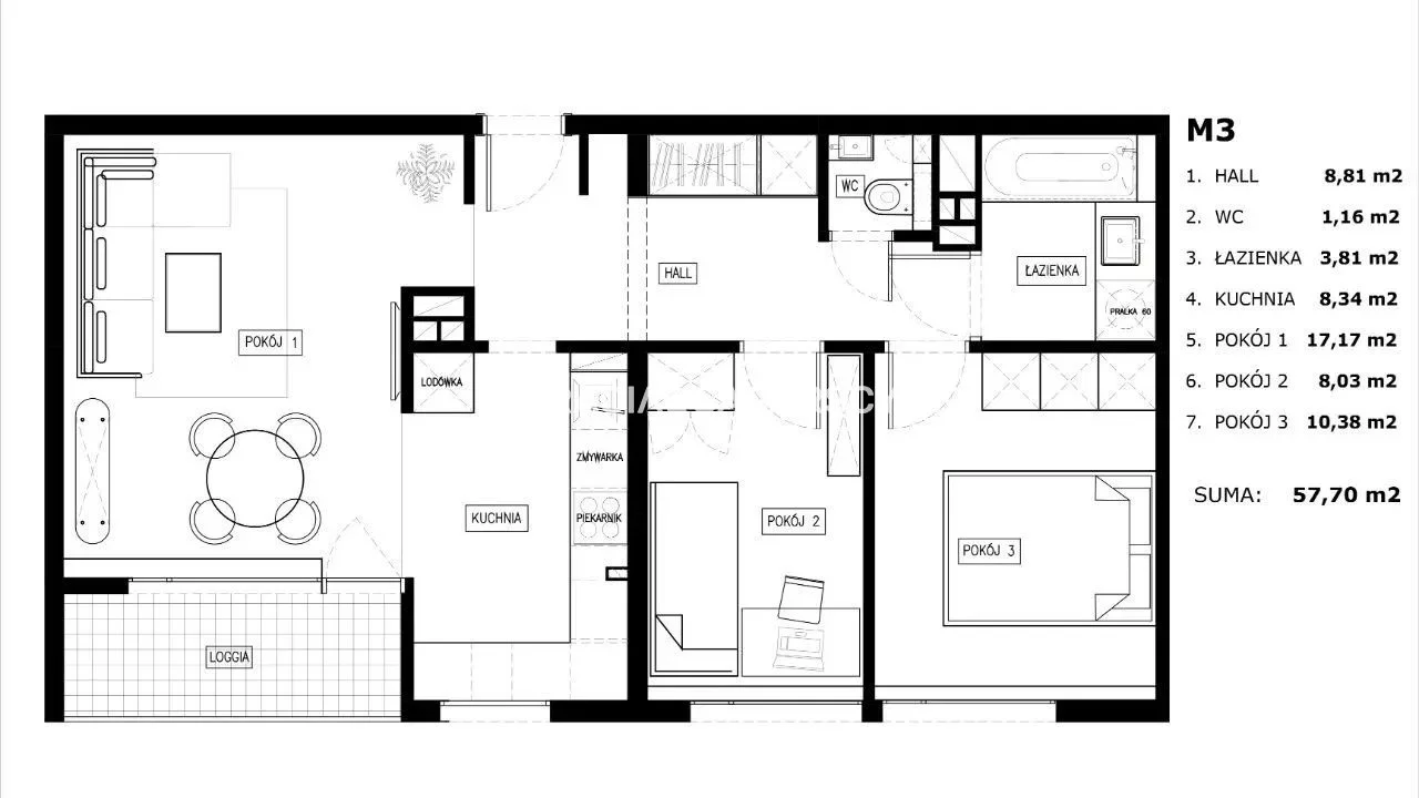
Mieszkanie składa się z; przedpokoju, salonu, widnej kuchni, 2 sypialni, łazienki, wc i loggii przeszklonej.
1. HALL 8,81 m2
2. WC 1,16 m2
3. ŁAZIENKA 3,81 m2
4. KUCHNIA 8,34 m2
5. POKÓJ 1 17,17 m2
6. POKÓJ 2 8,03 m2
7. POKÓJ 3 10,38 m2
SUMA: 57,70 m2
W mieszkaniu podczas generalnego remontu wymienione, wod.-kan., elektrykę, wentylacje. Odnowiono ściany i posadzki, okna PCV z żaluzjami.
Mieszkalnie idealne dla rodziny lub na wyjem z możliwością wydzielania dodatkowej 3 sypialni z pokoju dziennego.
Uwaga: Projekt kuchni w cenie mieszkania.
* Zdjęcia należą do właściciela
Polecam!
Marek Popiela
tel; +48 518 967 677
mail;
Zapytaj o ofertę
::DODATKOWE INFORMACJE
Kategoria oferty: Mieszkania dla rodzin z dziećmi
Rodzaj budynku: budynek wielorodzinny
Parking strzeżony (odległość w metrach) [m]: 100
Głośność: ciche
Widok: park/skwer
Gaz: brak
Woda: ciepła - miejska
Dojazd: asfalt
Otoczenie: las
Ogrzewanie: centralne
Linie telefoniczne: TAK
Telewizja kablowa: TAK
Komunikacja publ.: MZK, miejska, metro
Winda: TAK
Liczba wind: 2
Rozkład: jednostronne
Usytuowanie: jednostronne
Drzwi antywłamaniowe: TAK
Opłaty w czynszu: wywóz nieczystości, woda ciepła, woda, Winda, sprzątanie, ogrzewanie, fundusz remontowy, CO, administracja
Rodzaj mieszkania: jednopoziomowe
Garaż: brak
Piwnica [m2]: 4
Piwnica: TAK
Stan lokalu: bardzo dobry
Okna: PCV
Instalacje: częściowo wymienione
Balkon: loggia
Liczba balkonów: 1
Powierzchnia balkonów/tarasów [m2]: 5
Powierzchnia użytkowa [m2]: 58
Rok budowy: 1988
Liczba pokoi: 3
Wysokość pomieszczeń [m]: 2,6000
Liczba sypialni: 2
Powierzchnia pokoi [m2]: 17x10x8
Podłogi pokoi: drewniana
Ściany pokoi: gładzie gipsowe
Wystawa okien - pokoje : Pd-Wsch
Typ kuchni: aneks kuchenny - połączony z salonem
Rodzaj kuchni: aneks kuchenny
Powierzchnia kuchni [m2]: 8,3
Podłoga kuchni: gres
Wystawa okien - kuchnia: Pd-Wsch
Typ łazienki: bez wc
Liczba łazienek: 1
Powierzchnia łazienki [m2]: 3,8
Glazura łazienki: glazura
Podłoga łazienki: gres
Wyposażenie łazienki: wanna, umywalka, lustro
Liczba WC: 1
Powierzchnia WC: 1,1
Glazura WC: glazura
Podłoga WC: gres
Ściany WC: glazura
Liczba przedpokoi: 1
Powierzchnia przedpokoi [m2]: 8.8
Podłoga przedpokoi: kamień
Ściany przedpokoi: gładzie gipsowe
::LINK DO STRONY
https://sadurscy.pl/offer/BS2-MS-306136
::KONTAKT DO AGENTA
Marek Popiela
+48 518-967-677
Zapytaj o ofertę
::DANE BIURA
Oddział BS2, Rynek Pierwotny
Przewóz 47
30-081 Kraków
12 630-90-45
--------------------------
::GRATIS | Nasza prowizja zawiera: koszt przedwstępnej notarialnej umowy sprzedaży nieruchomości z rynku wtórnego.
::GWARANCJA | Gwarancja zwrotu zadatku. Więcej informacji na sadurscy.pl/zwrot-zadatku/