3-POKOJOWE MIESZKANIE IDEALNE DLA RODZINY, SZCZEPIN
Bez prowizji i podatku PCC
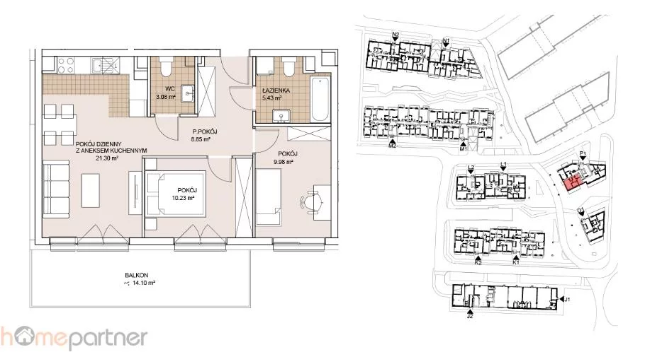
Na sprzedaż 3-pokojowe mieszkanie o powierzchni 58,87 m2 znajdujące się na parterze inwestycji deweloperskiej, zlokalizowanej przy ul. Gnieźnieńskiej (Stare Miasto, Szczepin).
Mieszkanie gotowe do odbioru
INWESTYCJA
Osiedle ma charakter spokojnej przystani - nieopodal centrum miasta a jednak otoczonej terenami zieleni. Inwestycja ma przypominać zacumowane w porcie statki a kaskadowa kompozycja nadać osiedlu dynamiczności. Elewacja jest jasna, nowoczesna, przełamana dużymi przeszkleniami, dzięki którym każde mieszkanie jest dobrze doświetlone.
Mieszkanie składa się z:
- salonu z aneksem kuchennym 21,30 m2
- pokoju 10,23 m2
- pokoju 9,96 m2
- łazienki 5,43 m2
- toalety 3,08 m2
- przedpokoju 8,85 m2
Do mieszkania przynależy duży balkon o powierzchni 14,10 m2
Ekspozycja południowo-zachodnia
LOKALIZACJA
Osiedle powstaje tuż przy Odrze, na Starym Mieście. Wzdłuż rzeki rozciągać się będą tereny spacerowe, nieopodal Górka Szczepińska oraz pobliskie parki: Popowicki i Zachodni. W niedalekiej odległości zlokalizowane jest Centrum Handlowe Magnolia Park, Biedronka oraz liczne ośrodki biznesowe i biurowe, a także Hala Orbita oraz plaża miejska HotSpot Beach Bar.
Inwestycja jest dobrze skomunikowana z resztą miasta, do centrum prowadzą liczne linie autobusowe oraz nowopowstała linia tramwajowa. Mieszkańcy mogą korzystać również z przystanku PKP Szczepin, zlokalizowanego tuż przy inwestycji, z którego dojechać można w 10 minut na Dworzec Główny, 3 minuty na dworzec Nadodrze i 10 minut na dworzec Psie Pole.
KOMUNIKACJA
- 400 m przystanek autobusowy
- 400 m przystanek tramwajowy
- 2,7 km do CH Magnolia Park
- 30 minut spacerem do Rynku
Istnieje możliwość dokupienia miejsca postojowego w garażu podziemnym oraz komórki lokatorskiej
W ofercie również inne powierzchnie mieszkań
Zapraszam do kontaktu / For more information please call us
+48 889 759 863
Feel free to contact us, talk and see the apartment. For more information please call us +48 889 759 863.
Por favor contáctenos para conocer más sobre la oferta y ver el apartamento. Podemos ayudar con todos los trámites. Para más información por favor llámanos +48 889 759 863.
Treść niniejszego ogłoszenia nie stanowi oferty handlowej w rozumieniu Kodeksu Cywilnego.
Oferta wysłana z programu IMO dla biur nieruchomości