ZDJĘCIA W OFERCIE NALEŻĄ DO WŁAŚCICIELA OFERTY
Zamieszkaj na Ruczaju - nowoczesny styl, wygoda i spokój w jednym miejscu
To mieszkanie pokochasz od pierwszego wejrzenia.
Nowe budownictwo z 2024 roku, jasne wnętrza, wysoki standard wykończenia i balkon, na którym poranna kawa smakuje lepiej niż gdziekolwiek indziej
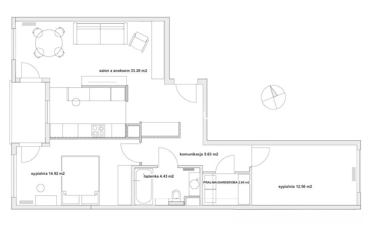
Na 73,6 m² znajdziesz wszystko, czego potrzebujesz:
- przestronny salon z aneksem kuchennym - w pełni wyposażony,
- dwie komfortowe sypialnie,
- elegancką łazienkę z wanną,
- funkcjonalny przedpokój z zabudową,
- oraz balkon - idealny na chwilę oddechu.
Mieszkanie w pełni zaprojektowane, wykończone i wyposażone w sprzęt AGD, w całym mieszkaniu oświetlenie ledowe dopasowane do wysokości lokalu oraz meble zaprojektowane i przygotowane na wymiar!
Zamontowana jest również klimatyzacja!
Mieszkanie zostało zaprojektowane z myślą o wygodzie i estetyce.
Nie wymaga żadnych nakładów, po prostu wprowadzasz się i mieszkasz.
Doskonała lokalizacja - Ruczaj, ul. Piltza.
Blisko UJ, Business Park Bunscha, Motorola, Shell, sklepy, centrum handlowe, fitness kluby i tereny spacerowe.
Tramwaj spacerkiem 5 min, autobus spacerkiem 2 min - wszędzie masz blisko.
-idealne rozwiązanie dla pary, rodziny lub inwestora
-miejsce parkingowe w garażu podziemnym: 60 000 zł
-zakup bez PCC - oszczędzasz kilka tysięcy złotych!
Zadzwoń i przekonaj się, że tu naprawdę można poczuć się jak w domu.
Cena mieszkania zł 1 360 000 zł
+miejsce parkingowe 6 0 000 zł
(bez podatk u PCC)
Zapraszam na prezentacje!
Kontakt. Piotr Dziadzio
+48 515 234 864
::DODATKOWE INFORMACJE
Rodzaj budynku: blok
Dozór budynku: możliwy
Głośność: ciche
Widok: na inne budynki
Gaz: brak
Woda: jest
Dojazd: asfalt
Otoczenie: działki zabudowane
Ogrzewanie: C.O. miejskie
Linie telefoniczne: TAK
Internet: TAK
Komunikacja publ.: tramwaj, autobus
Winda: TAK
Liczba wind: 1
Rozkład: dwustronne rozkładowe
Usytuowanie: dwustronne
Opłaty w czynszu: wywóz śmieci, woda, Winda, fundusz remontowy, CO, administracja
Opłaty wg liczników: woda, prąd, CO
Rodzaj mieszkania: jednopoziomowe
Garaż: miejsce parkingowe
Stan lokalu: bardzo dobry
Okna: PCV
Instalacje: nowe
Balkon: jest
Liczba balkonów: 1
Rok budowy: 2024
Liczba pokoi: 3
Liczba sypialni: 2
Podłogi pokoi: drewniana, gres
Typ kuchni: aneks kuchenny - połączony z salonem
Rodzaj kuchni: umeblowana i wyposażona
Podłoga kuchni: gres
Typ łazienki: razem z wc
Liczba łazienek: 1
Podłoga łazienki: gres
Wyposażenie łazienki: WC, wanna, umywalka
Liczba przedpokoi: 1
Podłoga przedpokoi: drewniana
::LINK DO STRONY
https://sadurscy.pl/offer/BS1-MS-312116
::KONTAKT DO AGENTA
Piotr Dziadzio
+48 515-234-864
Zapytaj o ofertę
::DANE BIURA
Oddział BS1, Kapelanka
Kapelanka 1A/1
30-347 Kraków
12 429-25-12
Pośrednik odpowiedzialny zawodowo za wykonanie umowy pośrednictwa: Dariusz Sadurski (licencja nr: 803)