Na sprzedaż 5-pokojowe mieszkanie, zlokalizowane przy ul. Rumiankowej w Warszawie, dzielnica Wesoła.
Mieszkanie znajduje się w budynku z cegły, wybudowanym w roku 2002 roku. Jest dwupoziomowe, usytuowane na drugim piętrze oraz poddaszu.
W budynku nie ma windy.
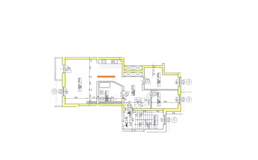
Na powierzchnię 148,3 m2 składają się:
POZIOM
- przedsionek z miejscem na ubrania wierzchnie i buty,
- hall,
- łazienka z wanną oraz bidetem,
- piec gazowy,
- pokój 1,
- pokój 2,
- przestronny salon z wyjściem na balkon oraz półotwarta kuchnia.
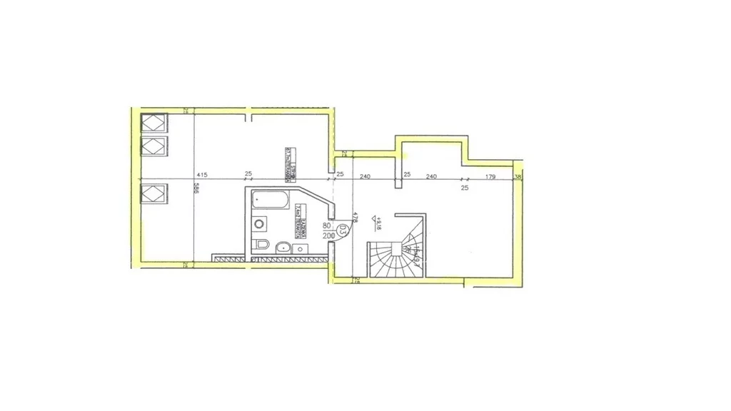
PODDASZE:
- drewniane(bukowe) schody,
- sypialnia,
- pokój,
- duża łazienka z prysznicem,
- przedpokój.
Garaż na poziomie -1.
Na podłodze znajdują się panele oraz terakota. Okna PCV oraz drewniane skierowane na: północ i południowy wschód.
Czynsz wraz z zaliczkami oraz miejscem postojowym wynosi ok. 800 zł. Ogrzewanie gazowe własne, woda z wodociągu.
Odrębna własność z księgą wieczystą bez obciążeń.
W pobliżu liczne sklepy, punkty usługowe, 5 minut spacerem do Mazowieckiego Parku Krajobrazowego, komunikacji miejskiej.
Serdecznie zapraszam na prezentację mieszkania.
"Właścicielem ogłoszenia wraz z jego elementami jest Freedom Nieruchomości Sp. z o.o. lub podmioty współpracujące. Wszelkie prawa zastrzeżone. Kopiowanie, rozpowszechnianie oraz korzystanie z niniejszych materiałów w jakikolwiek inny sposób wykraczający poza dozwolony użytek określony przepisami ustawy z 4 lutego 1994 r. o prawie autorskim i prawach pokrewnych (Dz. U. 1994, nr 24 poz. 83 z późn. zm.) bez pisemnej zgody Freedom Nieruchomości Sp. z o.o. lub podmiotów współpracujących jest zabronione i może stanowić podstawę odpowiedzialności cywilnej oraz karnej.
Ponadto niniejsze materiały stanowią tajemnicę przedsiębiorstwa Freedom Nieruchomości Sp. z o.o. lub podmiotów współpracujących w rozumieniu ustawy z dnia 16 kwietnia 1993 r. o zwalczaniu nieuczciwej konkurencji (Dz. U. z 2003 r., Nr 153, poz. 1503 z późn. zm.). Niniejsze ogłoszenie nie stanowi oferty w rozumieniu Kodeksu Cywilnego, lecz ma charakter informacyjny."
Oferta wysłana z programu dla biur nieruchomości ASARI CRM (asaricrm.com)