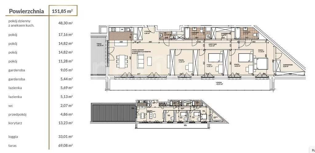
Piękny, słoneczny apartament / penthouse o pow. 151, 85m2 z loggią, ciągnącą się przez całą długość lokalu, o pow. 33,01m2 i tarasem do indywidualnego korzystania o pow. 69,08m2.
Wychodząc z przedpokoju mamy widok na ogromny, główny salon z aneksem kuchennym o łącznej powierzchni 48,30m2, z którego jest wyjście zarówno na taras w całości wyłożony deską tarasową oraz dwa wyjścia na loggię. Salon od strony południowej jest w całości przeszklony (okna tarasowe na całej szerokości ściany).
Przy salonie jest WC i w tym miejscu rozpoczyna się strefa prywatna, składająca się z 3 pokoi, łazienki, garderoby oraz dużej sypialni typu master bedroom (z osobną łazienką i garderobą dla właścicieli).
Ze wszystkich pomieszczeń strefy prywatnej są indywidualne wyjścia na loggię.
Ekspozycja wszystkich pokoi jest na stronę południową, co gwarantuje piękne doświetlenie całego apartamentu przez większą część dnia.
UWAGA! Deweloper oferuje bardzo korzystne pakiety wykończeniowe wnętrz oraz szereg zniżek u swoich partnerów. Zapytaj o więcej szczegółów.
- tylko 2,6 km od wrocławskiego Rynku
- mieszkania i apartamenty – 1 do 5 pokoi
- alejki spacerowe, strefy relaksu z oczkami wodnymi skąpane w bujnej zieleni
- blisko do punktów gastronomicznych, spożywczych, medycznych czy placówek szkolno-przedszkolnych
- bliskość terenów biegnących wzdłuż rzeki Odry
- doskonałe połączenia komunikacyjne MPK i PKP
Nowoczesne osiedle Lokum Porto powstaje tuż przy Odrze, na Starym Mieście – idealnej lokalizacji, łączącej szybkie tempo miasta ze spokojnym sąsiedztwem przyrody.
Eleganckie budynki z jasnymi elewacjami i dużymi przeszkleniami. Powstają w nich mieszkania i apartamenty o zróżnicowanych układach i metrażach, od kawalerek po 5-pokojowe lokale. Przynależą do nich balkony, loggie lub przestronne tarasy.
Teren osiedla wypełnia bujna zieleń, ścieżki spacerowe, oczka wodne i miejsca do relaksu, a dla dzieci – pełne różnych atrakcji, kolorowe place zabaw. Do dyspozycji mieszkańców są parkingi podziemne i naziemne, stanowiska do ładowania samochodów elektrycznych, liczne stojaki na rowery oraz komórki lokatorskie.
Doskonała lokalizacja osiedla przy ul. Długiej i Gnieźnieńskiej zapewnia dostęp do bogatej oferty kulturalnej i rozrywkowej Wrocławia. W zasięgu ręki są miejsca koncertów, targów czy imprez sportowych, plaża miejska oraz liczne sklepy i restauracje. W pobliżu znajdują się także ośrodki biznesowe oraz placówki medyczne i edukacyjne (m.in. Uniwersytet Wrocławski). Odpoczynek wśród przyrody umożliwiają pobliskie parki oraz tereny spacerowe nad Odrą. Mieszkańcy Lokum Porto mogą korzystać z komunikacji publicznej – tramwajowej, autobusowej i kolejowej, co ułatwia znajdujący się w pobliżu przystanek ze zintegrowanym węzłem przesiadkowym. Dla osób przemieszczających się własnymi środkami transportu duże znaczenie ma też szybki dojazd do ul. Legnickiej – jednej z głównych arterii miasta.
Chcesz dowiedzieć się więcej? Zadzwoń!
Nasze biuro NIE pobiera wynagrodzenia od strony Kupującej przy współpracy na tej inwestycji oraz pomaga w uzyskaniu korzystniejszych warunków zakupu u Dewelopera!
Zapraszam na bezpłatną prezentację.
Informuję, że dla celów bezpieczeństwa stron transakcji, przed każdą prezentacją wymagam zawarcia umowy pośrednictwa i okazania dokumentu tożsamości.
Chcesz kupić tę nieruchomość, brakuje Ci środków, a masz na sprzedaż swoje mieszkanie, dom, działkę lub lokal?
Chętnie Ci w tym pomogę!
O szczegóły zapytaj mnie podczas rozmowy!
W swojej ofercie posiadam również inne oferty zarówno z rynku pierwotnego i wtórnego, lokale i grunty.
Chętnie pomogę Ci znaleźć to, co w pełni będzie odpowiadało Twoim oczekiwaniom.
Nie zwlekaj, zadzwoń, umów się - wspólnie znajdziemy Twoje wymarzone mieszkanie, dom, a może działkę...
Magdalena Najdek
690 300 656
Zapytaj o ofertę
Współpraca z NEXUS360 to również:
- bezpłatna pomoc Doradcy przy uzyskaniu najkorzystniejszego kredytu hipotecznego,
- preferencyjne stawki opłat i dogodne terminy u Notariusza,
- pełne bezpieczeństwo kupna i sprzedaży na podstawie polisy OC PZU,
- bezpłatna pomoc Doradcy w pozyskaniu najlepszego ubezpieczenia nieruchomości,
- kompleksowe wsparcie agenta podczas całego procesu transakcji.
Świadectwo charakterystyki energetycznej - zapotrzebowanie na energię:
EU - użytkową (kWh/m2*rok): 49.46; EK - końcową (kWh/m2*rok): 67.87; EP - nieodnawialną energię pierwotną (kWh/m2*rok): 57.38; EC02 - Wielkość emisji CO2 (t C02/m2*rok): 0.03; UOZE - Udział odnawialnych źródeł energii w zapotrzebowaniu na energię końcową [%]: 0.00;
Nota prawna: Informacje dotyczące opisu nieruchomości podane są przez właściciela, mają charakter wyłącznie informacyjny i mogą podlegać aktualizacji. Oferta dotycząca nieruchomości stanowi zaproszenie do rokowań zgodnie z art. 71 Kodeksu Cywilnego i nie stanowi oferty określonej w art. 66 i następnych KC.
Oferta wysłana z programu dla biur nieruchomości ASARI CRM (asaricrm.com)