Kawalerka o powierzchni 31,39 m2 usytuowana na 2 piętrze w wysokim bloku zlokalizowana na warszawskim Ursusie przy ulicy 1 Sierpnia.
z oddzielną widną kuchnią przy ulicy 1 Sierpnia.
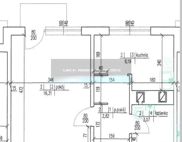
Na powierzchnię mieszkania składa się:
Pokój – 16,31 m2
Kuchnia – 9,19 m2
Łazienka – 3,07 m2
Korytarz – 2,82 m2
Dodatkowo balkon oraz piwnica.
Świetna lokalizacja i stan mieszkania sprawia, że jest to także bardzo dobra oferta dla inwestora, który może wynająć mieszkanie od razu po zakupie.
Mieszkanie jest także bardzo dobrze wyposażone (szafa w zabudowie w przedpokoju, szafa czterodrzwiowa z przesuwanymi drzwiami w pokoju, meble w zabudowie wraz ze sprzętem AGD w kuchni, nowa pralka w łazience).
Ekspozycja okien i balkonu na wschód. Sąsiedni blok jest w dużym oddaleniu dzięki czemu mieszkanie jest widne i ma widok na skwer.
Pod blokiem parking ogólnodostępny.
Blok jest prężnie zarządzany przez Wspólnotę Mieszkaniową (klatka schodowa oraz elewacja budynku wyremontowane, piony wymienione, w planach modernizacja windy).
W sąsiedztwie bloku znajduje się dużo zieleni oraz wszelka infrastruktura niezbędna na co dzień. Do najważniejszych punktów można dostać się bardzo szybko piechotą.
W okolicy znajdują się:
Carrefour Express – 2 min pieszo
Żabka – 2 min pieszo
przychodnia publiczna – 7 min pieszo
LuxMed – 7 min pieszo
przedszkole – 6 min pieszo
szkoła podstawowa – 6 min pieszo
plac zabaw – na osiedlu
siłownia plenerowa – na osiedlu
park im. Marka Kotańskiego – 8 min pieszo
kościół – 5 min pieszo
przystanek autobusowy – 2 min pieszo
stacja kolejowa Warszawa Żwirki i Wigury – 8 min pieszo
przystanek tramwajowy - 13 min pieszo lub 2 przystanki autobusem
Do centrum można dojechać komunikacją miejską w około 20 minut, dobre połączenie także z innymi dzielnicami dzięki bliskości przystanków oraz stacji kolejki miejskiej Warszawa Żwirki i Wigury. W niedalekiej odległości od bloku kładka łącząca Włochy z Ochotą.
Mieszkanie jest dostępne od ręki.
W każdy dzień tygodnia dyżur w biurze w godzinach 8:30 - 21:00. W razie jakichkolwiek pytań proszę dzwonić 795 327 829, wysłać SMS lub wysłać zapytanie na adres e-mail:
Zapytaj o ofertę
, oddzwonimy.
Treść ogłoszenia nie stanowi oferty w rozumieniu Kodeksu Cywilnego
Oferta wysłana z programu dla biur nieruchomości ASARI CRM (asaricrm.com)