Mieszkanie 2-pokojowe na start lub pod inwestycjęKluczowe zalety: Niepowtarzalny widok: Dzięki wysokiemu usytuowaniu mieszkanie oferuje zapierającą dech w piersiach panoramę na dzielnicę i tereny zielone
Czysta karta: Mieszkanie wymaga remontu, co daje Ci nieograniczone możliwości - zaprojektuj je od podstaw zgodnie z własnym gustem i potrzebami.
Doskonała lokalizacja: Ulica Rozewska to spokojna, a jednocześnie dobrze skomunikowana okolica. Wszystko, czego potrzebujesz, jest w zasięgu ręki: komunikacja miejska, bliskość obwodnicy trójmiejskiej, SKM, sklepy, usługi, szkoły i przedszkola oraz wszystko czego potrzebujesz do wygodnego życia
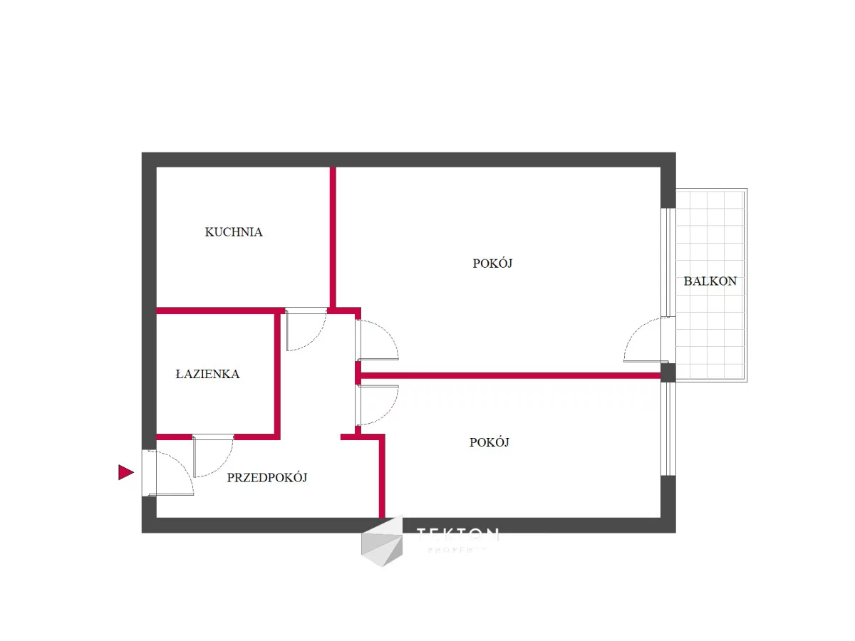
Balkon:Dodatkowa przestrzeń do wypoczynku i podziwiania widoków.
Układ mieszkania: - Jasny, słoneczny salon z balkonem i widokiem o pow ok. 15m2
- ustawna sypialnia o pow. ok.9 m2
- kuchnia z możliwością otwarcia na salon - o pow. ok 5m2
- łazienka do aranżacji o pow. ok 4m2
- przestronny przedpokój
Dodatkowe atuty:- nowe okna PCV
- piwnica
- niskie koszty utrzymania - wiosn/lato - 350 zł, jesień/zima - 550 zł
- budynek z windą, zadbana klatka schodowa, parking przy bloku
- zielona okolica, bliskość terenów rekreacyjnych i lasu
Dla kogo? Doskonała przestrzeń na start, dla inwestorów planujących wynajem długoterminowy (atrakcyjny widok przyciągnie najemców) lub odsprzedaż z zyskiem po wykonaniu remontu.
TEKTON PROPERTY TO NAJLEPSZE BIURO NIERUCHOMOŚCI W POLSCE WG KONKURSU LIDER NIERUCHOMOŚCI OTODOM 2020.
Znajdź nas w swoim mieście: Gdańsk, ul. Chmielna 10
- Warszawa, Plac Dąbrowskiego 1/311
- Wrocław, ul. Kasztanowa 3A/118
- Kraków, ul. Józefitów 7/4 -
Poznań, ul. Wojskowa 6/D6 -
Łódź, ul. Zachodnia 70 pok. 223.
Podejmując współpracę z przedstawicielami Tekton Property zyskujesz:- oszczędność czasu
- weryfikację dokumentów od strony formalno-prawnej
- wsparcie agenta na każdym etapie transakcji
- pomoc przy uzyskaniu kredytu hipotecznego w kilkunastu bankach
- wgląd do umów przed zawarciem aktu notarialnego u sprawdzonych Notariuszy
- własne analizy makroekonomiczne i raporty z prowadzonych działań
- dostęp do cen transakcyjnych z okolicy
Skontaktuj się z opiekunem oferty, a on poprowadzi Cię przez wszystkie etapy transakcji.
Zapraszamy do współpracy!
Niniejsze ogłoszenie nie stanowi oferty handlowej w rozumieniu przepisów art. 66 k.c., a przedstawione dane mają charakter informacyjny.