Oferta dodana za pomocą ADDOM
Na sprzedaż jasne, w pełni wyposażone mieszkanie w kamienicy w ścisłym centrum Krakowa.
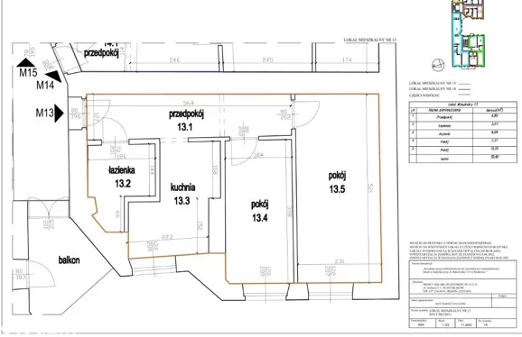
Nieruchomość o powierzchni 36 m², położona na pierwszym piętrze zadbanej kamienicy, to doskonała propozycja zarówno dla osób szukających mieszkania do zamieszkania od zaraz, jak i dla inwestorów.
Mieszkanie jest po generalnym remoncie, utrzymane w bardzo dobrym stanie technicznym i prawnym – posiada pełną własność z księgą wieczystą, aktualne opinie techniczne (kominiarskie, gazowe, SANEPID) oraz zostało wyposażone we wszystkie niezbędne udogodnienia.
Układ i wyposażenie
Dwa ustawne pokoje – jasne, z dużymi oknami i wysokimi sufitami, co daje poczucie przestrzeni
Oddzielna kuchnia – w pełni umeblowana i wyposażona w sprzęty AGD (lodówka, kuchenka, piekarnik), z miejscem jadalnianym
Łazienka z prysznicem – wykończona w dobrym standardzie, z pralką
Przedpokój z miejscem do przechowywania
Do mieszkania przynależy również komórka lokatorska o powierzchni ok. 2 m².
Standard i media
Po generalnym remoncie kilka lat temu
Nowe okna, wychodzące na podwórze – cisza mimo centralnej lokalizacji
Ogrzewanie i ciepła woda z pieca gazowego dwufunkcyjnego
Niski czynsz – ok. 350 zł miesięcznie
Odnowiona klatka schodowa
Lokalizacja Nieruchomość znajduje się w jednej z najbardziej pożądanych lokalizacji Krakowa – w ścisłym centrum, w otoczeniu sklepów, kawiarni, restauracji oraz pełnej infrastruktury miejskiej. W zasięgu krótkiego spaceru znajdują się m.in.
Przystanki tramwajowe i autobusowe – ok. 150 m
Uniwersytet Ekonomiczny – ok. 500 m
Dworzec Główny i Galeria Krakowska – ok. 1 km
Rynek Główny – ok. 1,4 km
Politechnika Krakowska, Uniwersytet Jagielloński oraz inne uczelnie w niedalekiej odległości
Mieszkanie dostępne od zaraz !!!
Oferta idealna zarówno dla osób prywatnych, jak i inwestorów – świetnie sprawdzi się pod wynajem krótko - lub długoterminowy.
Zapraszam do kontaktu w celu uzyskania szczegółowych informacji oraz umówienia prezentacji.
Telefon: 535363537