Dwa pokoje na Mokotowie położone przy parku im. Stanisława Dygata,
dwie minuty spacerem od centrum handlowego Sadyba.
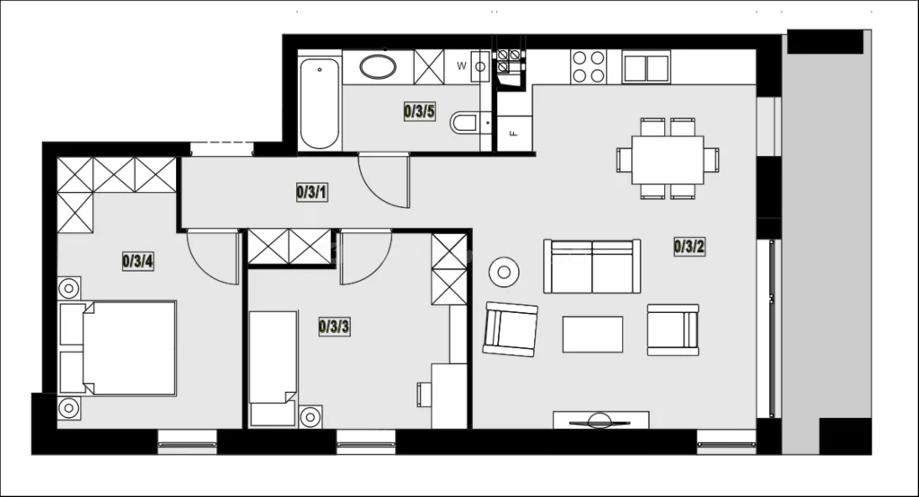
2-pokojowe mieszkanie na 2 piętrze w budynku wielorodzinnym z 1980 roku
Pochylnia przeznaczona dla osób niepełnosprawnych
Wyjście z budynku bezpośrednio do parku im. Stanisława Dygata
Jeziorko i plaża czerniakowska (5 minut rowerem)
Przystanek autobusowy (4 minut spacerem)
Linia tramwajowa na Wilanów (10 minut spacerem)
CH Sadyba (2 minuty spacerem)
CX Liceum Ogólnokształcące im. Roberta Szumana (2 minuty spacerem)
Budynek przeszedł wszystkie remonty. Został ocieplony, otynkowany, zainstalowano nowe windy, balkony, zadbane drzwi wejściowe do klatki schodowej. Do mieszkania przynależy piwnica oraz funkcjonalna Piwnica. Ekspozycja okiem wschodnia.
Stan prawny: spółdzielcze własnościowe prawo do lokalu. Grunty pod budynkiem uregulowane. Możliwość założenia księgi wieczystej i wzięcia kredytu na zakup.
Mieszkanie przeszło niedawno generalny remont polegający na:
- nowej instalacji elektrycznej
- nowych gładzi gipsowych na ścianach
- nowych drzwiach i oknach
- nowych drzwiach wejściowych
- nowej desce dębowej na podłodze w pokojach
- odnowiona łazienka i nowa wanną
- odnowiona kuchnia bez mebli
Czy wiesz, że możemy przygotować dla Ciebie prezentację on-line nieruchomości? Skontaktuj się z naszym Agentem i zapytaj o szczegóły.
Pomimo, iż Doradcy Metrohouse przykładają szczególną staranność do rzetelnego prezentowania informacji o nieruchomości, nie zawsze jest możliwa weryfikacja wszystkich danych przekazanych od osób trzecich. Niniejsza prezentacja oferty nie jest ofertą w rozumieniu Kodeksu Cywilnego i ma charakter wyłącznie informacyjny.