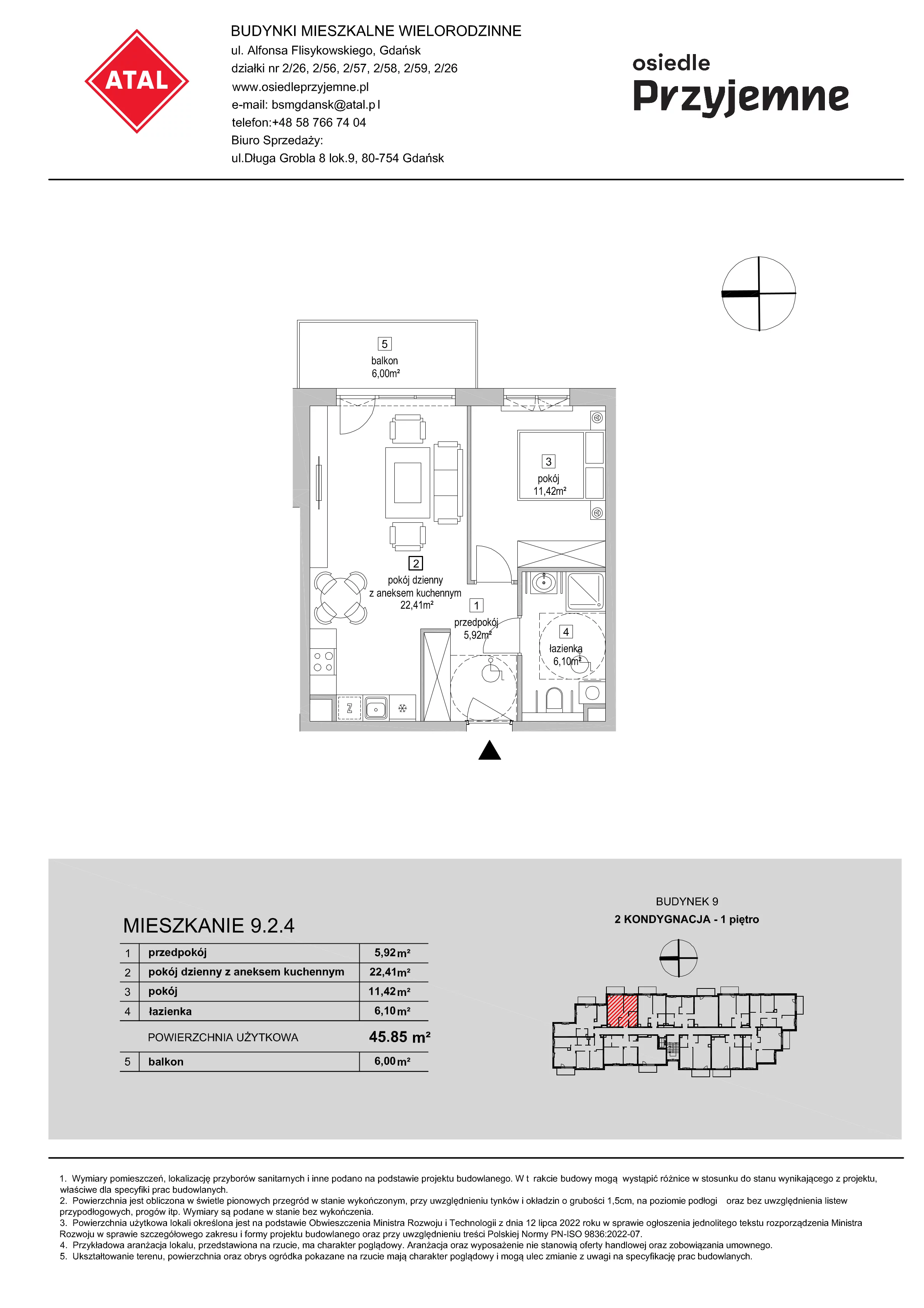
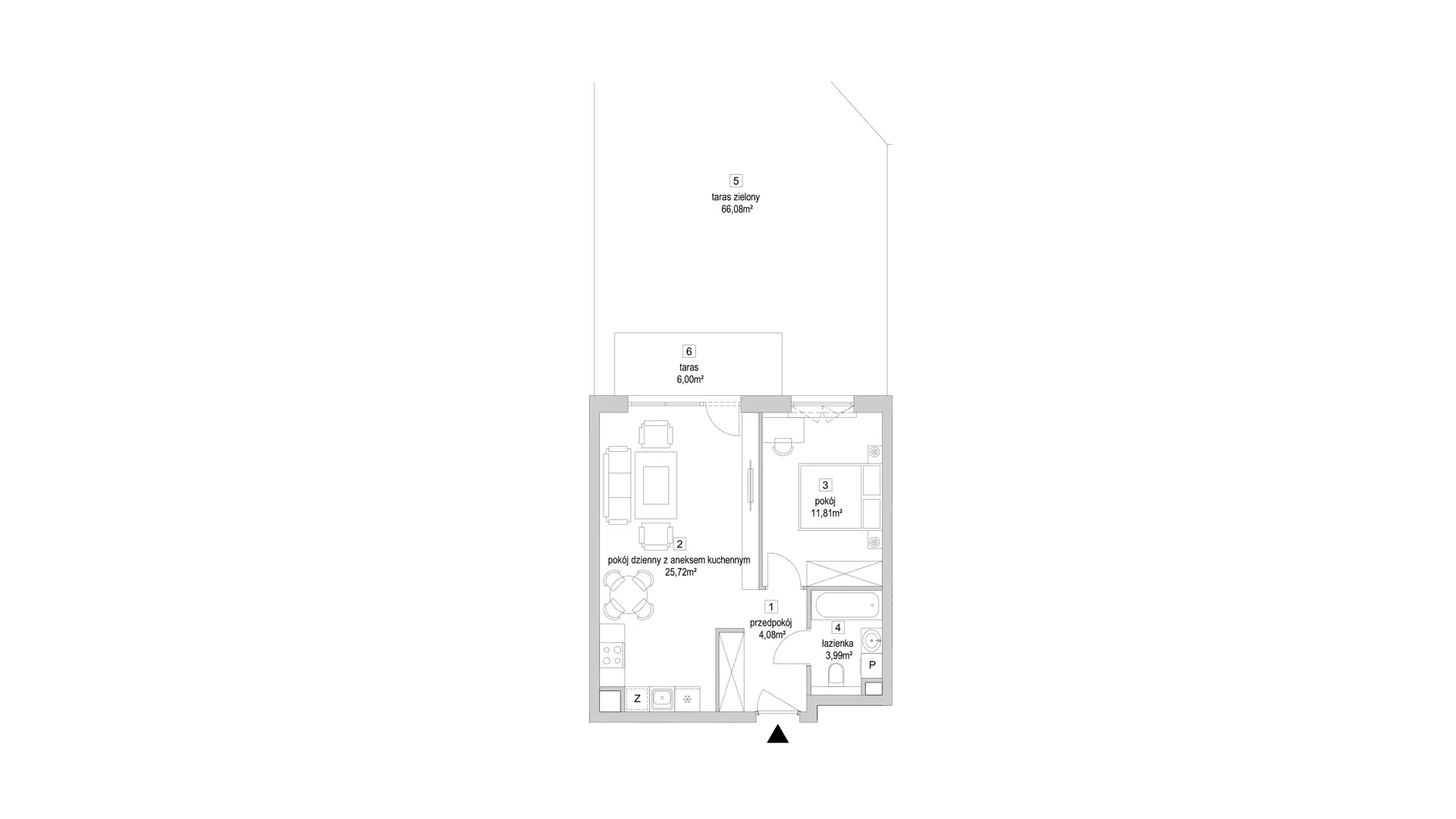
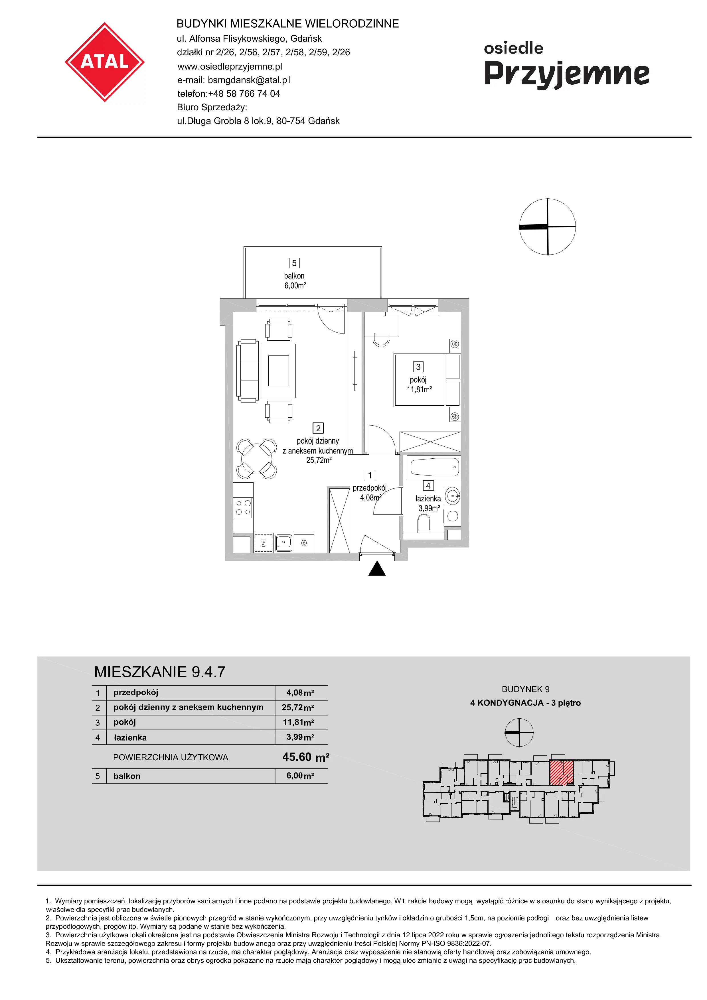
Nowe mieszkanie, 44,10 m², 2 pokoje, 1 piętro, oferta nr 7.2.4
493 110,00 zł
11 181,63 zł/m²
Monitoring cen
Inwestycja Osiedle Przyjemne - etap IV
Gdańsk, Jasień, ul. Flisykowskiego






Liczba pokoi:
2 pokoje
Powierzchnia:
44,10 m²
Piętro:
1 piętro
Garaż:
parking naziemny, parking podziemny
Powierzchnie dodatkowe:
komórka lokatorska
Powierzchnie zewnętrzne:
balkon (6,00 m²)
Termin oddania:
IV kwartał 2026