MIESZKANIE IDEALNE DLA PARY LUB NA WYNAJEM
Bez prowizji i podatku PCC
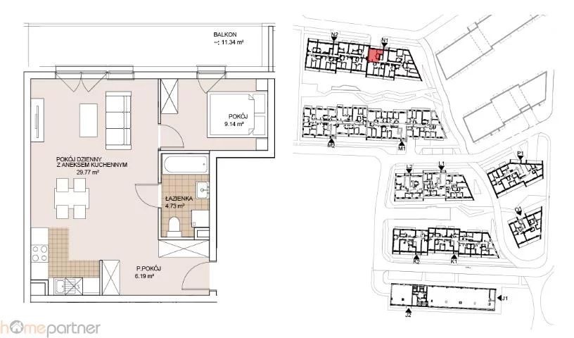
Na sprzedaż 2-pokojowe mieszkanie o powierzchni 49,83 m2 znajdujące się na 2 piętrze inwestycji deweloperskiej, zlokalizowanej przy ul. Długiej (Stare Miasto).
Mieszkanie gotowe do odbioru
INWESTYCJA
Osiedle ma charakter spokojnej przystani - nieopodal centrum miasta a jednak otoczonej terenami zieleni. Inwestycja przypomina zacumowane w porcie statki a kaskadowa kompozycja nadaje osiedlu dynamiczności. Elewacja jest jasna, nowoczesna, przełamana dużymi przeszkleniami, dzięki którym każde mieszkanie jest dobrze doświetlone.
Mieszkanie składa się z:
- salonu z aneksem kuchennym 29,77 m2
- pokoju 9,14 m2
- łazienki 4,73 m2
- przedpokoju 6,19 m2
Do mieszkania przynależy duży balkon o powierzchni 11,34 m2
Ekspozycja północno-wschodnia
LOKALIZACJA
Osiedle zlokalizowane tuż przy Odrze, na Starym Mieście. Wzdłuż rzeki rozciągają się tereny spacerowe, nieopodal Górka Szczepińska oraz pobliskie parki: Popowicki i Zachodni. W niedalekiej odległości zlokalizowane jest Centrum Handlowe Magnolia Park oraz liczne ośrodki biznesowe i biurowe, a także Hala Orbita oraz plaża miejska HotSpot Beach Bar.
Inwestycja jest dobrze skomunikowana z resztą miasta, do centrum prowadzą liczne linie autobusowe oraz linia tramwajowa. Mieszkańcy mogą korzystać również z przystanku PKP Szczepin, zlokalizowanego tuż przy inwestycji, z którego dojechać można w 10 minut na Dworzec Główny, 3 minuty na dworzec Nadodrze i 10 minut na dworzec Psie Pole.
KOMUNIKACJA
- 400 m przystanek autobusowy
- 400 m przystanek tramwajowy
- 2,7 km do CH Magnolia Park
- 30 minut spacerem do Rynku
Miejsce postojowe w podziemnej hali garażowej w cenie 59 000 zł
Komórka lokatorska w cenie 4 500 zł/m2
W ofercie również inne powierzchnie mieszkań
Zapraszam do kontaktu 889 759 863 / For more information please call us
+48 889 759 863.
Por favor contáctenos para conocer más sobre la oferta y ver el apartamento. Podemos ayudar con todos los trámites. Para más información por favor llámanos +48 889 759 863.
Treść niniejszego ogłoszenia nie stanowi oferty handlowej w rozumieniu Kodeksu Cywilnego.
Oferta wysłana z programu IMO dla biur nieruchomości