[PL, RU]
Na sprzedaż komfortowe mieszkanie położone w Warszawie na Żoliborzu przy ulicy Boguckiego. Mieszkanie znajduje się na 4 piętrze 4-piętrowego bloku z cegły (1966 r) wykonanym w technologii rama H. Mieszkanie jest słoneczne, a dostępne źródła ogrzewania to ogrzewanie miejskie.
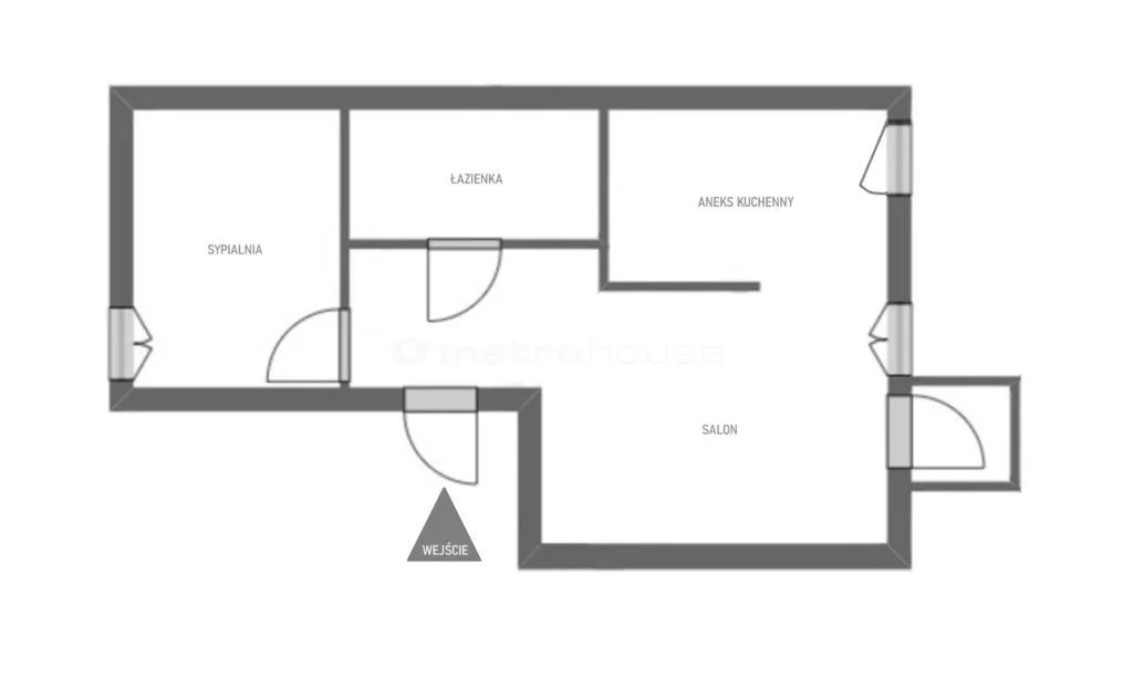
Całość składa się z:salonu z aneksem kuchennym i balkonem (Wschód) oraz oferuje piękny widok na zielone podwórko, tworząc przestronną część dzienną; sypialni (Zachód) tworząc przestronną część nocną; łazienki
i stanowi idealne rozwiązanie dla osób ceniących wygodę i funkcjonalność (Tak, mieszkanie dwustronne). Budynek jest w dobrym stanie technicznym, piony i instalacje są wymienione.
Lokalizacja mieszkania w sercu Żoliborza gwarantuje dostęp do licznych atrakcji i usług. W pobliżu znajduje się centrum handlowe Arkadia, gdzie można znaleźć szeroki wybór sklepów, restauracji i punktów usługowych. Ponadto, dzięki rozwiniętej sieci komunikacyjnej (linia tramwajowa obok, troche dalej SKM oraz metro dworzec Gdański), dostęp do innych części miasta jest szybki i wygodny.
W pobliżu znajdują się naziemne miejsca parkingowe.
Do mieszkania przynależy piwnica (już w cenie).
Żoliborz to wyjątkowa część Warszawy, która zachwyca swoją historią, architekturą oraz zielonymi przestrzeniami. Idealne miejsce dla osób, które cenią sobie spokój i dostęp do kultury oraz rekreacji. Dzielnica ta oferuje szeroki wybór kawiarni, restauracji oraz miejsc do spacerów i odpoczynku.
Stan prawny mieszkania: Spółdzielcze własnościowe bez KW (z możliwością założenia KW).
Tu link na spacer 3D (skopiuj link i otwórz w nowej kartce): https://sb360.online/neb7s7
Zapraszam do zapoznania się z ofertą tego wyjątkowego mieszkania w jednej z najbardziej pożądanych lokalizacji w Warszawie.
[RU] Продается комфортабельная квартира в районе Варшавы Жолибож, на улице Богуцкого. Квартира расположена на 4 этаже 4-этажного кирпичного дома (1966 г.), построенного по технологии Rama H. Квартира солнечная, доступные источники отопления - централизованное отопление.
Состоит из:гостиной с кухонным уголком и болконом (окна выходят на восток) c прекрасным видом на внутренний парк создавая простор дневной части квартиры; спальни (окна выходят на запад) создавая вечернюю часть квартиры; санузла
и является идеальным решением для людей, ценящих комфорт и функциональность (да, квартира выходит на 2 стороны света). Здание находится в хорошем техническом состоянии, заменены стояки и провода.
Расположение квартиры в самом центре Жолибожа гарантирует доступ к многочисленным достопримечательностям и услугам. Рядом находится торговый центр «Аркадия», где представлен широкий выбор магазинов, ресторанов и точек обслуживания. Более того, благодаря развитой транспортной сети (трамвайная линия рядом, SKM чуть дальше и станция метро Дворец Гданьский) доступ к другим частям города быстрый и удобный.
Рядом есть наземные парковочные места.
К квартире относится подвальное помещение (уже в цене).
Жолибож – уникальная часть Варшавы, восхищающая своей историей, архитектурой и зелеными насаждениями. Идеальное место для людей, которые ценят покой и доступ к культуре и отдыху. Этот район предлагает широкий выбор кафе, ресторанов и мест для прогулок и отдыха.
Юридический статус квартиры: Кооперативная собственность без земельно-ипотечной книги (с возможностью установления земельно-ипотечной книги).
Вот ссылка на 3D прогулку (скопируйте ссылку и откройте в новой вкладке): https://sb360.online/neb7s7
Приглашаю вас ознакомиться с предложением этой уникальной квартиры в одном из самых привлекательных мест Варшавы.
Czy wiesz, że możemy przygotować dla Ciebie prezentację on-line nieruchomości? Skontaktuj się z naszym Agentem i zapytaj o szczegóły.
Pomimo, iż Doradcy Metrohouse przykładają szczególną staranność do rzetelnego prezentowania informacji o nieruchomości, nie zawsze jest możliwa weryfikacja wszystkich danych przekazanych od osób trzecich. Niniejsza prezentacja oferty nie jest ofertą w rozumieniu Kodeksu Cywilnego i ma charakter wyłącznie informacyjny.