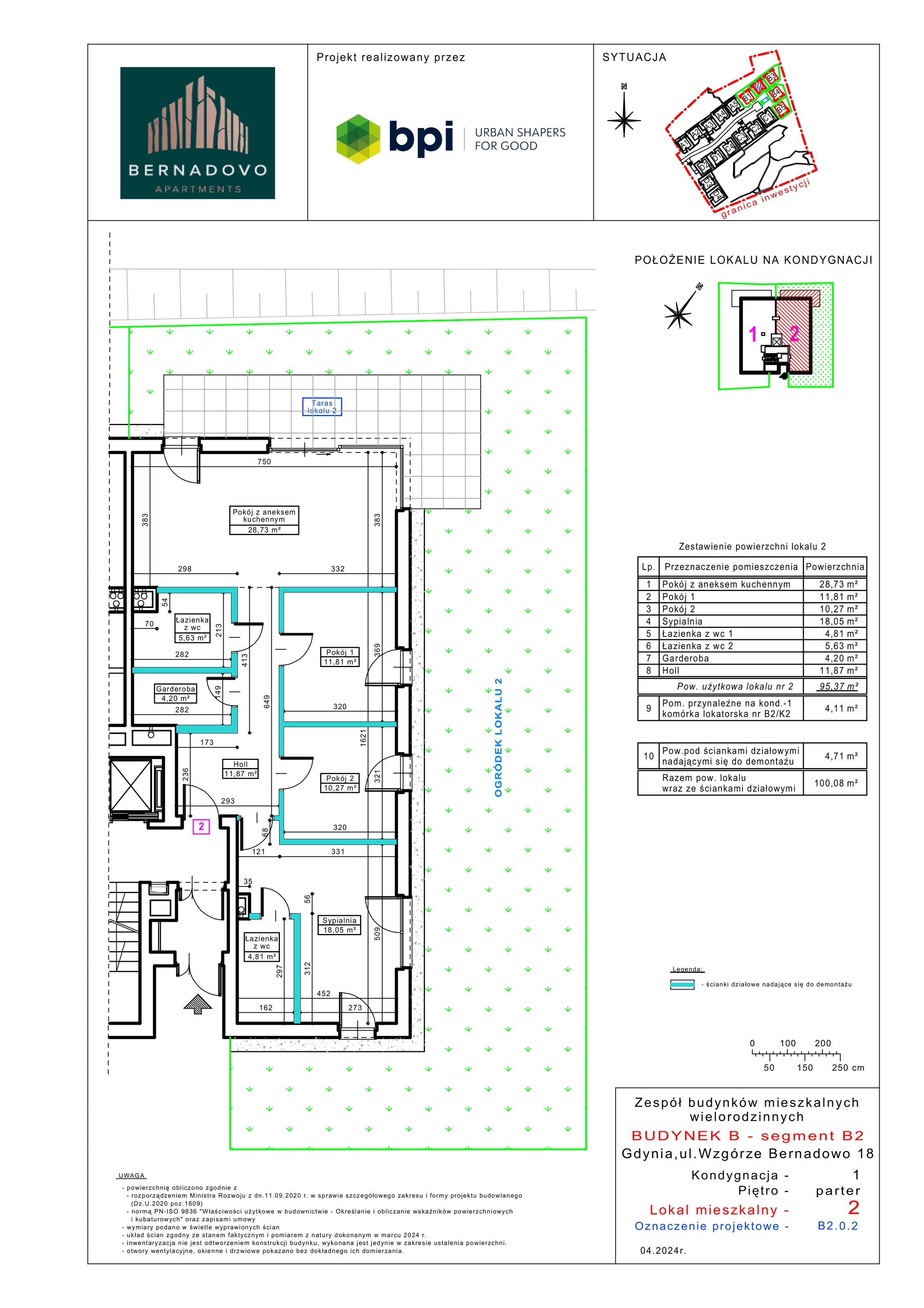
Mieszkanie 4 pokojowe o metrażu 95,37 m² zlokalizowane na parterze w budynku 2-piętrowym.
Inwestycja mieszkaniowa Bernadovo budowana przez firmę BPI Real Estate Poland pod adresem Wzgórze Bernadowo w Gdyni na Małym Kacku.
W budynku zaplanowano takie udogodnienia jak: panele fotowoltaiczne, rowerownia, winda, inteligentne zarządzanie domem oraz komórka lokatorska. Na terenie inwestycji: teren rekreacyjny, ogrodzenie, plac zabaw, monitoring.
W niedalekiej odległości od inwestycji dostępna jest dla przyszłych mieszkańców pełna infrastruktura: szkoły (Tenis Zone - instruktor tenisa, szkoła tenisa - 500 m, Alfa Szkółka Pływacka - 250 m), przedszkola (Niepubliczny Żłobek i Przedszkole MegaMocni Mały Kack - 600 m, Przedszkole Misie Tulisie - 900 m, Przedszkole Stumilowy Las - 300 m, Przedszkole nr 44 Samorządowe - 600 m, Niepubliczne Przedszkole i Żłobek Trampolina - 550 m) oraz obiekty rekreacyjne (Wybieg dla psów - Park rodzinny - 800 m, Park Kieszonkowy "Stacja Kieszonka" - 1000 m, Park Rodzinny - 850 m).